SOLD!!

7360 Porcupine Road Unit# 6

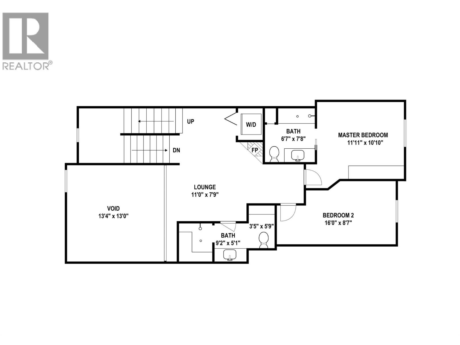
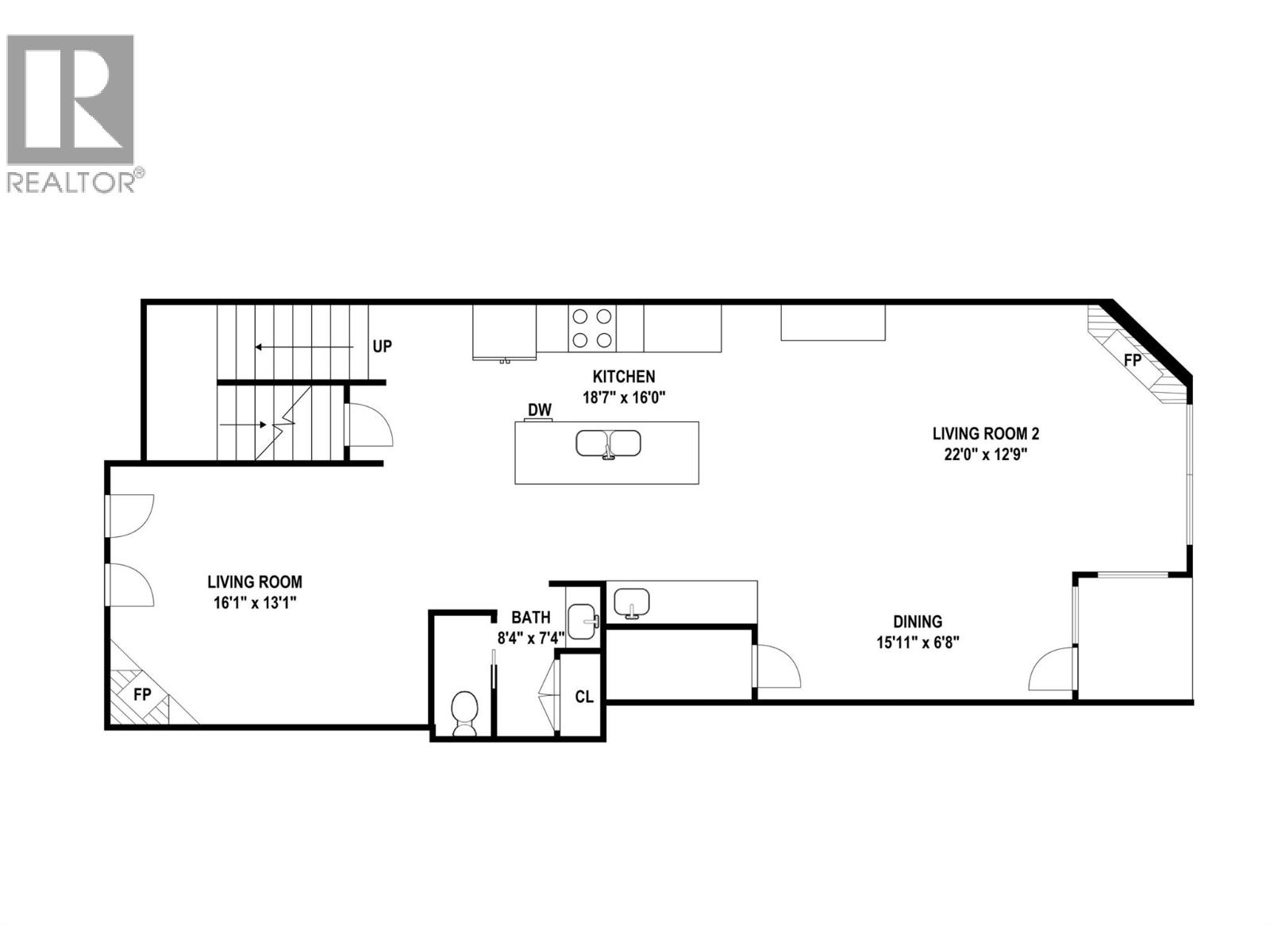
Discover the ultimate Big White retreat with this prime ski-in, ski-out location! Perched on the top floor of Ravens Crest—a boutique building with just seven exclusive units—this home offers unmatched convenience and tranquility for ski enthusiasts. With 4 bedrooms, 2.5 bathrooms, and space for up to 14 guests, this mountain-side gem is perfectly designed for hosting family and friends. The main level welcomes you with a bright and spacious layout, featuring two family rooms, an oversized walk-through kitchen, a wet bar, a powder room, and a generous dining area. The second and third floors provide ample privacy with four bedrooms, two additional bathrooms, office space, and a third cozy living room. After a day on the slopes, unwind in your private hot tub or indulge in the luxurious steam shower. There’s no shortage of storage here—three parking spaces and three large storage lockers ensure plenty of room for all your gear. Located just a 3-minute walk to Big White Village and a mere 30 steps from the Perfection ski run, this owner-occupied home has never been rented, and GST is already paid. This is your chance to own a piece of paradise at Big White. Call us today and make your mountain-living dreams a reality! (id:58842)

Property Information

Property Type
Residential
SqUARE FOOTAGE
2350
 sqft
Structure Type
Row / Townhouse
LAND SIZE
Roof Type
Asphalt shingle
Lot
Central island, Two Balconies
SEWER Type
Municipal sewage system
Parking Spots
3
Floor Type
Laminate, Carpeted
stories
3.0

More Information

Security
Security system, Controlled entry, Smoke Detector Only
View
Mountain view, Valley view
Parking
Attached Garage
Exterior
Wood, Stone, Stucco, Other
Community
Family Oriented
Common inTEREST
Condo/Strata
Listing Key
28758425
MLS ID
10357231
listing agent
Ian Watson
listing agent key
1390085
4
Beds
3
Baths
$ XXXXX
Price hidden*

Virtual Tour

Contact

Ian Watson

Thank you! Your submission has been received!
Oops! Something went wrong while submitting the form.