415 Commonwealth Road Unit# 458

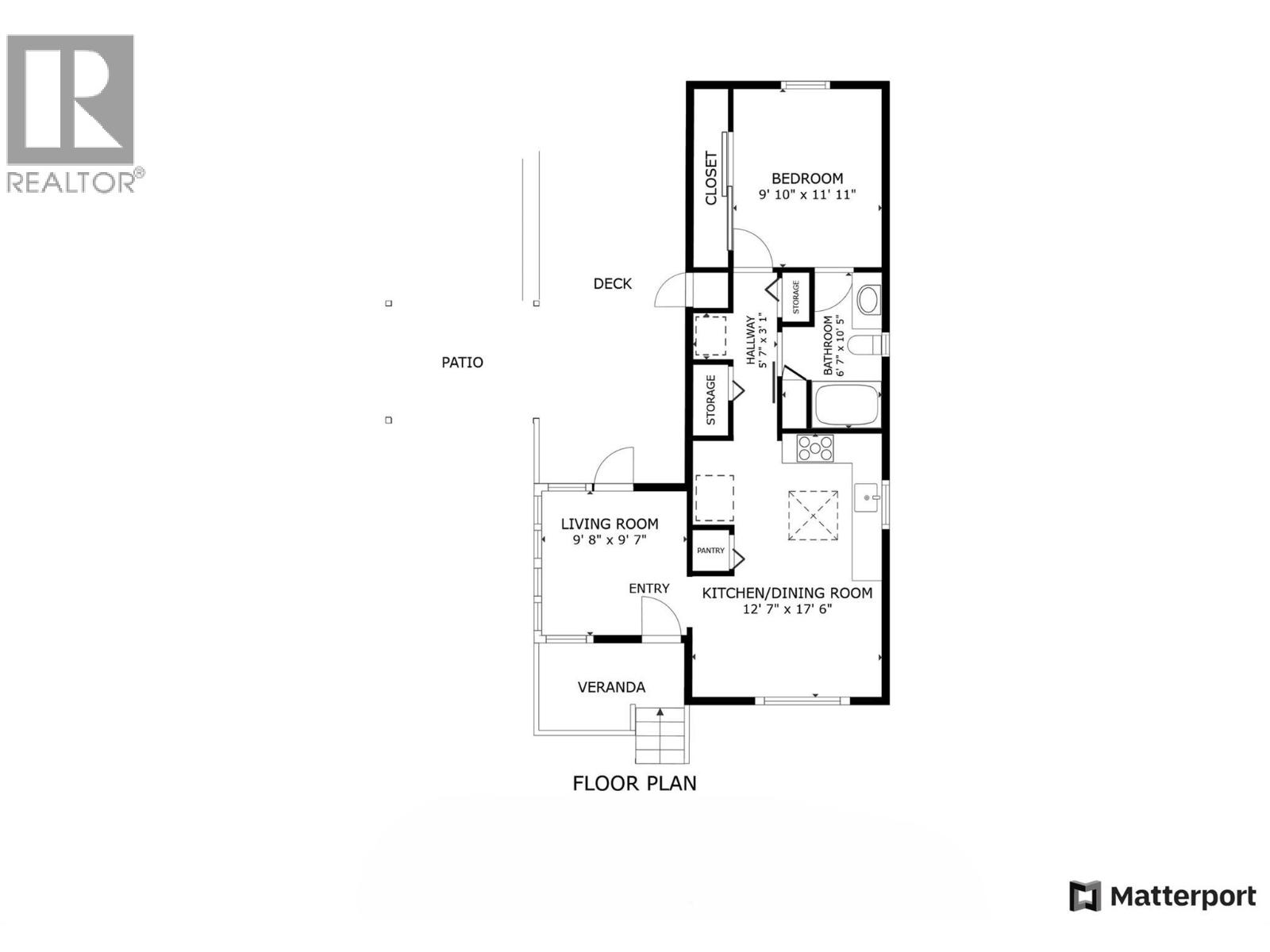
Stop dreaming about the lake life and start living it! This is the most affordable way to secure your own piece of paradise in the heart of Okanagan. Imagine waking up just steps from the pool and kayaking on Ellison Lake, surrounded by sunshine and world-class resort amenities and only 10 minutes from the airport. Discover you dream Okanagan Lifestyle at #458 – 415 Commonwealth Rd with this exquisite 2020 Modulux Peak Home. This charming 1 bedroom, 1 bathroom residence, all season Okanagan room, is move-in ready and nestled amount the trees on a spacious 3315 sq ft lot, offering modern comfort in a serene setting. The home features immaculate finishes, including a barn door and large soaker tub, gas stove, in-floor heating, hot water on demand, California closets and two heat pumps for optimal temperature control. Enjoy the private fenced yard with a deck and gazebo – perfect for relaxation and entertaining, creating a private outdoor oasis. Live like you are on vacation with fantastic amenities at Holiday Park! Enjoy 4 pools ( indoor, outdoor, and saltwater), hot tubs, 6 hole golf course, a gym, pickleball courts, wood working shop and an on-site restaurant, market and much more. The lease is pre-paid to 2046, ensuring incredible value and peace of mind. (id:58842)

Property Information

Property Type
Unknown
SqUARE FOOTAGE
633
 sqft
Structure Type
Park Model Mobile Home
LAND SIZE
0.08 acres
Roof Type
Asphalt shingle
Lot
Cul-de-sac, See remarks, Central island
SEWER Type
Septic tank
Parking Spots
0
stories
1.0
Floor Type
Laminate

More Information

Security
Security system, Controlled entry, Smoke Detector Only
View
Parking
Additional Parking
Exterior
Vinyl siding
Community
Rural Setting, Seniors Oriented, Pets Allowed, Pet Restrictions
Common inTEREST
Leasehold
Listing Key
29521704
MLS ID
10380385
listing Office
ComFree
listing Office key
300043
1
Beds
1
Baths
$
334900

Virtual Tour

Map

Map

can help you buy this property.

Thank you! Your submission has been received!
Oops! Something went wrong while submitting the form.

Patrick Klassen

can help you buy this property.

Thank you! Your submission has been received!
Oops! Something went wrong while submitting the form.