19950 McCarthy Road Unit# 27

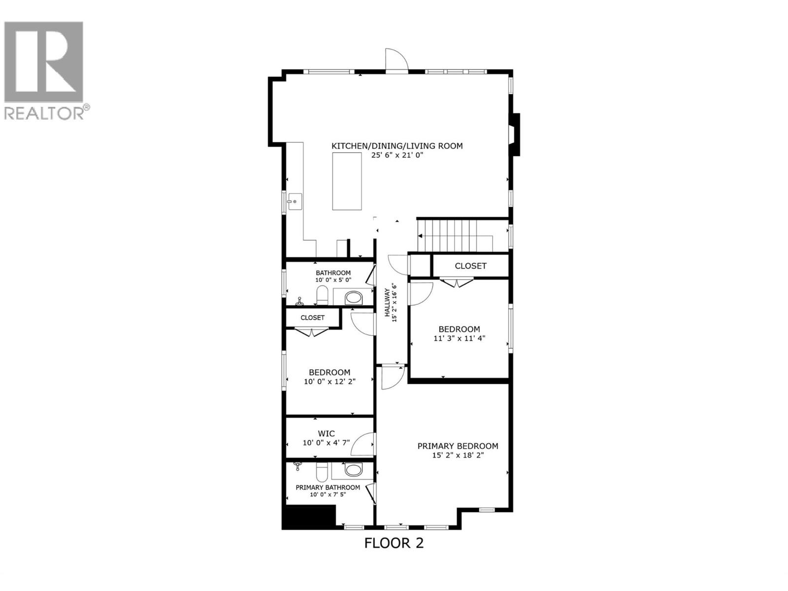
Welcome to #27 at 19950 McCarthy Road, Lake Country, perfectly positioned on a desirable corner lot. This beautifully crafted 5-bedroom, 3-bathroom residence offers a bright, modern design with an impressive sense of space and comfort throughout. The main living area is truly a showstopper, featuring 12' ceilings, a striking built-in gas fireplace with a custom entertainment and storage surround, and expansive floor-to-ceiling windows that flood the home with natural light. The open-concept layout flows effortlessly into the kitchen and dining area, creating an ideal setting for both everyday living and entertaining. From here, step out onto the spacious deck, perfect for indoor-outdoor living and hosting guests. The main floor is thoughtfully designed with three generously sized bedrooms, offering convenient single-level living. The kitchen combines style and functionality with modern finishes and ample workspace, enhancing the home’s refined yet practical layout. A legal 2-bedroom suite adds exceptional versatility—ideal for extended family, guests, or rental income potential. Additional highlights include a heated two-car garage with EV charger, quality craftsmanship throughout, and a layout designed to maximize comfort and efficiency. Ideally located between three lakes and close to schools, transit, shopping, restaurants, the airport, and recreational amenities, this home offers the perfect opportunity to embrace everything the Okanagan lifestyle has to offer. (id:58842)

Property Information

Property Type
Residential
SqUARE FOOTAGE
2285
 sqft
Structure Type
House
LAND SIZE
0.11 acres
Roof Type
Asphalt shingle
Lot
Central island, Balcony
SEWER Type
Municipal sewage system
Parking Spots
4
stories
2.0
Floor Type
Tile, Laminate, Carpeted

More Information

Security
View
Parking
Attached Garage, Heated Garage
Exterior
Stucco
Community
Pets Allowed
Common inTEREST
Freehold
Listing Key
29261736
MLS ID
10372355
listing Office
Century 21 Assurance Realty Ltd
listing Office key
61706
5
Beds
3
Baths
$
999000

Virtual Tour

Map

Map

can help you buy this property.

Thank you! Your submission has been received!
Oops! Something went wrong while submitting the form.

Trish Watson

can help you buy this property.

Thank you! Your submission has been received!
Oops! Something went wrong while submitting the form.