1607 43 Avenue Unit# 304 Lot# SL 10

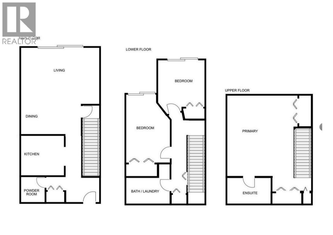
This sensational upgraded condo has a fantastic floor plan. 3 bedrooms,3 bathrooms. On the main level you will find an open layout, kitchen with a sit up breakfast bar, living room with a gas fireplace, a good size balcony overlooking green space and a 2 piece bathroom. On the upper level is a private very large dedicated Primary bedroom with full ensuite. The lower level has walk-out to patio from bedrooms, a full bathroom and stacking laundry. Lots of green space around the townhouse for the kids to play. Nice area of complex and a handy location on a bus route. Perfect share home as main living space between the primary up and 2 bedrooms down. 2 parking stalls. (id:58842)

Property Information

Property Type
Residential
SqUARE FOOTAGE
1284
 sqft
Structure Type
Row / Townhouse
LAND SIZE
Roof Type
Asphalt shingle
Lot
SEWER Type
Municipal sewage system
Parking Spots
2
stories
3.0
Floor Type

More Information

Security
View
View (panoramic)
Parking
Stall
Exterior
Vinyl siding
Community
Common inTEREST
Condo/Strata
Listing Key
28778524
MLS ID
10360482
listing Office
listing Office key
47795
3
Beds
3
Baths
$
479000

Virtual Tour

Map

Map

can help you buy this property.

Thank you! Your submission has been received!
Oops! Something went wrong while submitting the form.

Anthony Serani

can help you buy this property.

Thank you! Your submission has been received!
Oops! Something went wrong while submitting the form.