758 Josselyn Court

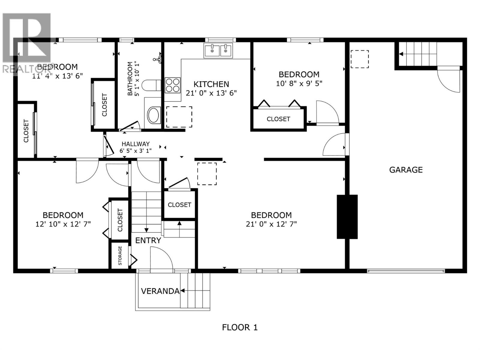
Welcome to 758 Josselyn Court! A rare Rutland gem offering space, versatility, and outstanding long-term potential. Situated on a generous 0.21-acre corner lot in a quiet, family-friendly cul-de-sac, this 5-bedroom, 4-bathroom home delivers 2,071 sq. ft. of comfortable living with endless possibilities. The property includes a 2-bedroom legal suite, making it ideal for multi-generational living, rental income, or holding as a smart investment. Zoned MF1, this home also presents an exciting opportunity for future redevelopment, adding exceptional value in one of Kelowna’s fastest-growing neighbourhoods. Inside, you’ll find a bright, functional layout with spacious bedrooms and plenty of room to update, personalize, or expand. Outside is where this property truly shines — a large, fully usable yard perfect for kids, pets, entertaining, gardening, or even building something new down the road. A huge covered deck, ample parking, and a single-car garage add everyday convenience and flexibility. Located just minutes from schools, shopping, parks, recreation, and transit, this home offers the perfect balance of quiet neighbourhood living with easy access to all amenities. Whether you’re looking to raise a family, generate income, or secure a high-potential redevelopment property, 758 Josselyn Court checks all the boxes. Please note: Photos have been digitally decluttered to better showcase the space. (id:58842)

Property Information

Property Type
Residential
SqUARE FOOTAGE
2071
 sqft
Structure Type
House
LAND SIZE
0.21 acres
Roof Type
Asphalt shingle
Lot
Balcony
SEWER Type
Municipal sewage system
Parking Spots
5
stories
2.0
Floor Type
Tile, Laminate

More Information

Security
View
Parking
Attached Garage
Exterior
Stucco
Community
Common inTEREST
Freehold
Listing Key
29289595
MLS ID
10369633
listing Office
Century 21 Assurance Realty Ltd
listing Office key
61706
4
Beds
3
Baths
$
799999

Virtual Tour

Map

Map

can help you buy this property.

Thank you! Your submission has been received!
Oops! Something went wrong while submitting the form.

Peter Taillon

can help you buy this property.

Thank you! Your submission has been received!
Oops! Something went wrong while submitting the form.