453 Morrison Avenue

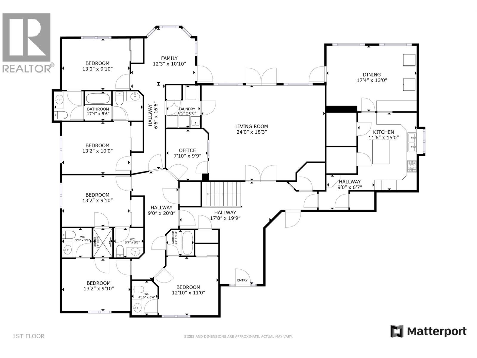
Situated on a large .2-acre lot, this property is currently zoned MF1B with C-NHD future zoning, opening doors to lucrative development opportunities and ensuring value appreciation over time. With potential for various business opportunities such as boarding or lodging houses, group homes, childcare, home-based businesses, care homes, senior centers, and more, the possibilities are endless. This cash flow rental property boasts an enviable location just steps away from the beach & Kelowna General Hospital. Featuring an impressive layout of 12 bedrooms & 14 bathrooms spread over 6,350 sq ft of living space, this property offers endless investment possibilities. Fully rented and Fully property managed, there are shared kitchen, laundry room, lobby, dining room, entertainment space, outdoor BBQ, manager's suite (with kitchen) etc. This investment guarantees an immediate stream of income, fueling your financial aspirations from day one. And let's not forget about the unbeatable location – nestled within Pandosy Village, you'll be surrounded by commercial retails, restaurants, parks, and the tranquil beach just a block away. This investment isn't just about immediate returns; it's about securing your future in one of Kelowna's most sought-after areas. Don't miss out on this rare opportunity to invest in both cash flow and future development potential in Kelowna's premier neighborhood. (id:58842)

Property Information

Property Type
Commercial
SqUARE FOOTAGE
6350
 sqft
Structure Type
Other
LAND SIZE
0.2 acres
Roof Type
Asphalt shingle
Lot
Level lot, Private setting, Wheelchair access
SEWER Type
Municipal sewage system
Parking Spots
10
stories
Floor Type

More Information

Security
Security system, Smoke Detector Only
View
Parking
Attached Garage
Exterior
Stucco
Community
Family Oriented
Common inTEREST
Listing Key
28762163
MLS ID
10360138
listing Office
Oakwyn Realty Okanagan-Letnick Estates
listing Office key
290373
0
Beds
0
Baths
$
1790000

Virtual Tour

Map

Map

can help you buy this property.

Thank you! Your submission has been received!
Oops! Something went wrong while submitting the form.

Julia Debolt

can help you buy this property.

Thank you! Your submission has been received!
Oops! Something went wrong while submitting the form.