3773 Davidson Court Lot# Trails 72

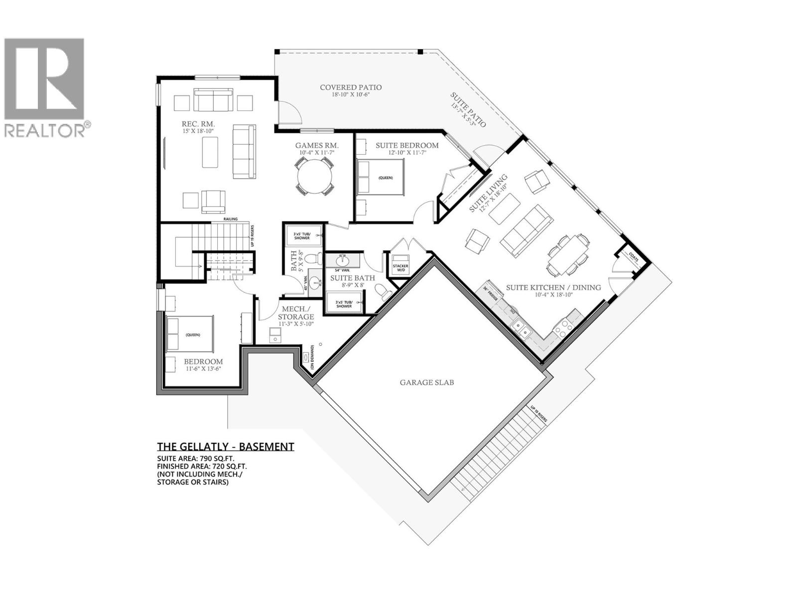
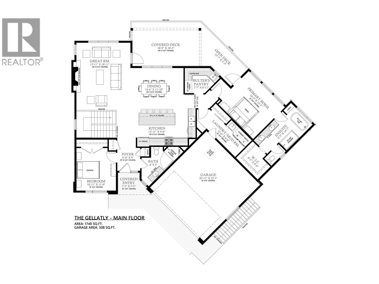
BIG LAKE AND CITY VIEWS! To be built. Discover the Gellatly Plan, a 3,255 sq.ft. rancher with a walk-out basement and a 1-bedroom legal suite at The Trails. The main level welcomes you with 10’ ceilings, a bright great room centred on a gas fireplace, and oversized windows showcasing sweeping city and lake views. The chef’s kitchen offers a large island, quartz countertops, and a walk-in butler’s pantry, flowing into the dining area with access to a covered deck. The primary suite features a spa-inspired 5PC ensuite with double vanity, glass shower, private lavatory, and a custom walk-in closet. Downstairs, the walkout basement includes a spacious rec/games room opening to a covered patio, plus an additional bedroom and full bath—ideal for guests or a home office. The 1-bedroom legal suite comes complete with a full kitchen, living room, 4PC bath, in-suite laundry, and separate entrance, providing flexible options for family or rental income. At The Trails, you’ll enjoy direct access to hiking and biking routes, two community parks, and panoramic views. Glen Canyon Park, Gellatly Bay’s waterfront, wineries, schools, golf, and West Kelowna’s best beaches are all just minutes away. Don’t miss this opportunity to secure a brand-new home in one of West Kelowna’s most sought-after neighbourhoods. (id:58842)

Property Information

Property Type
Residential
SqUARE FOOTAGE
3255
 sqft
Structure Type
House
LAND SIZE
0.22 acres
Roof Type
Asphalt shingle
Lot
Cul-de-sac, Corner Site, Irregular lot size, Central island, Balcony
SEWER Type
Municipal sewage system
Parking Spots
4
stories
2.0
Floor Type
Carpeted, Ceramic Tile, Vinyl

More Information

Security
View
City view, Lake view, Mountain view, Valley view
Parking
Attached Garage
Exterior
Stucco, Other
Community
Family Oriented
Common inTEREST
Freehold
Listing Key
28999912
MLS ID
10364784
listing Office
RE/MAX Kelowna
listing Office key
47837
4
Beds
4
Baths
$
1349900

Virtual Tour

Map

Map

can help you buy this property.

Thank you! Your submission has been received!
Oops! Something went wrong while submitting the form.

Anthony Serani

can help you buy this property.

Thank you! Your submission has been received!
Oops! Something went wrong while submitting the form.