11815 Grant Avenue Unit# 104

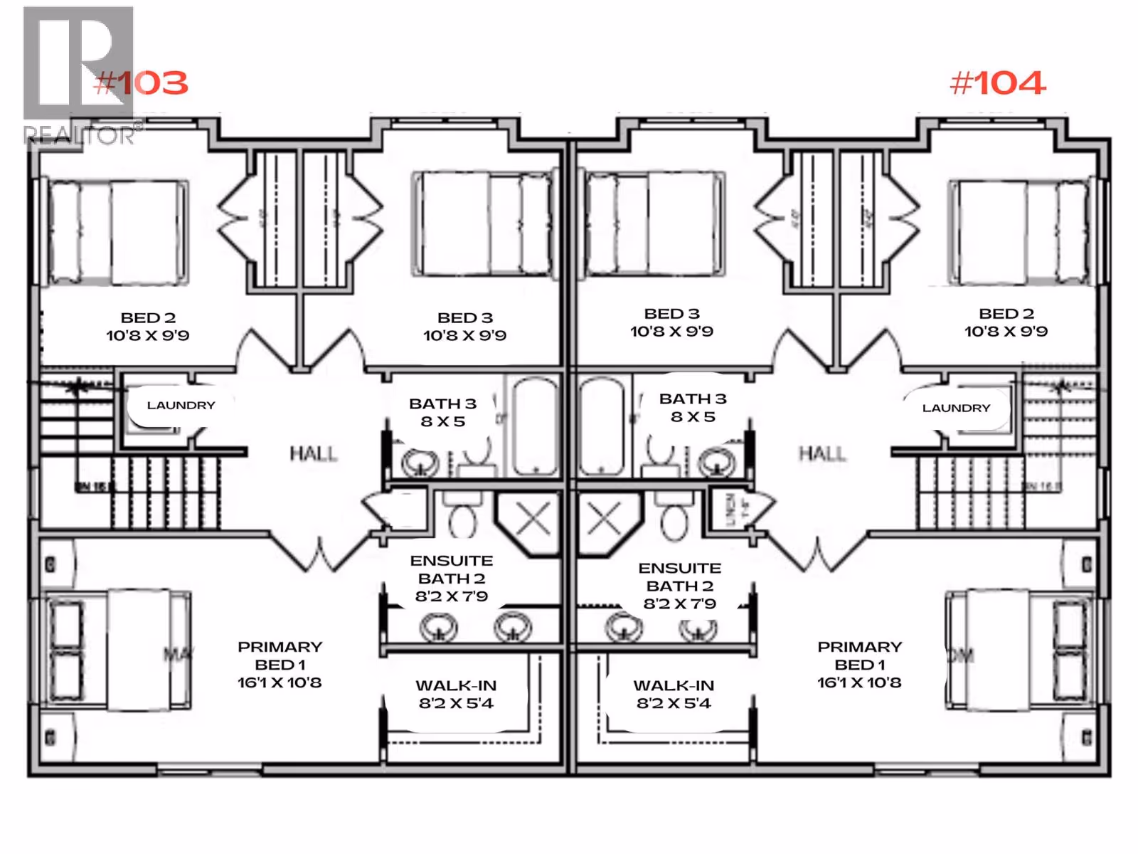
Introducing this stylish half duplex in the heart of Summerland—a brand new, under-construction strata home offering modern comfort and convenience. Spanning 1,485 sqft across two storeys, this thoughtfully designed residence features a ductless heat pump system for efficient heating and cooling. The main floor boasts an open-concept layout with living, dining, and kitchen areas plus a 2-piece bath—perfect for everyday living and entertaining. Upstairs, you'll find the primary bedroom with a private 3-piece ensuite, two additional bedrooms, a 4-piece bath, and laundry conveniently located on the same floor. 4ft crawl space creates room for lots of extra storage! With a $225/month strata fee, one parking stall, and pet-friendly bylaws (with restrictions), this property offers low-maintenance living just minutes from downtown Summerland, schools, and parks. No age restrictions make it ideal for a range of buyers—don’t miss out on this exciting opportunity! Property is under construction with estimated completion Winter 2025. Contact the listing agent for details! BONUS - the seller is offering a $10K credit for all closing costs! Contact the listing agent for details! (id:58842)

Property Information

Property Type
Residential
SqUARE FOOTAGE
1485
 sqft
Structure Type
Duplex
LAND SIZE
None None
Roof Type
Other
Lot
Cul-de-sac, Level lot
SEWER Type
Municipal sewage system
Parking Spots
1
stories
2.0
Floor Type

More Information

Security
View
Mountain view
Parking
Stall
Exterior
Other
Community
Pets Allowed
Common inTEREST
Condo/Strata
Listing Key
28838592
MLS ID
10362334
listing Office
listing Office key
54388
3
Beds
3
Baths
$
669000

Virtual Tour

Map

Map

can help you buy this property.

Thank you! Your submission has been received!
Oops! Something went wrong while submitting the form.

Robert A. Wood

can help you buy this property.

Thank you! Your submission has been received!
Oops! Something went wrong while submitting the form.