9983 Okanagan Centre Road W

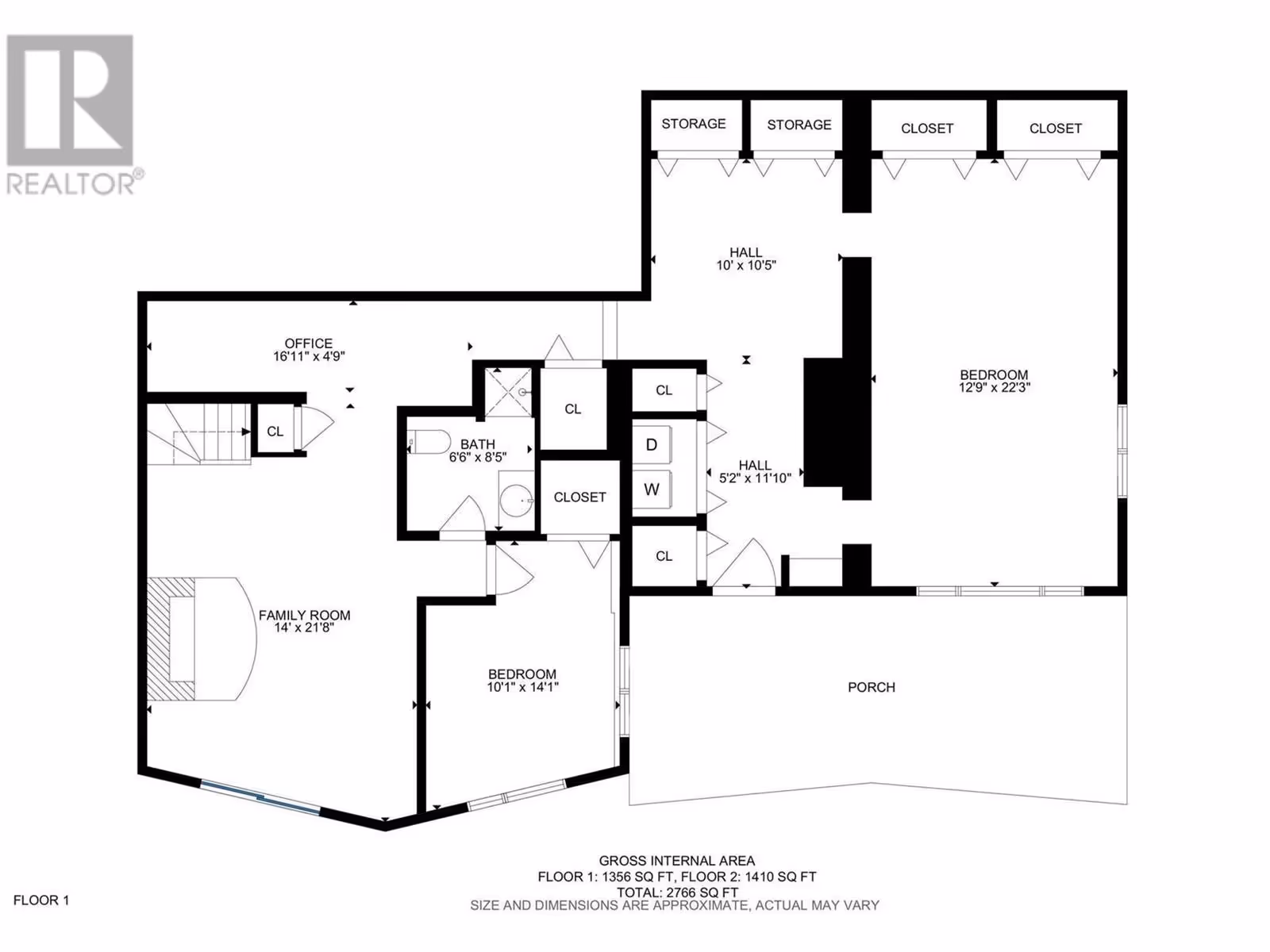
Semi-lakeshore estate with 2 titles, encompassing 9.07 acres (5.1+3.97) of land zoned RR2 and NOT in the ALR. 9983 offers 3.97 acres of land with a beautiful 4 bedroom, 3 bathroom home. Vaulted wood ceilings, huge windows to capture the Okanagan Lake views, and heated tile floors on the main are all features that make this a great semi-lakeshore home. There is a 4 car garage for the cars and the toys, and plenty of excess room for additional parking. There is an outdoor kitchen area w/ concrete patio and a wrap around deck space. Spend 15 seconds walking across the road to enjoy the beautiful beach. Lot 28 is a 5.1 acre piece of land that has subdivision potential for a 2 lot subdivision (buyer to investigate). The land was historically successful with plums, but has been recently cleared as of May 2023. The properties are currently fed with the lake intake water system associated with 9983. Lot 28 may be sold in isolation, but the 9983 property (property w/ home) must be sold in conjunction with lot 28. Outstanding opportunity to acquire 2 titles with plenty of upside potential that total over 9 acres in the prestigious Okanagan Centre area of Lake Country. 2 titles gives building flexibility for multiple primary homes that would make for an outstanding family compound. Boat launch, cafe, and wineries all just a quick drive away! (id:58842)

Property Information

Property Type
Residential
SqUARE FOOTAGE
2594
 sqft
Structure Type
House
LAND SIZE
9.07 acres
Roof Type
Asphalt shingle
Lot
One Balcony
SEWER Type
No sewage system
Parking Spots
12
stories
2.0
Floor Type
Carpeted, Ceramic Tile

More Information

Security
View
Lake view, Mountain view
Parking
Detached Garage, See Remarks
Exterior
Wood siding
Community
Common inTEREST
Freehold
Listing Key
28218788
MLS ID
10344849
listing Office
listing Office key
285913
4
Beds
3
Baths
$
3750000

Virtual Tour

Map

Map

can help you buy this property.

Thank you! Your submission has been received!
Oops! Something went wrong while submitting the form.

Stephanie Gilchrist

can help you buy this property.

Thank you! Your submission has been received!
Oops! Something went wrong while submitting the form.