8900 Jim Bailey Road Unit# 112

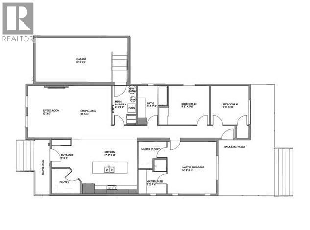
Welcome to Deer Meadows. Your new neighbourhood is conveniently located just steps away from the Rail Trial where you are connected to Wood lake and the blue waters of Kalamalka lake with trail access spanning from Vernon to Kelowna. Deer Meadows is a quick 10 minute commute from the Airport and UBCO's Campus. Rentals and pets are allowed. This Skylark home is built by Woodland Crafted Homes and features a modern layout. With a unique exterior, the 3 bedroom, 2 bathroom home design is created for those that want it all. Entering to the open-concept Kitchen, you walk through a bright front patio and are met with the highly coveted seamless living/dining space. Guest room and spacious Master Bedroom at the back of the house means optimized space distribution. Base price comes with a carport and may be upgraded to a garage. The secluded Backyard Patio opens off the beautiful Master Bedroom to ensure these homeowners get every bit of sunshine that the Okanagan has to offer. SHORT TERM RENTALS PERMITTED. Schedule your appointment today! (id:58842)

Property Information

Property Type
Residential
SqUARE FOOTAGE
1356
 sqft
Structure Type
Manufactured Home
LAND SIZE
Roof Type
Other
Lot
SEWER Type
Septic tank
Parking Spots
2
stories
1.0
Floor Type
Vinyl

More Information

Security
Smoke Detector Only
View
Parking
Carport
Exterior
Stone, Stucco
Community
Common inTEREST
Listing Key
29147482
MLS ID
10370255
listing Office
listing Office key
47837
3
Beds
2
Baths
$
453800

Virtual Tour

Map

Map

can help you buy this property.

Thank you! Your submission has been received!
Oops! Something went wrong while submitting the form.

Peter Taillon

can help you buy this property.

Thank you! Your submission has been received!
Oops! Something went wrong while submitting the form.