885 Camelia Road

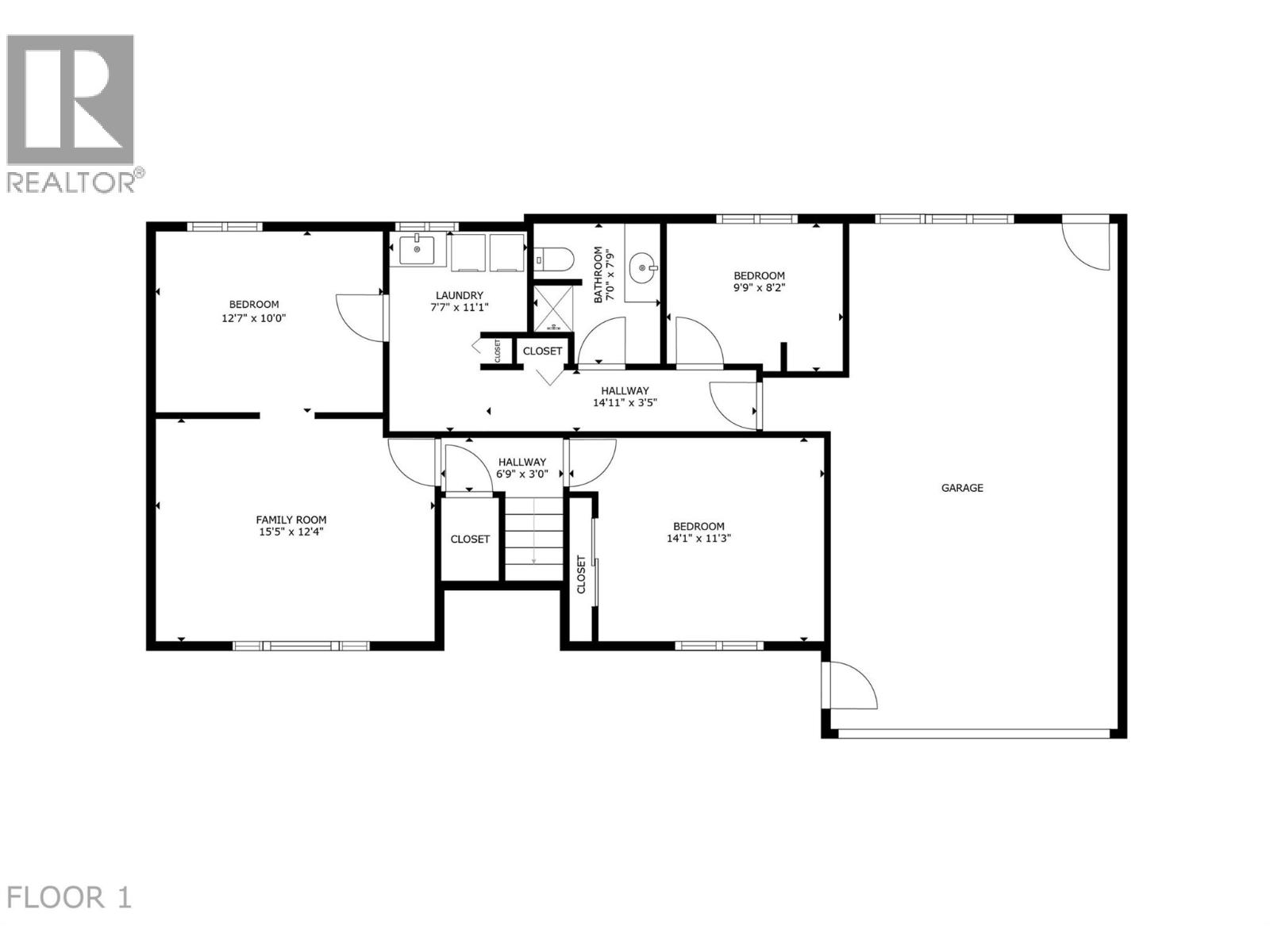
Welcome to this great family home with INGROUND POOL & WATERSLIDE nestled on a quiet street, just steps from schools, shopping & local amenities. This property boasts a private, south-facing backyard oasis, featuring a 18x36 pool with a new pump (2025) & a custom-built waterslide for endless summer fun. Outdoor living is elevated by the large yard, a covered deck w/Duradek & sleek glass railings, fiberglass stairs & a new shed, fence & gate. Inside, discover a bright kitchen w/newer appliances & a spacious living/dining room designed for seamless family time. Conveniently located on the main floor are two good sized bedrooms & a full bath. The basement, with three bedrooms, laundry room & full bath, has been thoughtfully enhanced w/double-layer drywall soundproofing & insulation, ensuring a serene environment. Additional features include a brand new HWT, new waterproof vinyl plank flooring in laundry area/hallway, 2019 roof & an oversized 12x27 single garage equipped w/220V workshop, automatic overhead door & a unique rear lift door for backyard access. With ample parking PLUS dedicated RV/Boat parking, this is a rare opportunity to own a spacious home w/pool in a fantastic family-friendly neighbourhood. Within walking distance to Quigley Elementary, Mission Creek & Belgo Parks & Transit. Close to Springvalley Elementary/Middle Schools & Rutland Elementary, Middle & High Schools! (id:58842)

Property Information

Property Type
Residential
SqUARE FOOTAGE
1920
 sqft
Structure Type
House
LAND SIZE
0.22 acres
Roof Type
Asphalt shingle
Lot
SEWER Type
Municipal sewage system
Parking Spots
6
stories
1.0
Floor Type
Carpeted, Linoleum, Vinyl

More Information

Security
View
Mountain view, View (panoramic)
Parking
Attached Garage, See Remarks, Additional Parking
Exterior
Community
Family Oriented
Common inTEREST
Freehold
Listing Key
29575102
MLS ID
10381298
listing Office
listing Office key
61706
5
Beds
2
Baths
$
898000

Virtual Tour

Map

Map

can help you buy this property.

Thank you! Your submission has been received!
Oops! Something went wrong while submitting the form.

Jennifer Rose

can help you buy this property.

Thank you! Your submission has been received!
Oops! Something went wrong while submitting the form.