866 Predator Ridge Drive

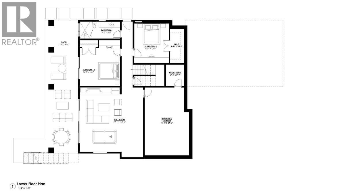
For more info, click Brochure button. Move-in ready architectural walkout offers 3324 sqft of thoughtfully designed living with expansive windows framing fairway views. The open-concept great room is anchored by a custom oak fireplace feature wall & flows seamlessly to a covered patio designed for outdoor entertaining. The chef-inspired kitchen features a large quartz island, premium appliances, & a separate pantry with sink. The Primary Suite offers a spa-style ensuite with freestanding tub, heated floors, & walk-in closet. Lower level includes a spacious rec room, 2 guest bedrooms, & a bathroom with exterior access for future pool use. Built to BC Energy Step Code 4, delivering approximately 40% greater efficiency than standard construction. High-performance systems include a high-efficiency heat pump, EV pre-wire, radon mitigation, flood protection, & the innovative Gradient Thermal sync furnace— a 2-in-1 combination furnace and tankless hot water heater for superior efficiency and energy savings. Enjoy cleaner indoor air with a Carrier whole-home air purification system featuring MERV 15 filtration. Garage includes a LiftMaster Elite Series MyQ Wi-Fi wall-mount opener with battery backup. Located within the City of Vernon with full city utilities & landscape maintenance included. Predator Ridge offers resort-style living just 25 min to Kelowna International Airport with amenities including golf, fitness, and more. Property not yet assessed. Contains rendering photos. (id:58842)

Property Information

Property Type
Residential
SqUARE FOOTAGE
3324
 sqft
Structure Type
House
LAND SIZE
0.19 acres
Roof Type
Metal
Lot
Irregular lot size, Central island, Balcony
SEWER Type
Municipal sewage system
Parking Spots
5
stories
2.0
Floor Type
Tile, Hardwood, Carpeted

More Information

Security
Sprinkler System-Fire, Controlled entry, Smoke Detector Only
View
Mountain view, View (panoramic)
Parking
Attached Garage, Additional Parking
Exterior
Concrete, Wood, Stone, Stucco, Metal, Other
Community
Common inTEREST
Freehold
Listing Key
29505990
MLS ID
10380484
listing Office
Easy List Realty
listing Office key
286425
3
Beds
3
Baths
$
2295000

Virtual Tour

Map

Map

can help you buy this property.

Thank you! Your submission has been received!
Oops! Something went wrong while submitting the form.

Cosette Kempston

can help you buy this property.

Thank you! Your submission has been received!
Oops! Something went wrong while submitting the form.