83 Peregrine Way Unit# 33

Lock-and-leave convenience, year-round living or a recreational retreat - this tasteful townhouse at Peregrine Point Estates truly has it all. With sweeping views of Okanagan Lake - among the best in the complex - this spacious home invites you to relax, reconnect with nature, and enjoy the peaceful setting this community is known for. The primary bedroom captures the morning sun shimmering across the lake, with a beautifully renovated ensuite featuring a tiled walk-in shower & custom-built closet just steps away. A bright den offers flexible space for a home office or studio. Step into the vaulted living, kitchen & dining area where expansive windows frame the view - perfect for entertaining or cozy evenings by the gas fireplace. A generous island makes hosting effortless, and the updated kitchen blends practical function with modern finishes. The second bedroom is spacious and welcoming, with the main bath nearby for guest comfort. Designed for easy one-level living, this home features hardwood floors, an open layout, and a deck with glass railings - ideal for soaking in the view. Many practical updates have been completed, offering peace of mind. Enjoy a modest strata fee and a cooperative community that manages the property with care. Residents own and maintain a private beach with dock on Okanagan Lake. This exceptional townhouse awaits its next happy owner! (id:58842)

Property Information

Property Type
Residential
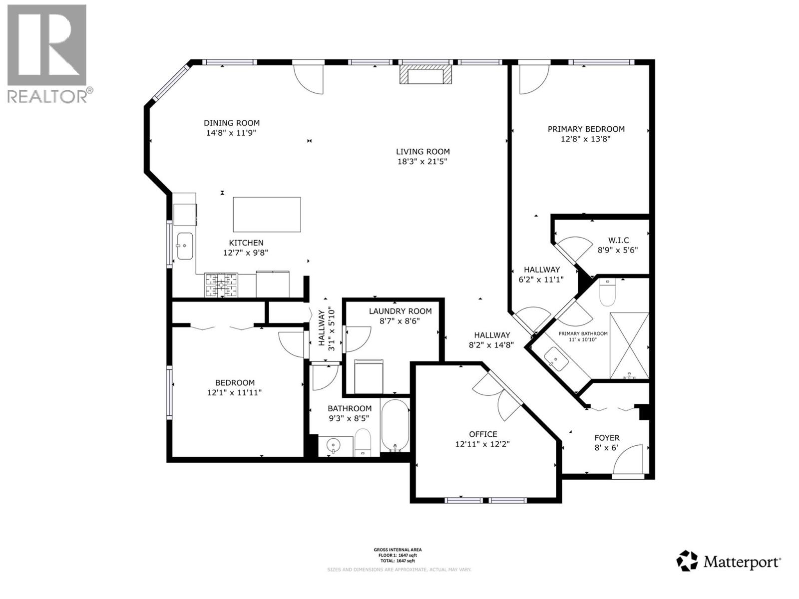
SqUARE FOOTAGE
1647
 sqft
Structure Type
Row / Townhouse
LAND SIZE
Roof Type
Asphalt shingle
Lot
Private setting, Central island, Balcony
SEWER Type
Municipal sewage system
Parking Spots
2
stories
1.0
Floor Type
Hardwood, Carpeted, Vinyl

More Information

Security
View
Lake view, Mountain view, Valley view, View (panoramic)
Parking
Detached Garage, Street, Additional Parking
Exterior
Stucco
Community
Pet Restrictions, Pets Allowed With Restrictions
Common inTEREST
Condo/Strata
Listing Key
29362486
MLS ID
10375943
listing Office
RE/MAX Vernon
listing Office key
47783
2
Beds
2
Baths
$
675000

Virtual Tour

Map

Map

can help you buy this property.

Thank you! Your submission has been received!
Oops! Something went wrong while submitting the form.

Ian Watson

can help you buy this property.

Thank you! Your submission has been received!
Oops! Something went wrong while submitting the form.