7421 Tronson Road

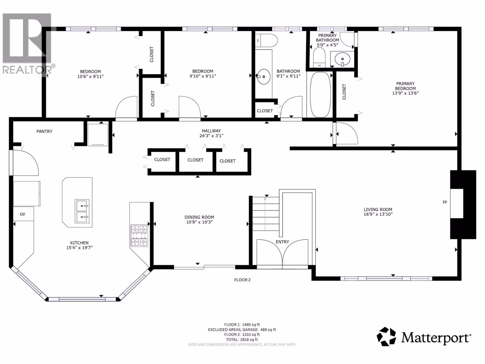
Welcome to this four-bedroom family home offering the perfect blend of comfort, space, and lifestyle. Situated on a large lot in a highly desirable location of Bella Vista, this property boasts panoramic Okanagan Lake views that can be enjoyed from multiple rooms in the home and from the expansive deck – ideal for entertaining or simply relaxing and taking in the view. Inside, the home is well-designed with generous living spaces and a mortgage-helper suite that adds versatility and makes ownership more affordable. The main level features a spacious living room, three bedrooms, 1.5 bathrooms, kitchen with washer & dryer) and dining room. The basement boasts a ONE BEDROOM SUITE, large kitchen/dining room, living room with a gas fireplace, bathroom and storage room/walk-in closet. Behind the garage is a large storage room, 26'1 x 11'9, allowing plenty of storage for both levels of the home. Whether you're looking for a place to raise a family or a smart investment opportunity, this home delivers. Located just minutes from Kin Beach, The Rise golf course, Gray Canal Trail, boat ramp, shopping, and schools, you’ll love the convenience and outdoor lifestyle this home offers. PRICED BELOW ASSESSED VALUE, this is a rare opportunity to own a spacious, view-filled home in one of the area's best locations. Approximate Monthly Average Utility Costs: Fortis Gas $176.31, Hydro $163.46, Water $118.50. Sewer line hook-up available at lot line. Don’t miss out—schedule your viewing today! (id:58842)

Property Information

Property Type
Residential
SqUARE FOOTAGE
2413
 sqft
Structure Type
House
LAND SIZE
0.23 acres
Roof Type
Asphalt shingle
Lot
Central island
SEWER Type
Septic tank
Parking Spots
6
stories
2.0
Floor Type
Tile, Laminate

More Information

Security
View
Lake view, Mountain view
Parking
Attached Garage, Additional Parking
Exterior
Brick, Stucco
Community
Pets Allowed, Rentals Allowed
Common inTEREST
Freehold
Listing Key
28868987
MLS ID
10362885
listing Office
listing Office key
47783
4
Beds
3
Baths
$
785000

Virtual Tour

Map

Map

can help you buy this property.

Thank you! Your submission has been received!
Oops! Something went wrong while submitting the form.

Anthony Serani

can help you buy this property.

Thank you! Your submission has been received!
Oops! Something went wrong while submitting the form.