7036 Manning Place

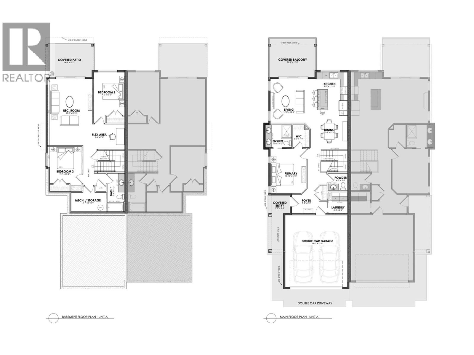
One of our largest lots!!! Enjoy the extensive private fully landscaped backyard stretching down to BX creek with spectacular Morning SunriseEastern views. Contemporary style non-strata level entry Rancher with 3 bedrooms 3 bathrooms and walkout basement . Main level living with open floor plan Kitchen to Dining & Living rm & 14'6x12' covered sundecks to bbq & entertain. The Primary bedroom is also on the main level and has double vanity ensuite & walk-in closet, powder rm & laundry, generous foyer entered through covered walkway and Double car Garage.Basements hold 2nd & 3rd bedrooms, Flex area for gym space, reading nook etc., full 4 pc Bathroom and large Recreation Room with walkout to covered 14'6x10'3 Patio and backyard. This unit has upgrades of EV Charger in garage, Electrical for hot tub, Gas & Electric for Kitchen Oven,Gas BBQ outlet on Sundeck. Walking trails of BX Creek & the Grey Canal right there, Silver Star Mountain year round resort only 15 minutes up the hill. Walk to Elementary or Bus to High School and only minutes to downtown, lakes and golfing. Landscaping, retaining and fencing completed for you on possession so all you need do is move in and enjoy!!! GST applicable but NO PTT. (id:58842)

Property Information

Property Type
Residential
SqUARE FOOTAGE
1934
 sqft
Structure Type
Duplex
LAND SIZE
0.35 acres
Roof Type
Asphalt shingle
Lot
SEWER Type
Parking Spots
2
stories
2.0
Floor Type
Tile, Vinyl

More Information

Security
View
Mountain view, River view, Valley view, View (panoramic)
Parking
Attached Garage
Exterior
Stucco
Community
Common inTEREST
Freehold
Listing Key
29146339
MLS ID
10370212
listing Office
listing Office key
47783
3
Beds
3
Baths
$
859999

Virtual Tour

Map

Map

can help you buy this property.

Thank you! Your submission has been received!
Oops! Something went wrong while submitting the form.

Marcelle Goldstein

can help you buy this property.

Thank you! Your submission has been received!
Oops! Something went wrong while submitting the form.