5560 Lakeshore Road

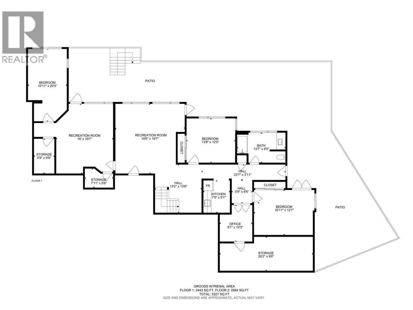
Known as Asparagus Bay, this home is built to celebrate Okanagan life. Its 1.297 acres - nurtured into an award-winning water-wise garden - offer a 5000 plus square foot house designed by Architect Robert Turik to create ideal views, a roofline that honors the surrounding hillsides, access to outdoor living spaces, sunlight exposure, & privacy. Six bedrooms & four bathrooms total! Inside, the ceiling follows curved trusses varying from 12.5 feet to 20 feet high; the main south-facing windows ensure year-round sun; European tilt windows allow for extra airflow and cross breezes; & a bank of upper windows draw in the morning light. Upstairs, the kitchen is book-ended by living spaces, the master & ensuite both provide lake views, and a one bedroom suite offers privacy to guests. Every room provides seamless access to outside, including 1100+ square feet of patio space w/ stairs to another deck below. Downstairs offers two bedrooms and one bathroom, a kitchenette, access to outdoors, storage, and another roughed-in suite with kitchen and bathroom plumbing. Outside, walk down an accessible path (the old orchard-donkey path!) to 219 feet of lakeshore frontage with beach-entrance swimming and a private 130 foot dock built in 2018, and featuring both a three tonne hoist and parking for guests. The lot is bisected by Lakeshore Road, so landscaped uplands offer additional parking, a deer-fenced garden with fruit trees and berries, space for a workshop, and long-term development/subdivision potential. Walking distance to Cedar Creek Winery, Martin's Lane, waterfront parks, & more. (id:58842)

Property Information

Property Type
Residential
SqUARE FOOTAGE
5327
 sqft
Structure Type
House
LAND SIZE
1.3 acres
Roof Type
Other
Lot
Irregular lot size
SEWER Type
Septic tank
Parking Spots
12
stories
2.0
Floor Type

More Information

Security
View
City view, Lake view, Mountain view, Valley view
Parking
Attached Garage
Exterior
Stucco
Community
Common inTEREST
Freehold
Listing Key
29011180
MLS ID
10366095
listing Office
listing Office key
237276
6
Beds
4
Baths
$
6790000

Virtual Tour

Map

Map

can help you buy this property.

Thank you! Your submission has been received!
Oops! Something went wrong while submitting the form.

Cosette Kempston

can help you buy this property.

Thank you! Your submission has been received!
Oops! Something went wrong while submitting the form.