456 McPhee Street Unit# 112

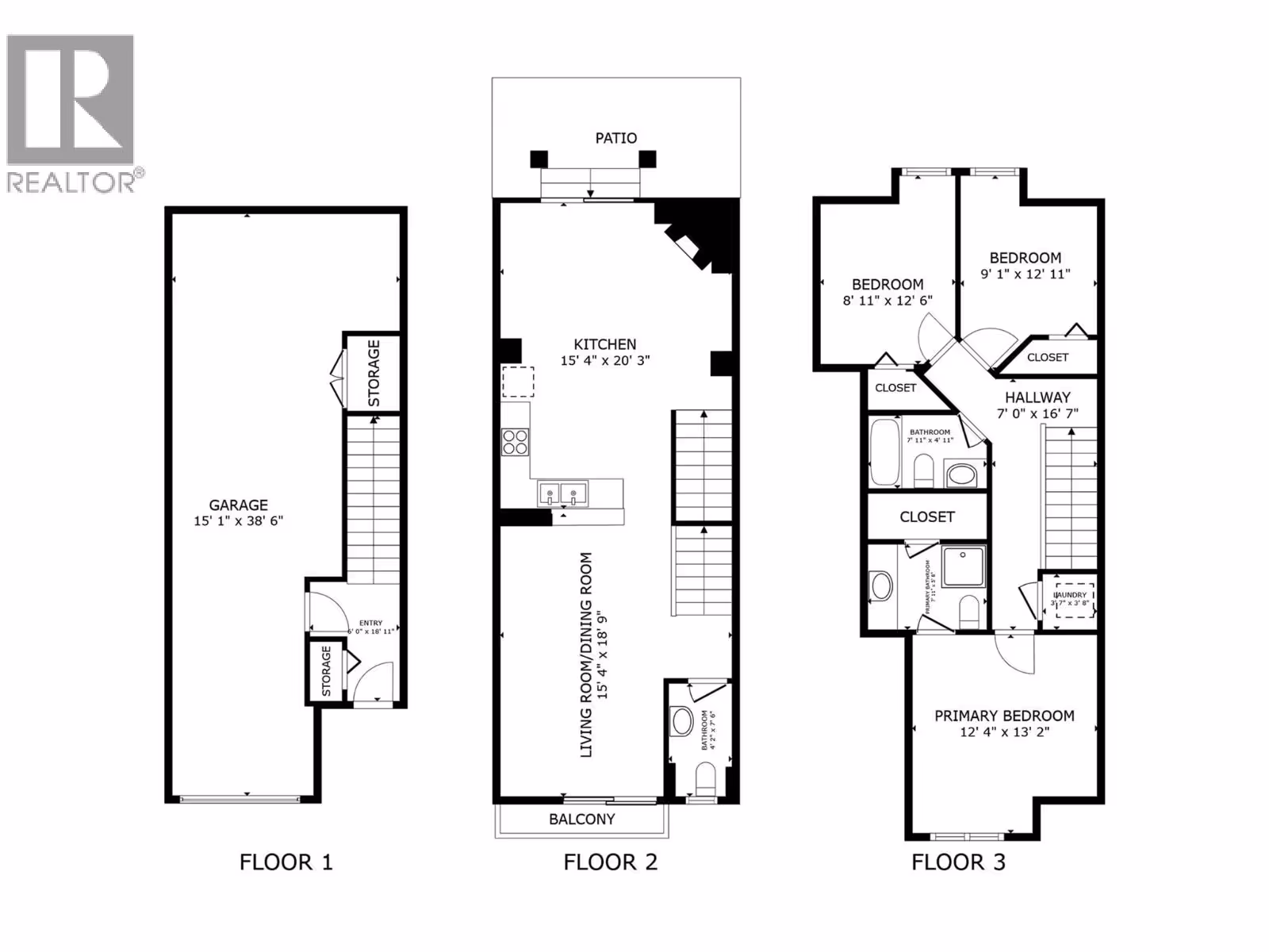
Parkside Villas - a well maintained gated community adjacent to Ben Lee Park and close to amenities. Bright and spacious 3-bedroom, 3-bathroom townhouse. Open concept main floor with island kitchen with gas range and stainless steel appliances. Dining/great room with corner gas fireplace and access to the landscaped backyard and patio with gas hook-up. Oversized living room with sliding glass doors to front deck. Upstairs, the spacious primary bedroom includes a walk-in closet and a 3-piece ensuite plus two additional generous-sized bedrooms and a second full bathroom plus laundry. Tandem garage accommodating two vehicles or the extra space can be modified to use as a home gym or recreation area. Amazing location; a short drive to schools, UBCO, YLW Airport, Walmart, Costco, and other shopping and amenities. The complex is pet-friendly, allowing up to two dogs or cats of any size, and rentals are permitted. The roof was recently replaced in 2024, and the strata fee includes water and snow removal. (id:58842)

Property Information

Property Type
Residential
SqUARE FOOTAGE
1346
 sqft
Structure Type
Row / Townhouse
LAND SIZE
Roof Type
Asphalt shingle
Lot
Balcony
SEWER Type
Municipal sewage system
Parking Spots
3
stories
3.0
Floor Type

More Information

Security
Controlled entry
View
Parking
Attached Garage
Exterior
Stucco
Community
Pet Restrictions, Rentals Allowed
Common inTEREST
Condo/Strata
Listing Key
28733162
MLS ID
10359124
listing Office
listing Office key
61706
3
Beds
3
Baths
$
585000

Virtual Tour

Map

Map

can help you buy this property.

Thank you! Your submission has been received!
Oops! Something went wrong while submitting the form.

Marcelle Goldstein

can help you buy this property.

Thank you! Your submission has been received!
Oops! Something went wrong while submitting the form.