3991 Desert Pines Avenue

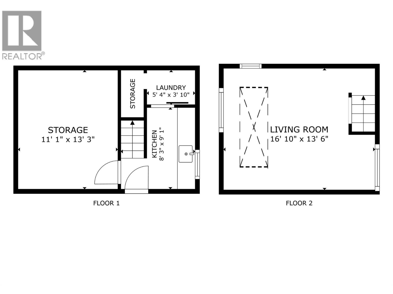
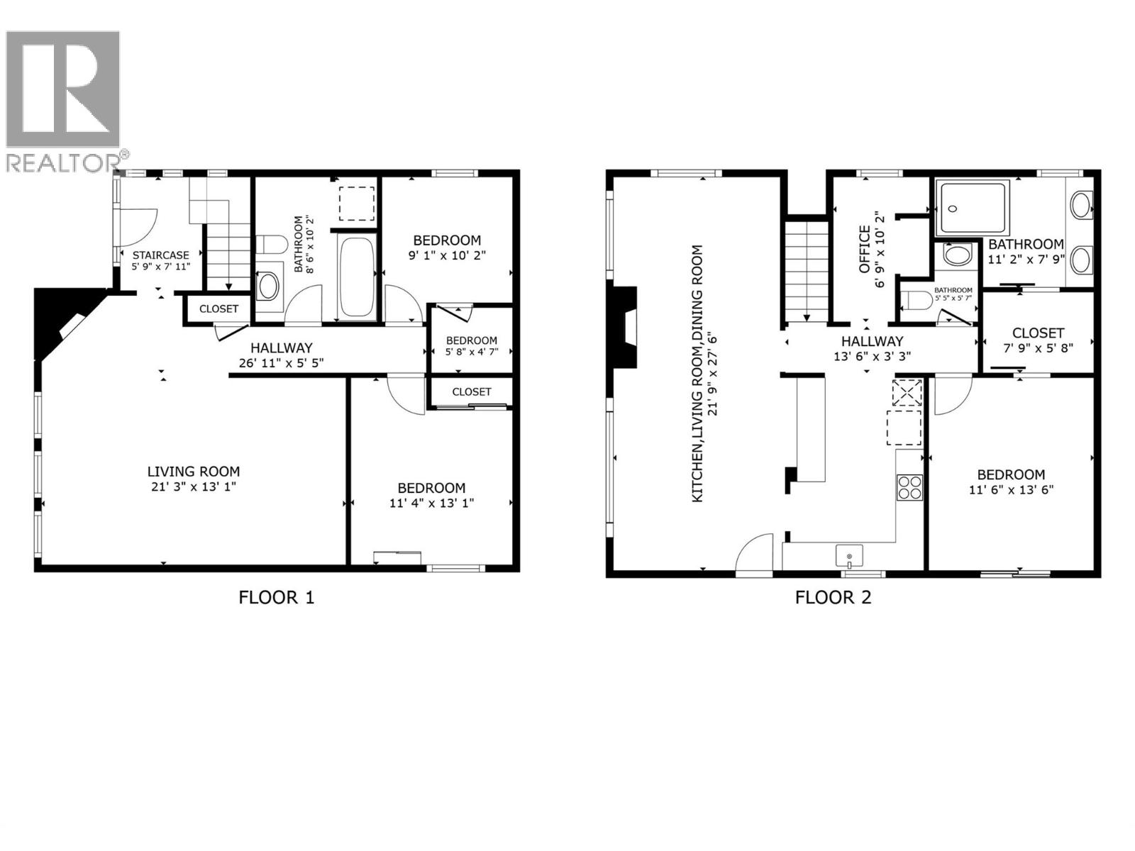
his is your opportunity to own a beautifully updated two-storey home on a desirable corner lot in Peachland, offering exceptional walkability plus space for a boat and RV. Inside, this professionally designed 3-bedroom, 2.5-bath home blends style and function with thoughtful upgrades throughout. The main living space showcases whitewashed cedar ceilings, a resurfaced fireplace, and a stunning new kitchen complete with a wine fridge. The ensuite features a spacious walk-in rain shower, while the lower bathroom offers heated floors for added everyday comfort. A private deck off the primary bedroom creates the perfect retreat for morning coffee or evening unwinding, while the 180-degree wraparound deck off the main living area extends your living space beautifully. Professionally sealed with a zero-seam finish, it offers durability and year-round enjoyment. Adding even more flexibility and value is the brand-new detached cabin, fully equipped with heat, air conditioning, its own kitchen, private deck, and outdoor shower. Whether used for guests, family, or short-term rental potential, this detached space is a standout feature. Outside, the property impresses with zero-scape landscaping, a new retaining wall, upgraded driveway, and low-voltage landscape lighting for striking curb appeal day and night. A private back deck offers room for outdoor dining and garden beds. The roof is approximately 10 years old, and the property is serviced with 200-amp power to the house and 60-amp service to the cabin. Luxury-inspired, designer-planned, and truly move-in ready. (id:58842)

Property Information

Property Type
Residential
SqUARE FOOTAGE
2330
 sqft
Structure Type
House
LAND SIZE
0.25 acres
Roof Type
Asphalt shingle
Lot
Corner Site
SEWER Type
Septic tank
Parking Spots
1
stories
2.0
Floor Type
Hardwood, Other, Ceramic Tile, Bamboo

More Information

Security
View
Lake view, Mountain view, View (panoramic)
Parking
Additional Parking
Exterior
Community
Common inTEREST
Freehold
Listing Key
29590469
MLS ID
10375926
listing Office
listing Office key
61706
3
Beds
3
Baths
$
839000

Virtual Tour

Map

Map

can help you buy this property.

Thank you! Your submission has been received!
Oops! Something went wrong while submitting the form.

Connie Yeh

can help you buy this property.

Thank you! Your submission has been received!
Oops! Something went wrong while submitting the form.