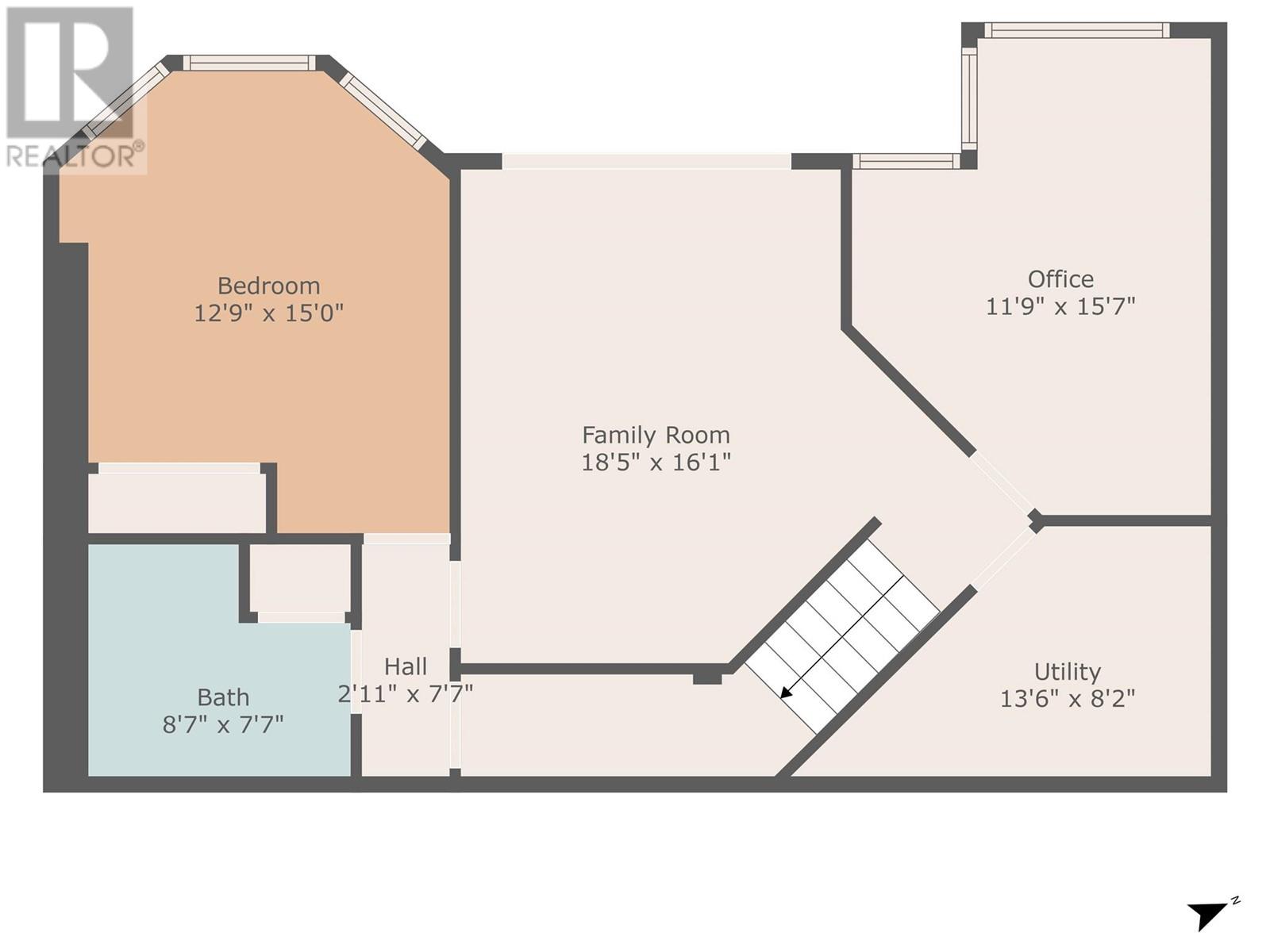
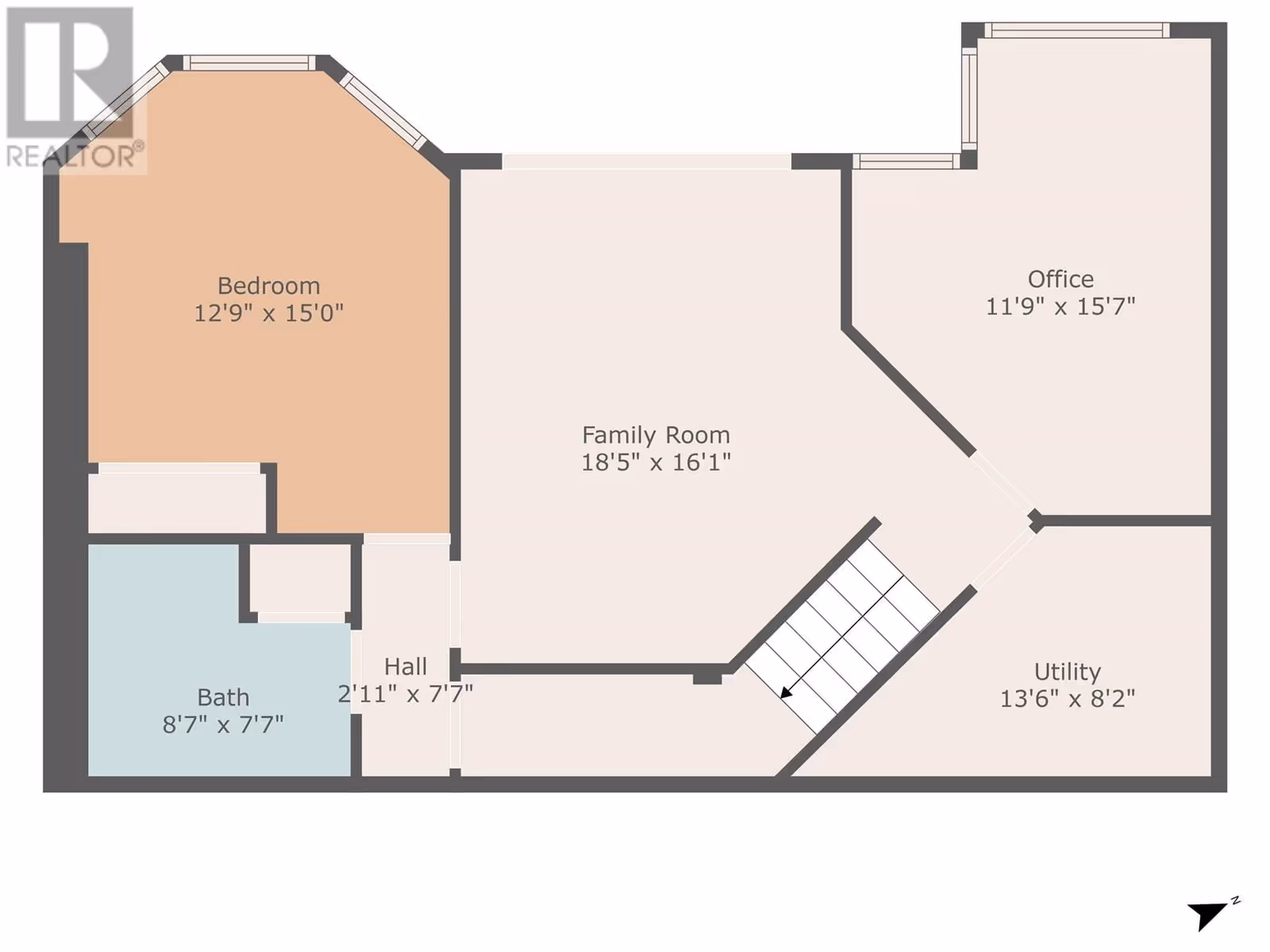
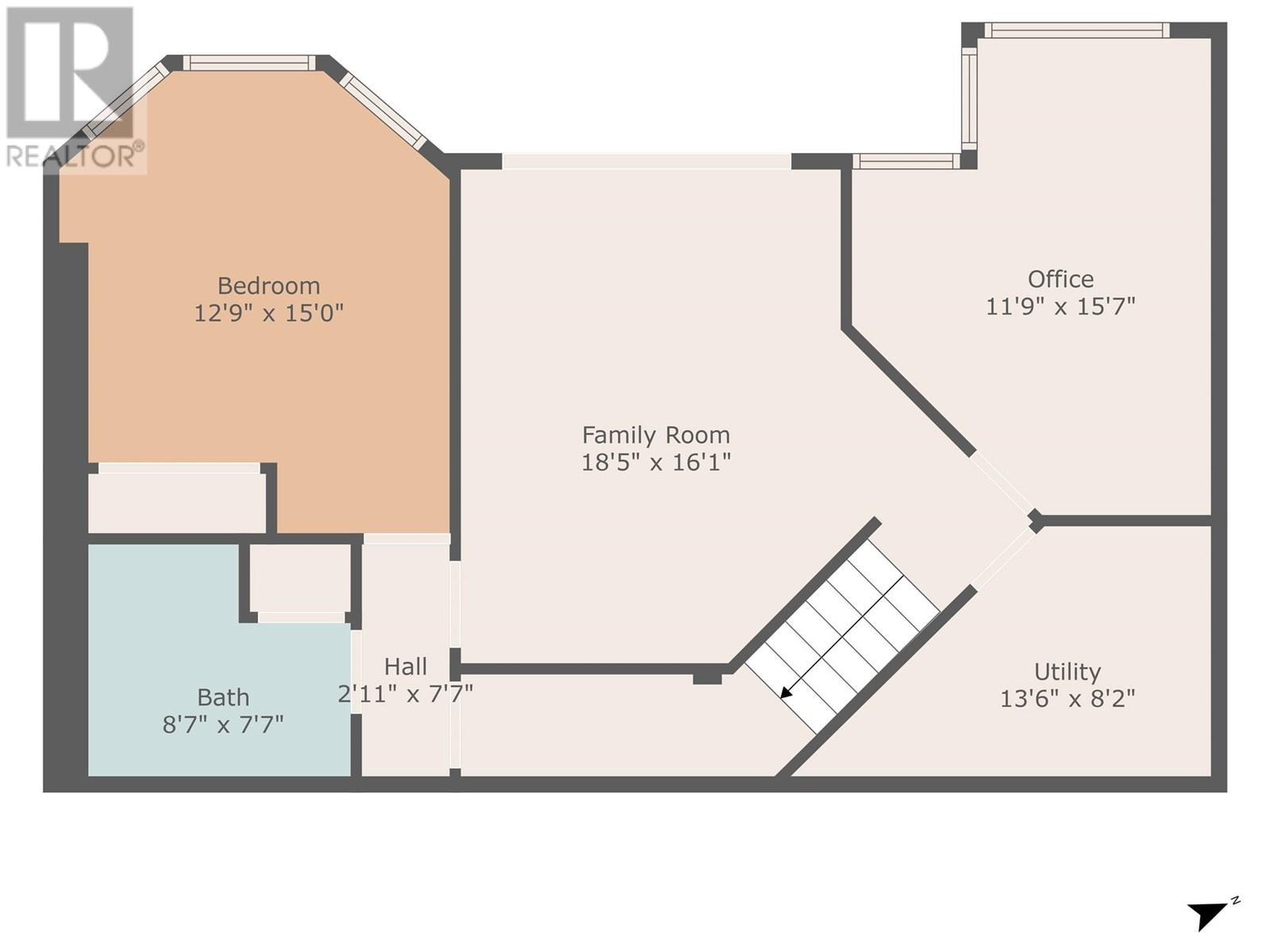
3888 Gallaghers Pinnacle Way Unit# 13

The Village at Gallaghers Canyon proudly offers resort-style living with an extensive variety of year-round amenities for the whole family to enjoy. This beautiful, mint condition Townhome boasts 2 levels, breathtaking views, private courtyard and spectacular deck views of the Glacial Kettle Water Feature, Pinnacle Golf Course, and Valley beyond. Unrivalled peaceful tranquility and breathtaking evening views from both the expansive Sundeck and the sun drenched view of Layer Cake Mountain from the Courtyard. Gallagher’s Canyon is a warm and friendly Lifestyle Community – unique to the Kelowna area, modelled after the very successful Resorts of the Del Webb Corp. in the US. A popular comment from new Residents is “It’s so easy to make friends here!"" (id:58842)

Property Information

Property Type
Residential
SqUARE FOOTAGE
2182
 sqft
Structure Type
Row / Townhouse
LAND SIZE
None None
Roof Type
Lot
SEWER Type
Municipal sewage system
Parking Spots
2
stories
2.0
Floor Type

More Information

Security
View
Parking
Attached Garage
Exterior
Community
Common inTEREST
Condo/Strata
Listing Key
28110774
MLS ID
10341716
listing Office
listing Office key
47837
2
Beds
3
Baths
$
895000

Virtual Tour

Map

Map

can help you buy this property.

Thank you! Your submission has been received!
Oops! Something went wrong while submitting the form.

David Delorme

can help you buy this property.

Thank you! Your submission has been received!
Oops! Something went wrong while submitting the form.