3585 Elk Road Unit# 30

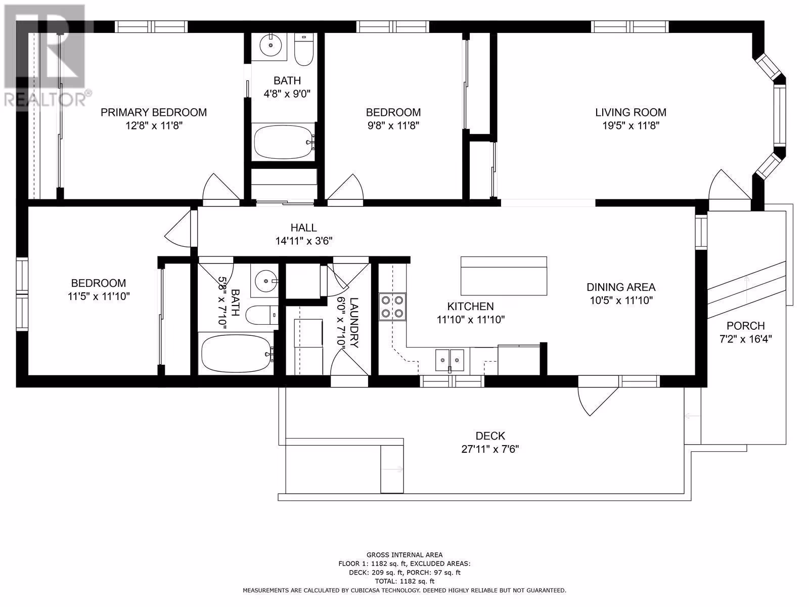
Discover comfort, space, and unbeatable value in this beautifully maintained 3-bedroom, 2-bathroom double-wide home, located in one of West Kelowna’s most desirable manufactured home communities. Perfectly suited for families, first-time buyers, or those looking to downsize, this home features a functional layout with generous living areas, plenty of natural light, and a low-maintenance yard—ideal for busy lifestyles or relaxed retirement. Recent updates include vinyl flooring, a newer roof, furnace, and hot water tank, giving you peace of mind for years to come. The open-concept design enhances the bright and spacious feel, making it perfect for both everyday living and entertaining. Nestled in a family-oriented, pet-friendly community with no age restrictions, you’ll be just minutes from top-rated schools, hiking trails, golf courses, award-winning wineries, restaurants, and the sparkling shores of Okanagan Lake. Fast possession available, so you can move in and start enjoying the Okanagan lifestyle right away. Financing options are available through BMO and other major lenders, making this an accessible path to homeownership. Lifestyle. Location. Livability — this one checks all the boxes. (id:58842)

Property Information

Property Type
Residential
SqUARE FOOTAGE
1248
 sqft
Structure Type
Manufactured Home
LAND SIZE
Roof Type
Asphalt shingle
Lot
Private setting
SEWER Type
Municipal sewage system
Parking Spots
2
stories
1.0
Floor Type
Laminate, Linoleum, Vinyl

More Information

Security
View
View (panoramic)
Parking
Additional Parking
Exterior
Community
Common inTEREST
Leasehold
Listing Key
29252578
MLS ID
10372871
listing Office
listing Office key
284212
3
Beds
2
Baths
$
289900

Virtual Tour

Map

Map

can help you buy this property.

Thank you! Your submission has been received!
Oops! Something went wrong while submitting the form.

Stephanie Gilchrist

can help you buy this property.

Thank you! Your submission has been received!
Oops! Something went wrong while submitting the form.