3283 Casorso Road Unit# 308

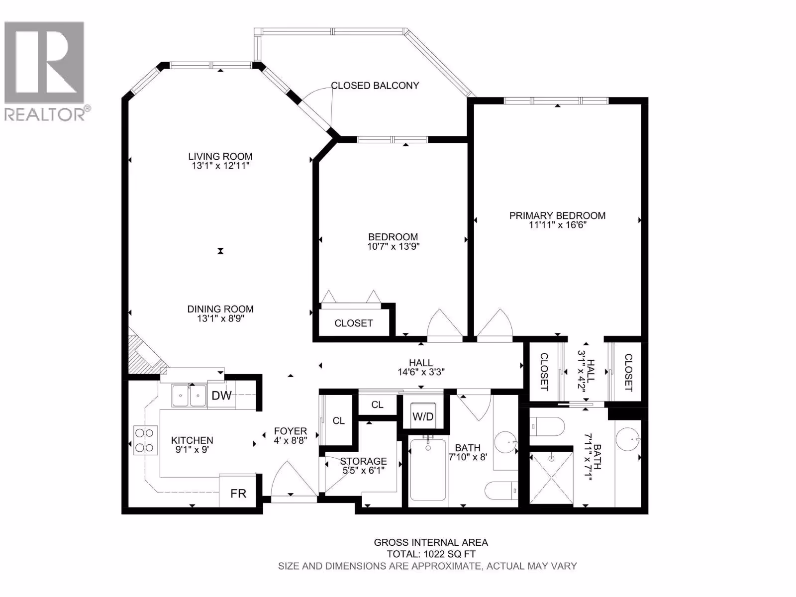
Available immediately - Immaculate bright and open Top floor Vaulted 2 Bed 2 Bath condo with stylish contemporary updates in this sought after 55+ complex! Ideally located in Kelowna's best neighborhood - South Pandosy - walk to beaches, shopping, dining, health care, or simply stroll across the courtyard for an afternoon swim or workout! This home will impress immediately walking through the door as the East facing windows cast brilliant sunlight throughout. With generous size rooms, a Primary (Master) with spacious his & her closets and a convenient large walk in shower in the ensuite bathroom. You'll find a cheerful and bright interior with no carpets, soaring vaulted living room ceiling and crown moldings throughout. From the generous U-shaped Kitchen with newer stainless appliances and pass-through, the family sized dining, and living room large enough to host family gatherings, you can downsize without sacrifice! Add to that each of the 2 spacious bedrooms offer peaceful mountain views to the East/South-east. This home shows pride of ownership and has been well cared for! Move in ready and offers a large separate pantry off the kitchen. Hawthorn Condos are part of a 55+ community that offers many amenities to choose from with access to Hawthorn Park for a low $45/m Resort Fee, and easy transition to Assisted Living if desired. $75/night Guest Rooms are also available. The unit is vacant and Available for Quick possession! (some photos staged) Call before it's sold! (id:58842)

Property Information

Property Type
Residential
SqUARE FOOTAGE
1061
 sqft
Structure Type
Apartment
LAND SIZE
Roof Type
Asphalt shingle
Lot
SEWER Type
Municipal sewage system
Parking Spots
1
stories
1.0
Floor Type
Laminate, Linoleum

More Information

Security
Security, Sprinkler System-Fire, Controlled entry, Smoke Detector Only
View
Mountain view, Valley view
Parking
Parkade
Exterior
Brick, Vinyl siding
Community
Seniors Oriented, Pet Restrictions, Pets Allowed With Restrictions, Rentals Allowed
Common inTEREST
Condo/Strata
Listing Key
28890805
MLS ID
10363615
listing Office
listing Office key
47837
2
Beds
2
Baths
$
369900

Virtual Tour

Map

Map

can help you buy this property.

Thank you! Your submission has been received!
Oops! Something went wrong while submitting the form.

Larry Guilbault

can help you buy this property.

Thank you! Your submission has been received!
Oops! Something went wrong while submitting the form.