2805 Doucette Drive

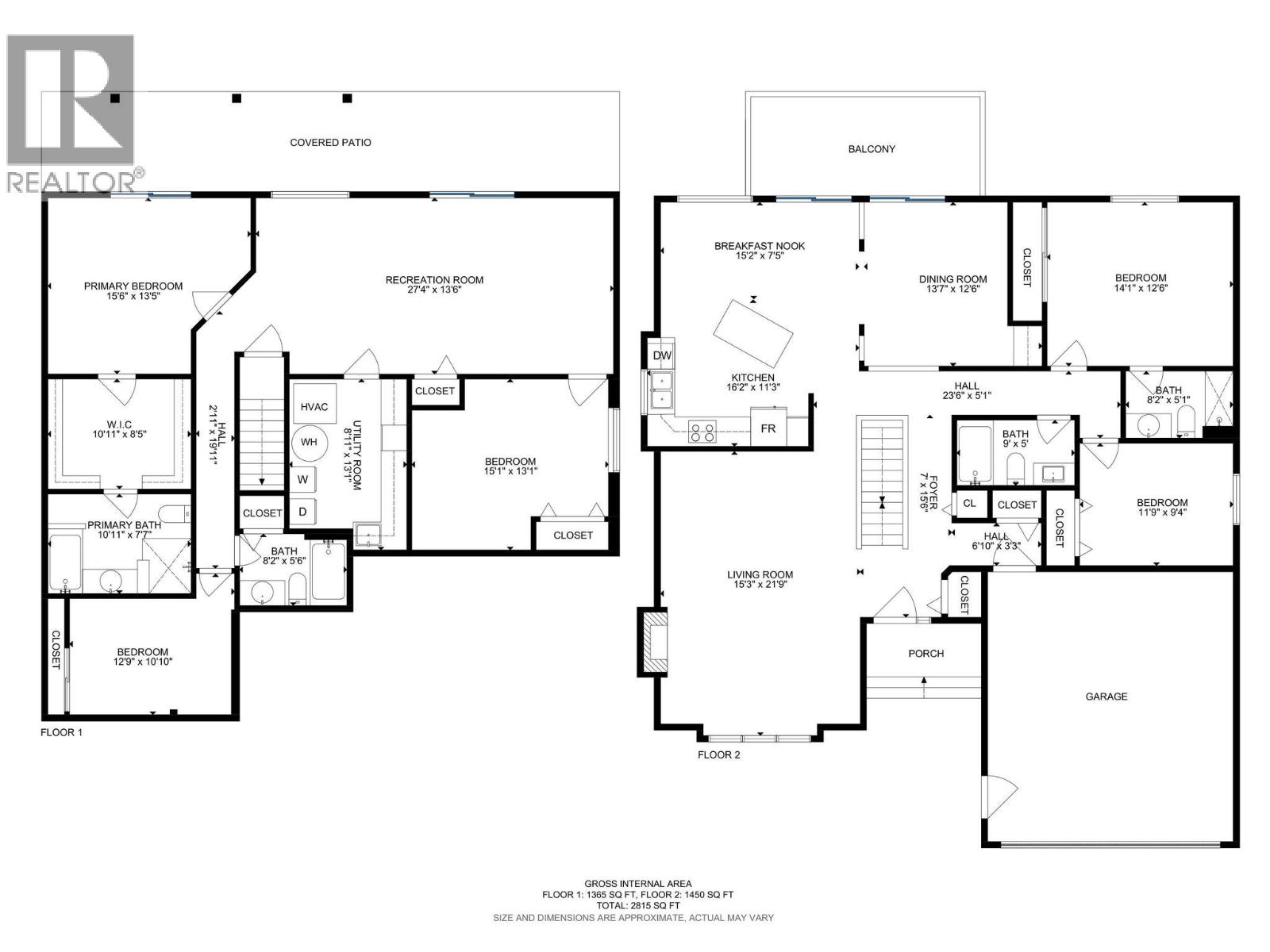
Welcome to this immaculate lakeview home in the heart of Smith Creek, offering just under 3,000 sq. ft. of living space with 4 bedrooms plus a den and 4 bathrooms. Perfectly designed for families or hosting, the home features a primary suite on both the main and lower levels, generously sized rooms, and an open concept layout filled with natural light from skylights and large windows throughout. The bright kitchen boasts stainless steel appliances, stylish cabinetry, and flows seamlessly into the dining area and living room with a cozy gas fireplace and hardwood flooring. Step outside to the expansive deck finished with newer Duradek to take in sweeping lake and valley views, or enjoy the fully fenced .17-acre backyard with new chain link, level lawn, and a lovely garden surrounded by privacy landscaping. The walkout lower level offers excellent suite potential and includes a spacious rec room, a primary bedroom with a huge walk-in closet, and access to the covered patio that is wired and ready for a hot tub. All the big-ticket items have been replaced, including a brand-new roof, furnace, and AC, plus PEX plumbing throughout and newer carpets in the bedrooms, making this a true move-in ready home. With a double garage, ample parking, and a desirable location on a quiet cul-de-sac close to schools, parks, wineries, and West Kelowna amenities, this property blends comfort, versatility, and peace of mind in one exceptional package. (id:58842)

Property Information

Property Type
Residential
SqUARE FOOTAGE
2953
 sqft
Structure Type
House
LAND SIZE
0.17 acres
Roof Type
Asphalt shingle
Lot
Central island, One Balcony
SEWER Type
Municipal sewage system
Parking Spots
7
stories
2.0
Floor Type
Tile, Hardwood, Carpeted, Ceramic Tile, Linoleum, Vinyl

More Information

Security
Smoke Detector Only
View
Lake view, Mountain view, Valley view
Parking
Attached Garage
Exterior
Vinyl siding
Community
Common inTEREST
Freehold
Listing Key
28799910
MLS ID
10361233
listing Office
listing Office key
47833
4
Beds
4
Baths
$
925000

Virtual Tour

Map

Map

can help you buy this property.

Thank you! Your submission has been received!
Oops! Something went wrong while submitting the form.

David Delorme

can help you buy this property.

Thank you! Your submission has been received!
Oops! Something went wrong while submitting the form.