2605 Alberta Court

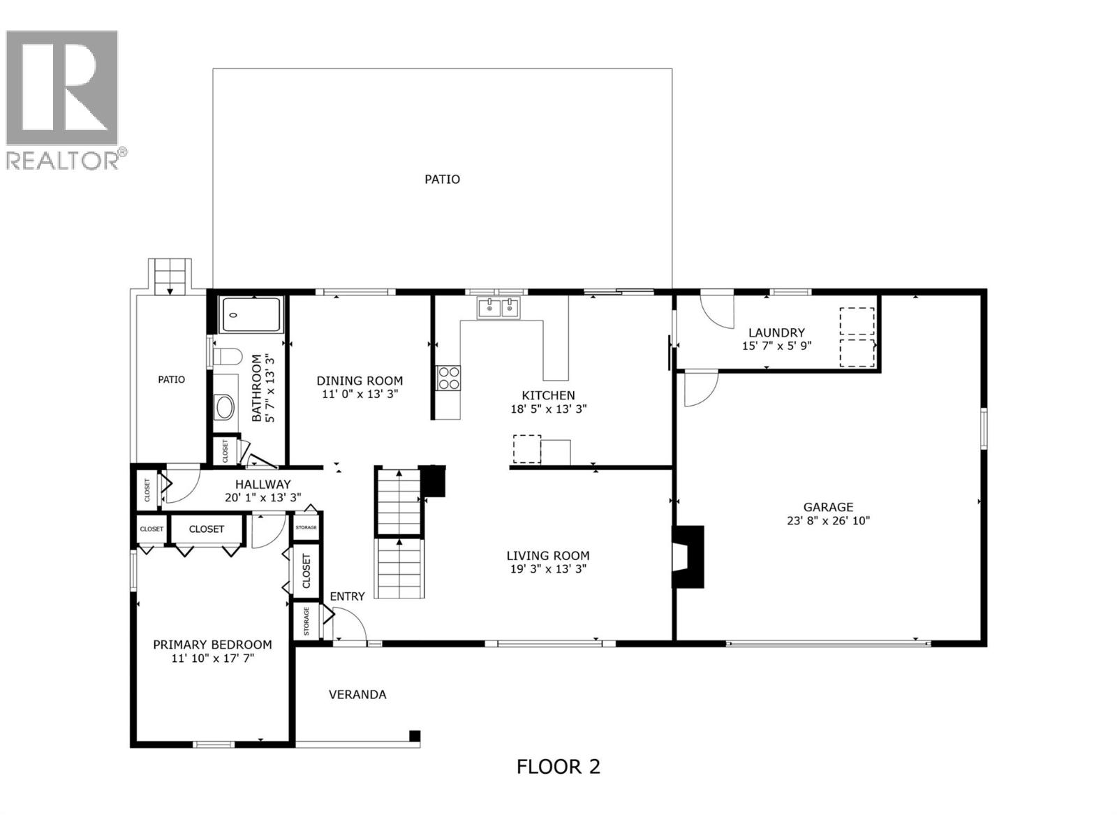
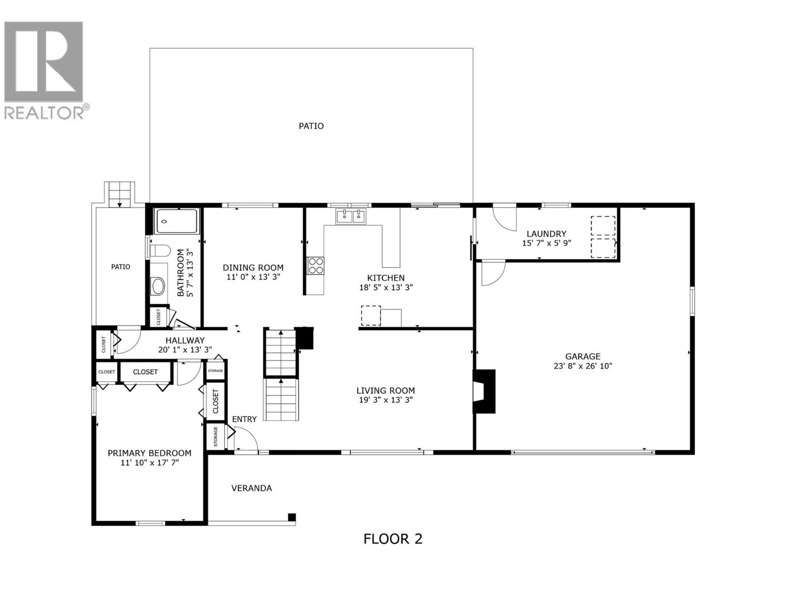
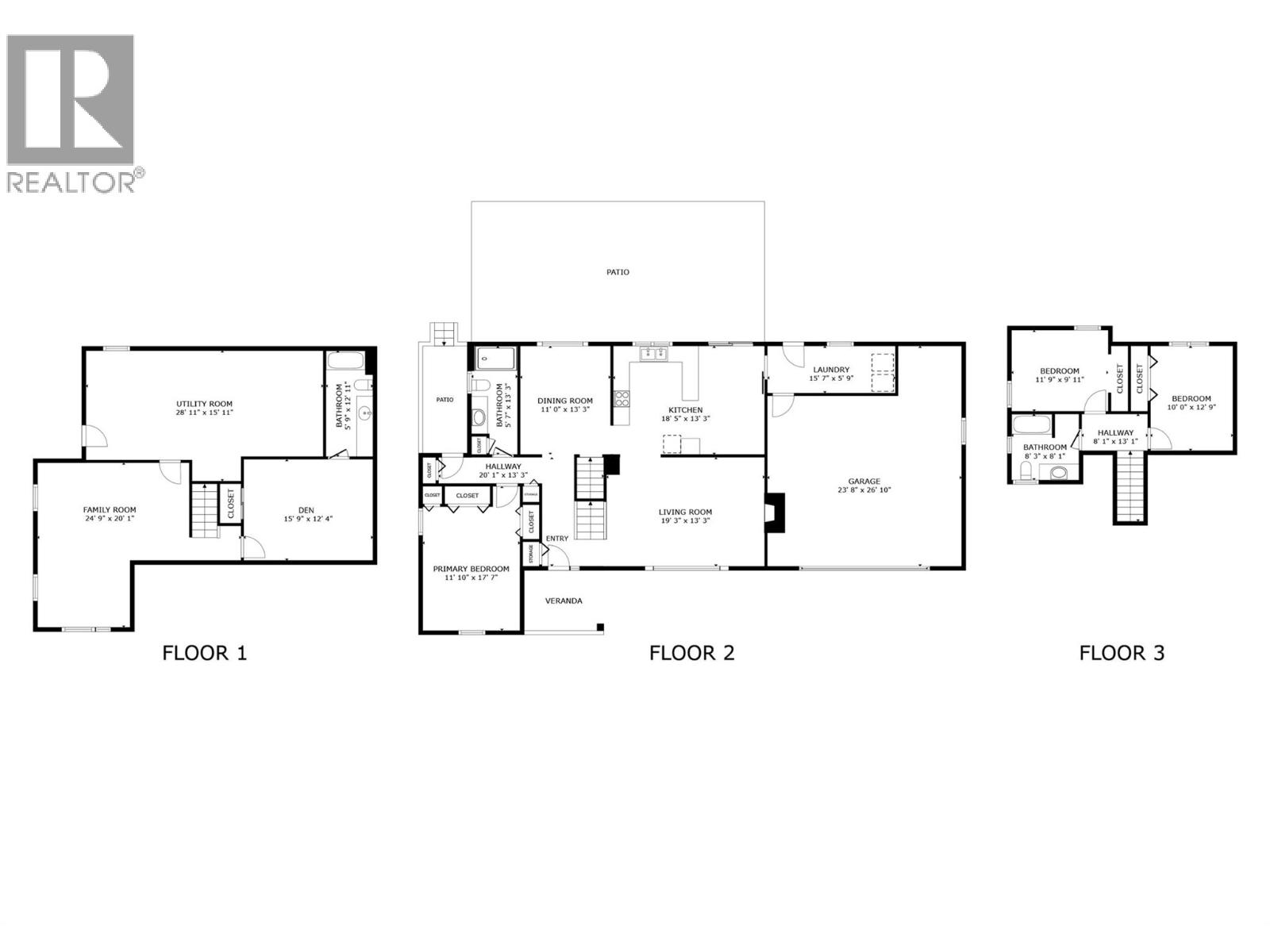
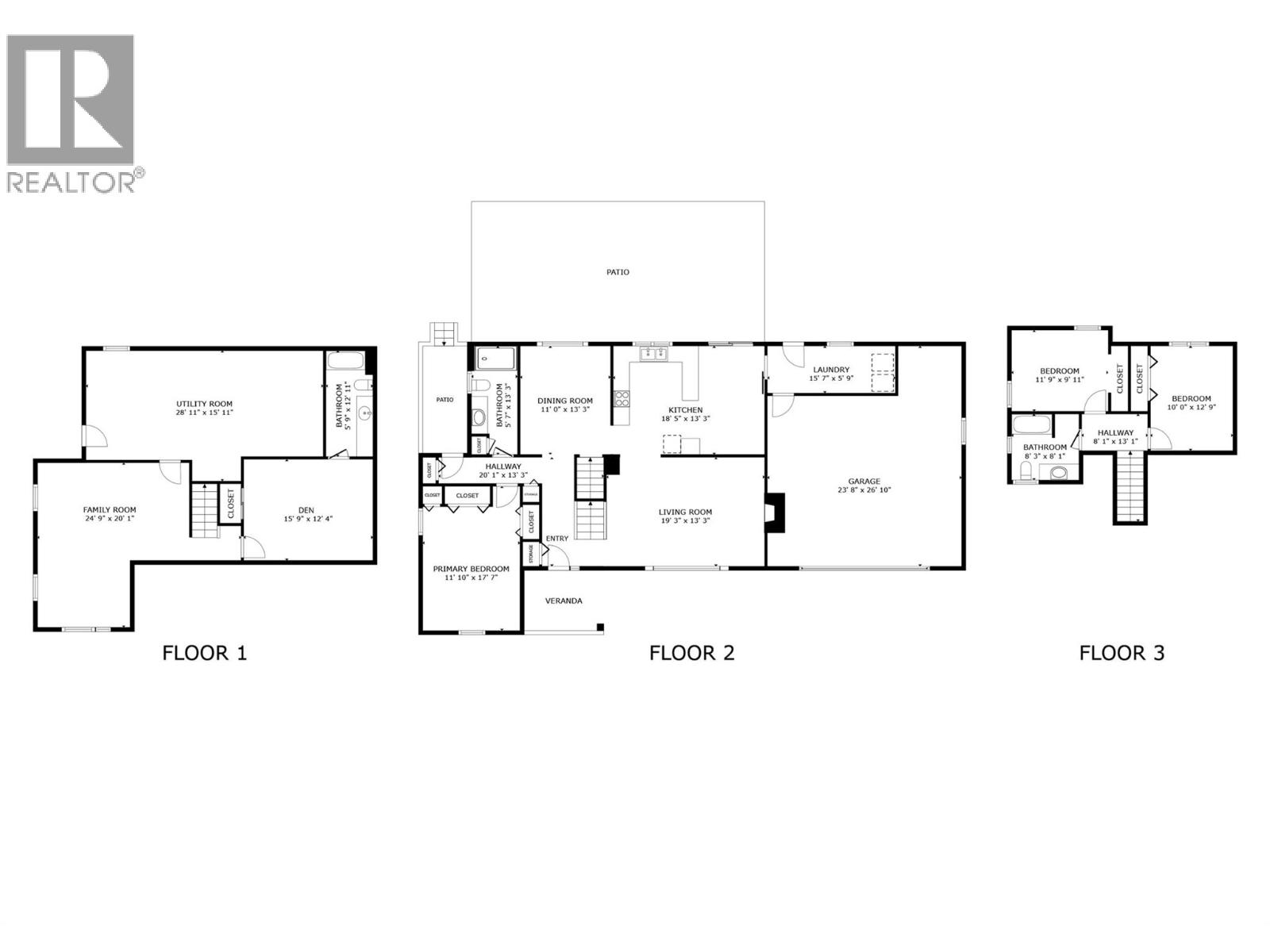
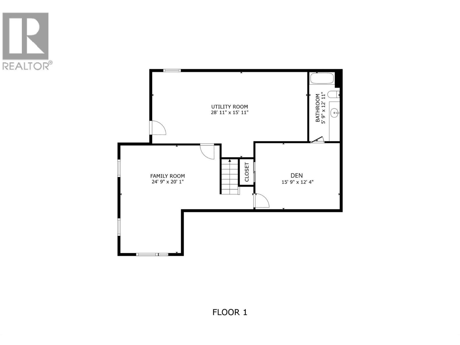
Welcome Home! This is your opportunity to live on the most desired, quiet cul-de-sac in the Hall Road area on an estate sized half-acre lot with 2 driveways! Step in to over 3,000 sqft with 3 bedrooms and a den (could be 4th bedroom w/ added window) in this 1.5 storey home plus a full basement w/ separate entrance. The main level hosts a spacious kitchen, breakfast nook, formal dining room, cozy living room (brand new carpets throughout house) and a separate laundry w/ several easy accesses to the magnificent, private and fully-fenced backyard with stamped concrete patio. The primary bedroom is located on the main across from an elegant bathroom, plus 2 bright bedrooms and a newly renovated full-bathroom upstairs. The basement offers a large den (potential 4th bed), 3rd full bathroom (brand new tub and tile surround) family and rec room area plus huge storage/utility area. This home has been cherished and offers incredible potential with solid bones. Equipped with built in vac, central air, underground irrigation and an oversized double garage (27ft deep one side). Loads of parking for RV and boats and potential for a suite with own driveway/entrance. Supreme cul-de-sac location with only 7 houses and an oaisis with plenty of space for a pool and/or detached shop. Walk to parks, bus stops, the turtle pond and the trails of Mission Creek from your front door. Rural living just minutes from world class golf and dining, orchards and wineries. Buy a slice of paradise today! (id:58842)

Property Information

Property Type
Residential
SqUARE FOOTAGE
3025
 sqft
Structure Type
House
LAND SIZE
0.5 acres
Roof Type
Asphalt shingle
Lot
Cul-de-sac, Private setting
SEWER Type
Septic tank
Parking Spots
10
stories
3.0
Floor Type
Tile, Laminate, Carpeted

More Information

Security
View
Parking
Attached Garage, Oversize
Exterior
Wood siding
Community
Family Oriented
Common inTEREST
Freehold
Listing Key
29220767
MLS ID
10371664
listing Office
listing Office key
61706
3
Beds
3
Baths
$
1148900

Virtual Tour

Map

Map

can help you buy this property.

Thank you! Your submission has been received!
Oops! Something went wrong while submitting the form.

Christian Kirschke

can help you buy this property.

Thank you! Your submission has been received!
Oops! Something went wrong while submitting the form.