1966 Enterprise Way Unit# 213

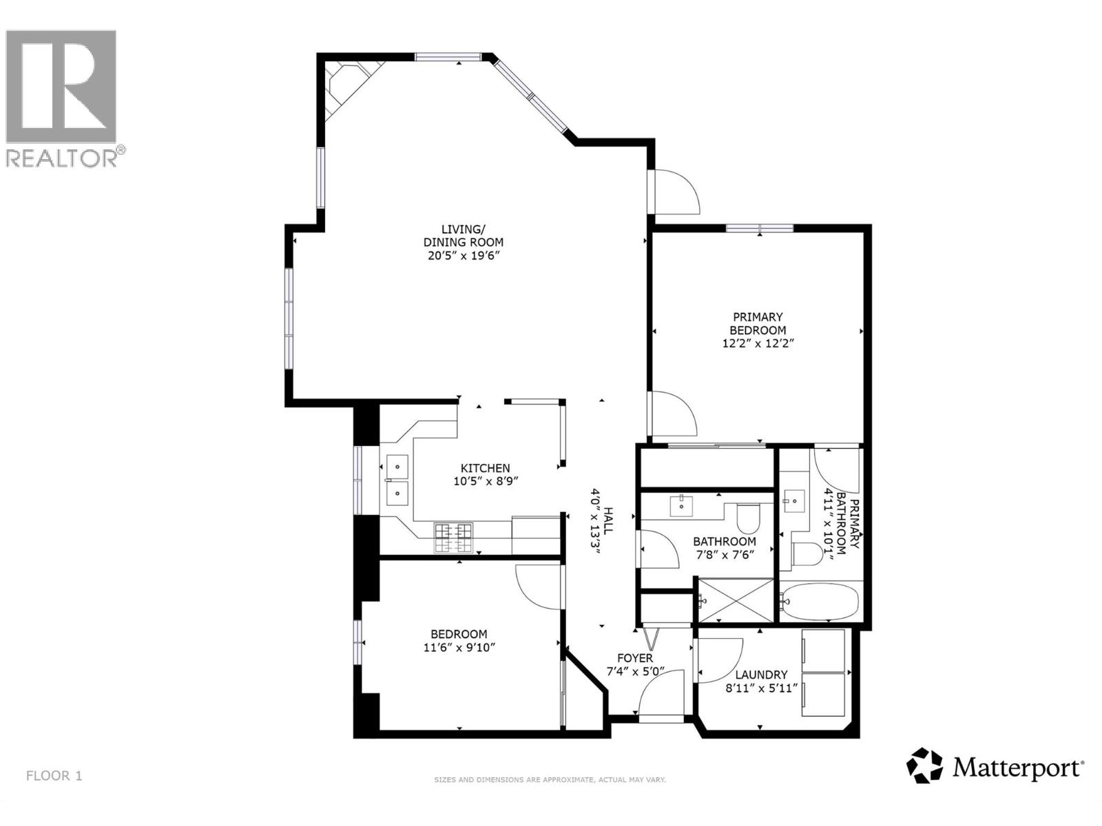
Bright, private, and perfectly positioned, this 2-bedroom, 2-bathroom corner unit offers exceptional value in a quiet, well-managed complex. Located on the second floor, the home is filled with natural light thanks to extra windows, including one in the kitchen—something you don’t come across every day. The thoughtful layout places the bedrooms on opposite sides, creating ideal separation and privacy for guests or shared living. The spacious patio feels like your own private retreat, perfect for relaxing while enjoying views toward Dilworth. Inside, the home feels larger than its 1,055 square feet, offering comfortable and functional living throughout. Residents enjoy access to a recently upgraded clubhouse and pool, all within a mature, exceptionally well-run strata. Tucked just off Enterprise, the location is central yet surprisingly quiet, making it a great fit for downsizers, retirees, or first-time buyers. It’s the kind of place that simply feels easy to live in. (id:58842)

Property Information

Property Type
Residential
SqUARE FOOTAGE
1055
 sqft
Structure Type
Apartment
LAND SIZE
Roof Type
Asphalt shingle
Lot
Level lot, One Balcony
SEWER Type
Municipal sewage system
Parking Spots
1
stories
1.0
Floor Type
Carpeted, Ceramic Tile, Linoleum

More Information

Security
Sprinkler System-Fire, Smoke Detector Only
View
Mountain view
Parking
Underground
Exterior
Stone, Stucco
Community
Common inTEREST
Condo/Strata
Listing Key
29576247
MLS ID
10381100
listing Office
listing Office key
163499
2
Beds
2
Baths
$
475000

Virtual Tour

Map

Map

can help you buy this property.

Thank you! Your submission has been received!
Oops! Something went wrong while submitting the form.

Robert A. Wood

can help you buy this property.

Thank you! Your submission has been received!
Oops! Something went wrong while submitting the form.