1850 Shannon Lake Road Unit# 129

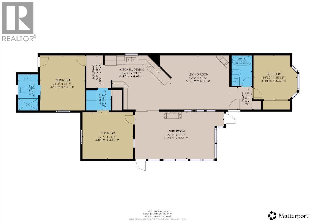
Welcome to this beautifully renovated residence on a quiet, no-through road in the highly sought-after Crystal Springs - a 55+ community renowned for its strong management, friendly neighbours and pride of ownership. This is not your average manufactured home - every detail has been thoughtfully upgraded to deliver comfort, style, and peace of mind. This spacious 3-bed, 2-bath residence offers over 1300 sq ft of bright, open living space with a functional layout ideal for downsizing without compromise. The living room features a custom-built wall feature that adds warmth, character, and a polished focal point, complemented by a cozy gas fireplace and modern ceiling fan and recessed lighting. The fully updated kitchen glistens w/ skylights, quartz counters, undermount sink, modern fixtures, high-end appliances (including a smart-stove w/ air-fry), wine fridge, large pantry, and freshly refinished cabinetry. The primary suite has walk-in closet and spa-inspired ensuite w/ body-jet shower. The 2nd bedroom boasts bay windows and and a versatile third bedroom has exterior access. Extensive upgrades include new plumbing, electrical, lighting, interior doors, blinds, vanities, toilets, and LG washer and dryer. Relax outdoors in your sunroom or under the gazebo surrounded by attractive, low-maintenance landscaping including composite stairs, pavers, smart irrigation, power conduit to the shed and LED exterior lighting. One dog or indoor cat allowed (12 lbs. max) and room for the RV! (id:58842)

Property Information

Property Type
Residential
SqUARE FOOTAGE
1100
 sqft
Structure Type
Manufactured Home
LAND SIZE
Roof Type
Asphalt shingle
Lot
SEWER Type
Municipal sewage system
Parking Spots
2
stories
1.0
Floor Type
Vinyl

More Information

Security
Smoke Detector Only
View
Mountain view
Parking
Carport
Exterior
Vinyl siding
Community
Seniors Oriented, Pets Allowed, Pet Restrictions, Pets Allowed With Restrictions
Common inTEREST
Listing Key
29261900
MLS ID
10372795
listing Office
Royal LePage Kelowna
listing Office key
47748
3
Beds
2
Baths
$
404900

Virtual Tour

Map

Map

can help you buy this property.

Thank you! Your submission has been received!
Oops! Something went wrong while submitting the form.

Ellen Churchill

can help you buy this property.

Thank you! Your submission has been received!
Oops! Something went wrong while submitting the form.