1835 Nancee Way Court Unit# 35

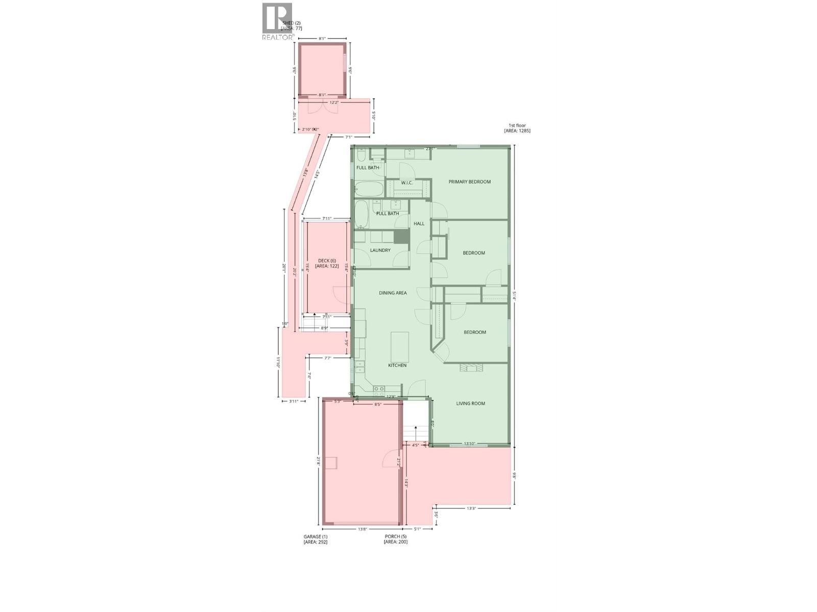
Immerse yourself in the beauty of the Okanagan from this pristine home, ideally situated just minutes from vibrant downtown Kelowna and charming Westbank. Nancee Way Village is a warm, family- and pet-friendly community. Built in 2017, this modern residence offers 3 bedrooms and 2 full bathrooms, with multiple outdoor spaces that make it a true year-round sanctuary. Inside, a bright, contemporary kitchen awaits - quartz countertops, stainless steel appliances, abundant cabinetry, and a solar tube that fills the space with natural light. The generous island, complete with soft-close pull-out drawers, serves as both a prep hub and a social centerpiece, while the spacious pantry keeps everything organized. Vaulted ceilings throughout elevate the sense of openness, creating an inviting atmosphere for everyday living and effortless entertaining. The primary bedroom is a peaceful retreat with a walk-in closet for ample storage. Every window features upgraded tinting for enhanced privacy, UV protection, and year-round comfort. Additional perks include a garage with extra parking and a charming backyard shed for bonus storage. This home offers more than a place to live; it delivers a lifestyle defined by community, modern comfort, and effortless access to the best of the Okanagan. (id:58842)

Property Information

Property Type
Residential
SqUARE FOOTAGE
1285
 sqft
Structure Type
Manufactured Home
LAND SIZE
Roof Type
Asphalt shingle
Lot
SEWER Type
Municipal sewage system
Parking Spots
0
stories
1.0
Floor Type

More Information

Security
View
Parking
Additional Parking
Exterior
Community
Common inTEREST
Leasehold
Listing Key
29487305
MLS ID
10379703
listing Office
REMAX Kelowna
listing Office key
47837
3
Beds
2
Baths
$
529900

Virtual Tour

Map

Map

can help you buy this property.

Thank you! Your submission has been received!
Oops! Something went wrong while submitting the form.

Grant Good

can help you buy this property.

Thank you! Your submission has been received!
Oops! Something went wrong while submitting the form.