166 Asher Road

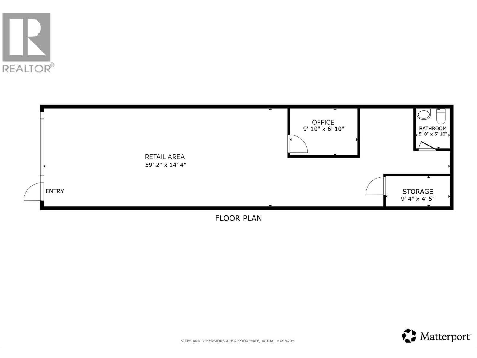
COMPLEX FACADE UPDATE IN PROGRESS! In-line, street level commercial unit available in the Asher Complex, located in the heart of the Rutland Urban Centre. Approx. 915 SF of versatile commercial space, featuring a large, open retail area to the front of the unit with oversized, street facing windows & glass entry door, individual office, flexible back area to use for staff, office or storage. Unit includes a washroom and a storage room to the rear. Parking available to the front and rear of the unit. Centrally located, close to restaurants, coffee shops, banks, boutique businesses, public transportation and only a short walk to Plaza 33. Sorry, no food uses. Vacant at the end of this month. The adjoining unit, 168 Asher Road (+/-2,085 SF) is also available for lease and can be combined if a larger footprint is desirable. Sorry, no food or Vape uses. (id:58842)

Property Information

Property Type
Commercial
SqUARE FOOTAGE
915
 sqft
Structure Type
Retail
LAND SIZE
Roof Type
Lot
SEWER Type
Parking Spots
0
stories
Floor Type

More Information

Security
View
Parking
Exterior
Community
Common inTEREST
Listing Key
29004196
MLS ID
10366162
listing Office
RE/MAX Kelowna
listing Office key
47837
0
Beds
0
Baths
$
0

Virtual Tour

Map

Map

can help you buy this property.

Thank you! Your submission has been received!
Oops! Something went wrong while submitting the form.

Marion Lahey

can help you buy this property.

Thank you! Your submission has been received!
Oops! Something went wrong while submitting the form.