1572 Parkinson Road

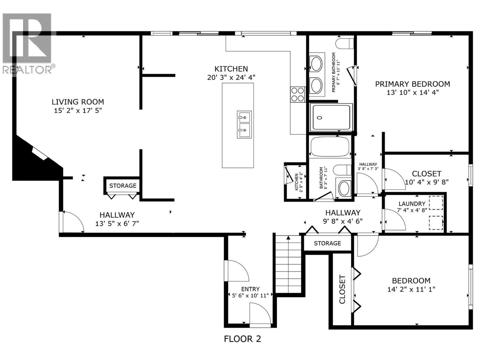
Opportunities abound in this 5-bedroom, 4-bath walkout rancher! Not only does it have a legal suite, it also has an 'office' that is separate from the home and could be used as a home-based business. It also features a double attached garage for the main home, and a lower-level single attached garage for the one-bedroom suite - making it a really attractive option for potential tenants OR for multigenerational family living. The kitchen in this home has been beautifully renovated, with quartz countertops, high-grade appliances, and a water tap above the gas stove. And lots of windows to take in the gorgeous lake views, including a pass-through window from the kitchen to the deck! The kitchen also features a sit-up bar island, a coffee station, and a work desk area with views. Spacious vaulted living room with a gas fireplace and more lake views! The main home has 4 bedrooms & 3 baths (also renovated), and the newly designed legal suite has 1 bed, 1 bath, with a full kitchen, laundry, and lounging space. Lots of parking on two separate driveways on this property, including RV parking. A tiered, partially fenced yard, with lovely rock wall accents, allowing for your creative landscaping ideas to make it home! Lots of patio space - with separated space for a tenant, plus a rooftop patio above the single garage - a great place to tan and enjoy the lake and valley views! 2 blocks from elementary school and 2 blocks from extensive trail system. Priced below assessed value! (id:58842)

Property Information

Property Type
Residential
SqUARE FOOTAGE
3188
 sqft
Structure Type
House
LAND SIZE
0.28 acres
Roof Type
Asphalt shingle
Lot
Corner Site, Irregular lot size, Two Balconies
SEWER Type
Municipal sewage system
Parking Spots
2
stories
2.0
Floor Type
Tile, Carpeted, Vinyl

More Information

Security
View
Parking
Attached Garage, Additional Parking
Exterior
Community
Family Oriented
Common inTEREST
Freehold
Listing Key
29418299
MLS ID
10376287
listing Office
Century 21 Assurance Realty Ltd
listing Office key
61706
5
Beds
4
Baths
$
987000

Virtual Tour

Map

Map

can help you buy this property.

Thank you! Your submission has been received!
Oops! Something went wrong while submitting the form.

Marion Lahey

can help you buy this property.

Thank you! Your submission has been received!
Oops! Something went wrong while submitting the form.