1415 Highland Drive S

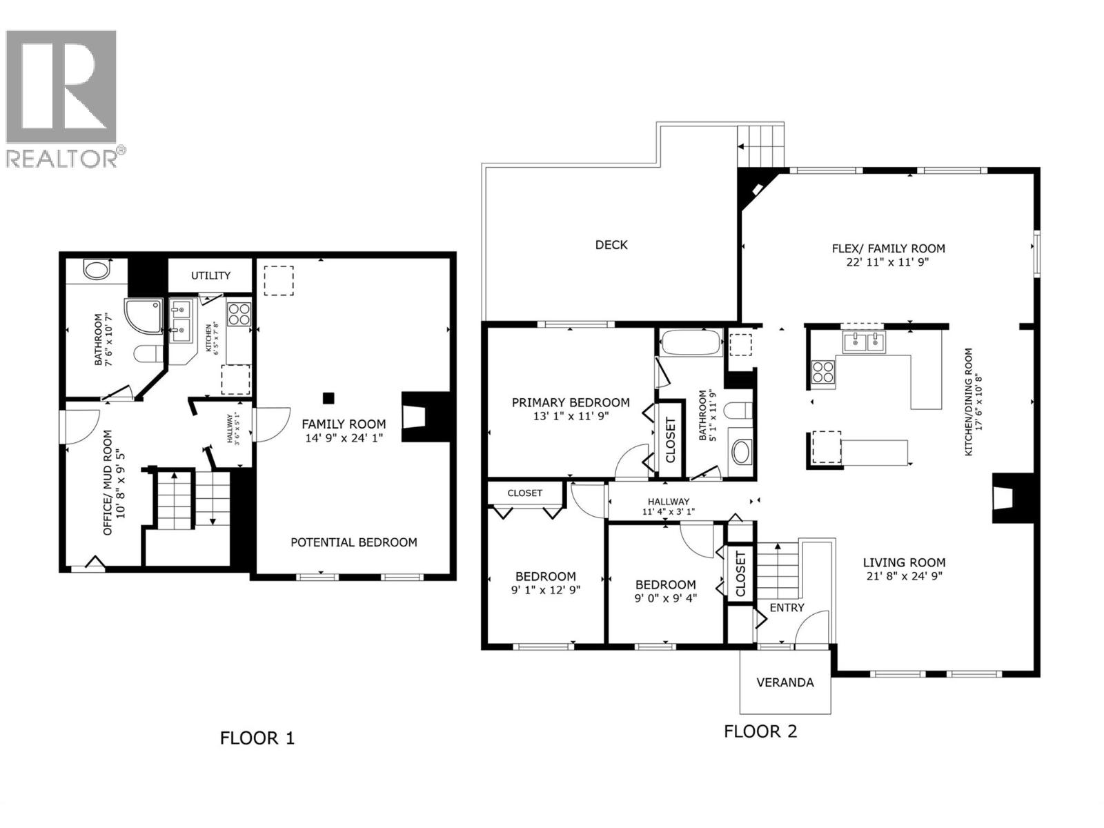
Updated family home with a self contained mortgage helper in a quiet neighbourhood. Gorgeous vaulted architechture with tongue in groove finishing makes this a unique home - airy and open. Three bedrooms up including a primary with cheater ensuite. Great room plan with open kitchen/dining/living room area. Huge bonus/ flex room with cozy gas fireplace overlooking the back yard; perfect for a family room, home office, or gym. Studio suite down that could be a one bedroom or reopened to the main home if preferred. Large, grassy, fenced back yard. Private, partially covered deck with mountain views. Carport, loads of parking. 10 x 15 secure, dry, under-deck shop/storage. MF1 zoning. Walking distance to parks, schools, transit and downtown! Perfect for a family, investor, or both! Vacant possession after October 31. (id:58842)

Property Information

Property Type
Residential
SqUARE FOOTAGE
2272
 sqft
Structure Type
House
LAND SIZE
0.17 acres
Roof Type
Asphalt shingle
Lot
SEWER Type
Municipal sewage system
Parking Spots
5
stories
2.0
Floor Type
Laminate, Ceramic Tile

More Information

Security
View
Mountain view, View (panoramic)
Parking
Carport
Exterior
Stucco, Wood siding
Community
Common inTEREST
Freehold
Listing Key
28976994
MLS ID
10365215
listing Office
listing Office key
61706
3
Beds
2
Baths
$
899000

Virtual Tour

Map

Map

can help you buy this property.

Thank you! Your submission has been received!
Oops! Something went wrong while submitting the form.

Karen Guy

can help you buy this property.

Thank you! Your submission has been received!
Oops! Something went wrong while submitting the form.