1289 Ellis Street Unit# 212

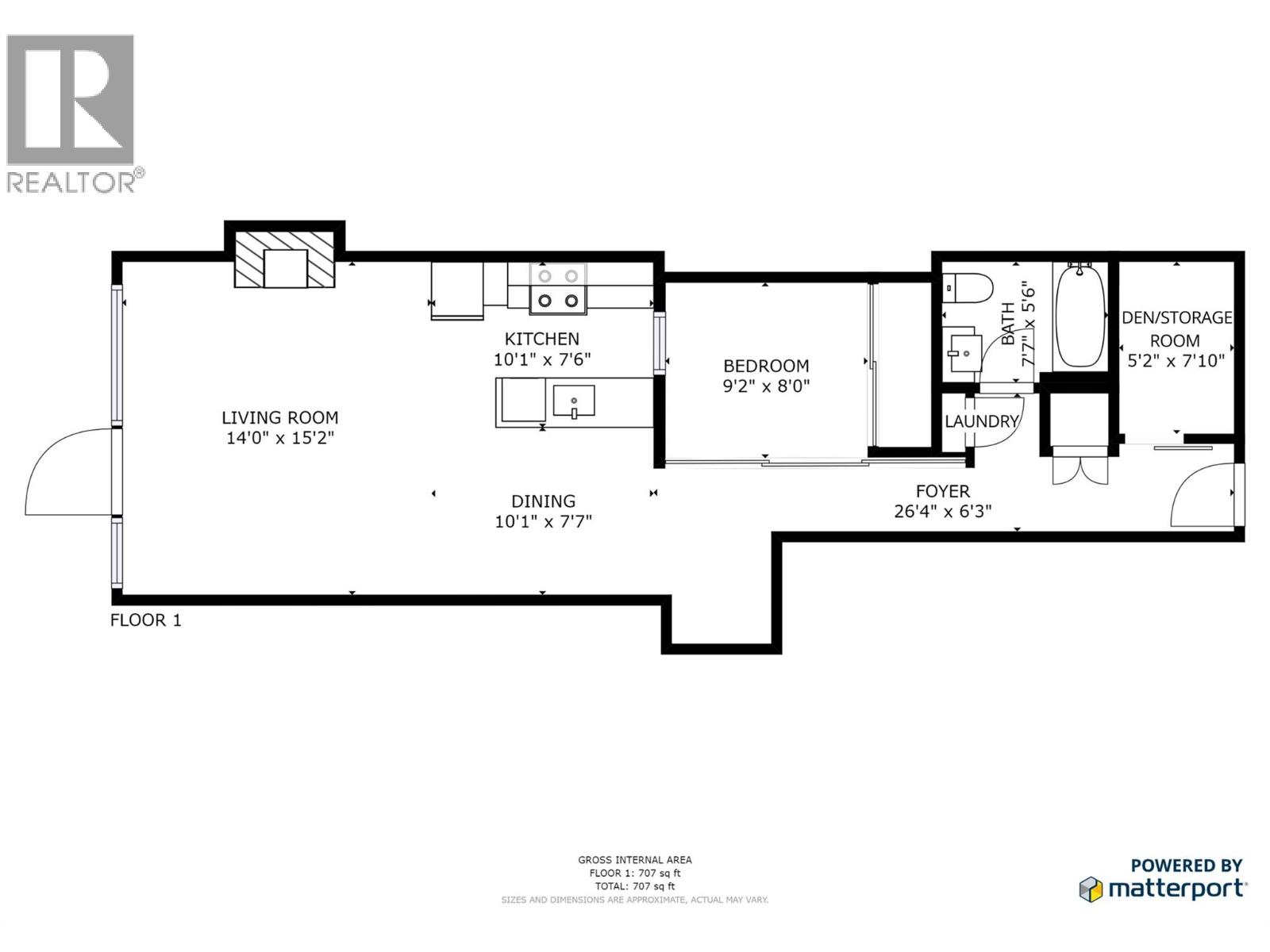
Located in the heart of Kelowna’s Cultural District, this 1-bedroom plus den home at Cannery Lofts combines modern design with exceptional outdoor space. The open layout features 9’ ceilings, light bamboo floors, and floor-to-ceiling windows that fill the space with natural light. A full glass wall opens to a private 18’x16’ deck—ideal for morning coffee or shaded evening gatherings. Contemporary finishes and a cozy fireplace add warmth and style, while residents can also enjoy the rooftop patio with lake views. From the beach to Prospera Place and Kelowna’s best dining, everything downtown offers is just steps away. Available for quick possession. Telus fibre optic installed. Parking stall #35. Square footage is taken from the strata plan. Pets allowed with Restrictions: 1 dog (Breed Restrictions) 30"" at shoulder or 2 cats, or 2 dogs with a combined shoulder height of 30"". Updated furnace in the last 3-4 years. (id:58842)

Property Information

Property Type
Residential
SqUARE FOOTAGE
753
 sqft
Structure Type
Apartment
LAND SIZE
Roof Type
Tar & gravel
Lot
Level lot, See remarks, Central island, One Balcony
SEWER Type
Municipal sewage system
Parking Spots
1
stories
1.0
Floor Type
Tile, Hardwood

More Information

Security
Smoke Detector Only
View
City view, Mountain view
Parking
Underground
Exterior
Brick, Stucco
Community
Pet Restrictions, Pets Allowed With Restrictions, Rentals Allowed
Common inTEREST
Condo/Strata
Listing Key
28974799
MLS ID
10365272
listing Office
listing Office key
47837
1
Beds
1
Baths
$
389000

Virtual Tour

Map

Map

can help you buy this property.

Thank you! Your submission has been received!
Oops! Something went wrong while submitting the form.

Stephanie Gilchrist

can help you buy this property.

Thank you! Your submission has been received!
Oops! Something went wrong while submitting the form.