1270 Houghton Road

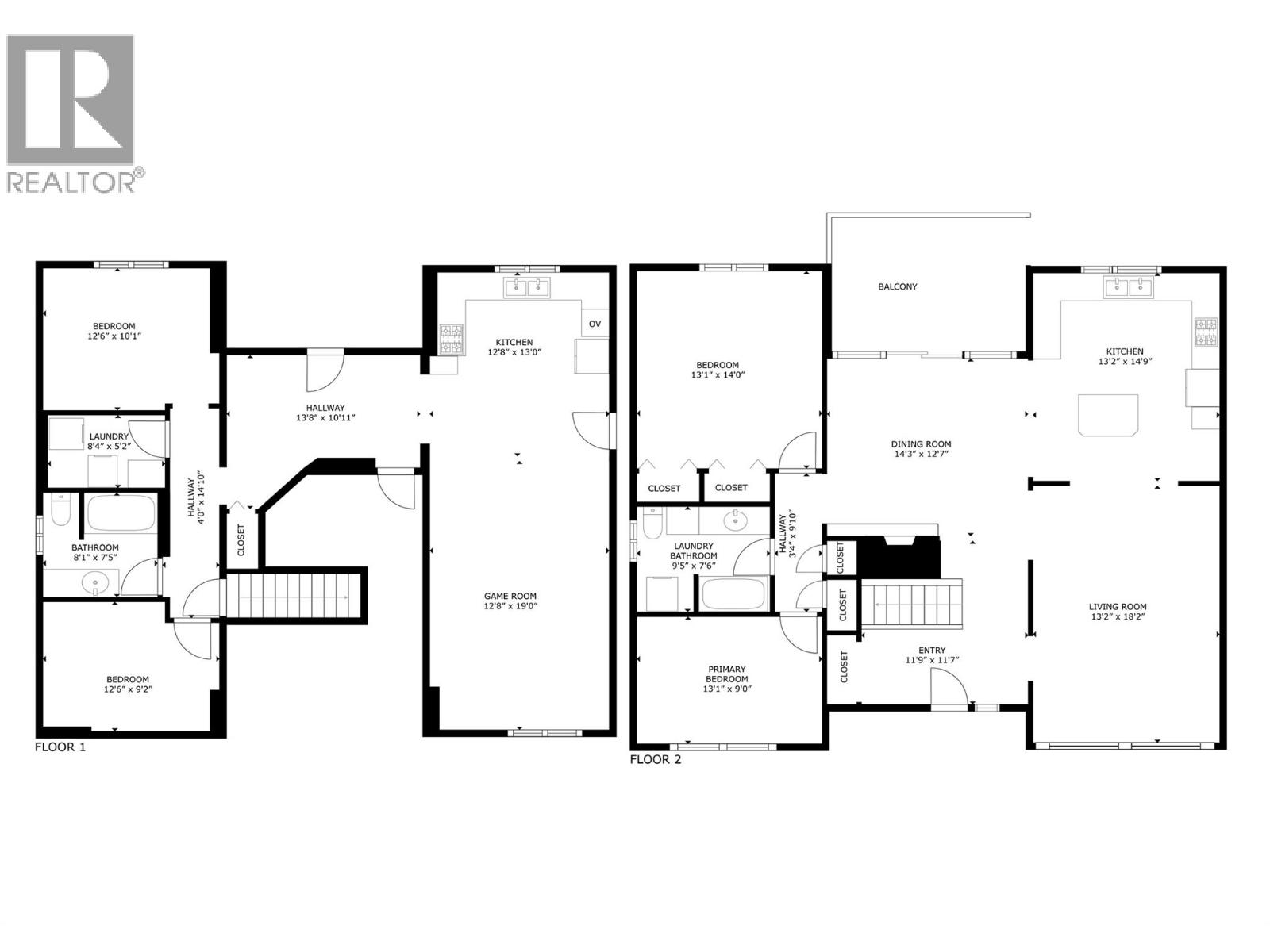
A great opportunity to own a huge 0.25-acre corner lot in the heart of Rutland North, zoned multi-family, potential for future development or enjoy solid rental income from this well-maintained home! This spacious property features 4 bedrooms, 2 bathrooms, and a fully self-contained suite with its own separate entrance, kitchen, and laundry. Upstairs offers 2 bright bedrooms, a full bathroom, and a functional layout, while the basement includes another 2 bedrooms, full bath, generous living space, and plenty of storage. Step outside to a fully fenced backyard, a covered back deck with stairs leading into the yard, a covered carport, ample extra parking, and a large driveway. Located in a desirable neighbourhood, close to schools, city bus routes, parks, shopping, and restaurants, this property checks all the boxes. Whether you’re an investor, developer, or homeowner looking for space and flexibility, this is a must-see. Please note, showings can be scheduled after 5pm on weekdays or anytime on weekends. Tenant runs a successful daycare business on the lower level of the home. (id:58842)

Property Information

Property Type
Residential
SqUARE FOOTAGE
2452
 sqft
Structure Type
House
LAND SIZE
0.25 acres
Roof Type
Asphalt shingle
Lot
SEWER Type
Municipal sewage system
Parking Spots
6
stories
2.0
Floor Type
Tile, Laminate, Carpeted, Linoleum

More Information

Security
View
Parking
See Remarks
Exterior
Stucco
Community
Common inTEREST
Freehold
Listing Key
28148973
MLS ID
10341462
listing Office
listing Office key
61706
4
Beds
2
Baths
$
799000

Virtual Tour

Map

Map

can help you buy this property.

Thank you! Your submission has been received!
Oops! Something went wrong while submitting the form.

Anthony Serani

can help you buy this property.

Thank you! Your submission has been received!
Oops! Something went wrong while submitting the form.