110 Kalamalka Lake Road Unit# 208

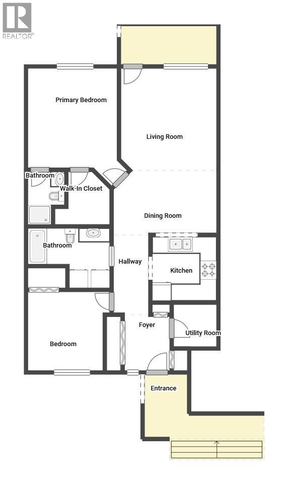
Spacious and bright ground-level 2-bedroom, 2-bathroom condo located in a family-oriented neighbourhood just minutes from Kal Beach! This well-maintained unit offers a functional and comfortable layout, featuring a large living room that opens onto a private deck overlooking Coldstream Creek, creating a peaceful setting to relax and enjoy the natural surroundings. The main bedroom includes a walk-in closet and a private ensuite, while the second bedroom and full bathroom provide flexibility for guests, family, or a home office. The home also features the convenience of in-suite laundry and an oversized bathtub. Perfectly situated for an active Okanagan lifestyle, the condo is just a 10-minute walk to the beach at Kalamalka Lake and only a 6-minute drive to shopping and amenities at Polson Place Mall. It's literally steps away from the Alpine Center, which has a pizzeria, salon, massage, and a fitness gym. The property is also located on a public bike route and transit route, making it easy to get around the city. Whether you’re a first-time buyer, downsizer, or investor, this home offers comfort, convenience, and an unbeatable location close to one of the Okanagan’s most beautiful lakes. (id:58842)

Property Information

Property Type
Residential
SqUARE FOOTAGE
1141
 sqft
Structure Type
Row / Townhouse
LAND SIZE
Roof Type
Asphalt shingle
Lot
One Balcony
SEWER Type
Municipal sewage system
Parking Spots
2
stories
1.0
Floor Type
Laminate, Vinyl

More Information

Security
View
View (panoramic)
Parking
Exterior
Vinyl siding
Community
Common inTEREST
Condo/Strata
Listing Key
29477412
MLS ID
10379282
listing Office
listing Office key
47795
2
Beds
2
Baths
$
438000

Virtual Tour

Map

Map

can help you buy this property.

Thank you! Your submission has been received!
Oops! Something went wrong while submitting the form.

Dawson Yates

can help you buy this property.

Thank you! Your submission has been received!
Oops! Something went wrong while submitting the form.