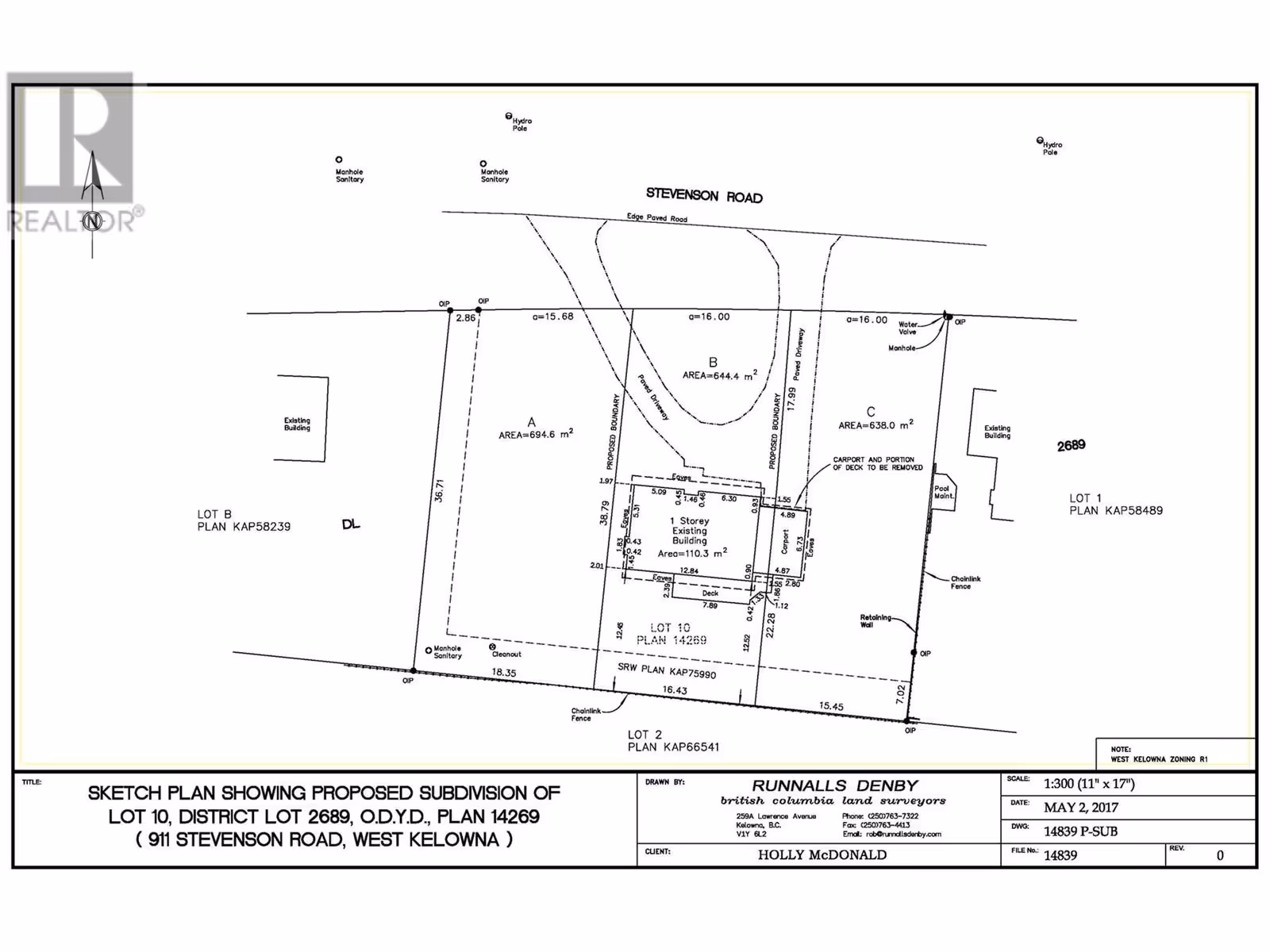
911 Stevenson Road Lot# Prop Lot 2

IT'S ALL ABOUT THE LAKE AND VINEYARD VIEWS! Proposed Lot 1-Must be purchased as entire property (3 proposed lots) under MLS#103434723 ($1,710,000) 3 POTENTIAL LOTS/SPANNING 0.49 ACRES. Preliminary layout review (PLR) completed with City of W. Kelowna (can be provided on request). Location, location! Located within West Kelowna’s up-and-coming “IT” spot–LAKEVIEW HEIGHTS COMMUNITY CENTRE. Outstanding opportunity to (1) buy & hold or (2) complete subdivision of the property. Residential Plex Zoning (RP1) with potential for 3 side-by-side lots. All potential lots back on to Beaumont Family State Estate Winery/Agriculture land reserve with unobstructed lake, mountain & valley views. Pending approval the potential is endless: (1) Current home is rented & could likely remain rented while side lots were built on (house sold ‘as is’). (2) Or build your own dream home on 1 lot & sell the remaining home & lot. (3) Remove existing home & build 3 homes or 3 side-by-side duplexes with secondary suites (12 front doors potential). Offering the perfect blend of tranquility & convenience. Steps away to Nester‘s market town center (restaurants, coffee, bakery, liquor store, etc.); near numerous recreational areas & beaches (pickleball courts, playground, sports box, Anders Park, Shelter Bay Marina, W. Kelowna Yacht Club, Gellatly Boat Launch); in THE HEART OF WINE COUNTRY numerous wineries; nearby schools-Hudson Road Elem., CNB Middle School, MBS School; AND only 10 min. to downtown Kelowna. (id:58842)

Property Information

Property Type
Commercial
SqUARE FOOTAGE
0
 sqft
Structure Type
Other
LAND SIZE
0.15 acres
Roof Type
Lot
SEWER Type
Municipal sewage system
Parking Spots
0
stories
Floor Type

More Information

Security
View
Lake view, Mountain view, Valley view
Parking
Exterior
Community
Common inTEREST
Freehold
Listing Key
28166787
MLS ID
10343494
listing Office
listing Office key
47748
0
Beds
0
Baths
$
570000

Virtual Tour

Map

Map

can help you buy this property.

Thank you! Your submission has been received!
Oops! Something went wrong while submitting the form.

Robert A. Wood

can help you buy this property.

Thank you! Your submission has been received!
Oops! Something went wrong while submitting the form.