885 Walrod Street

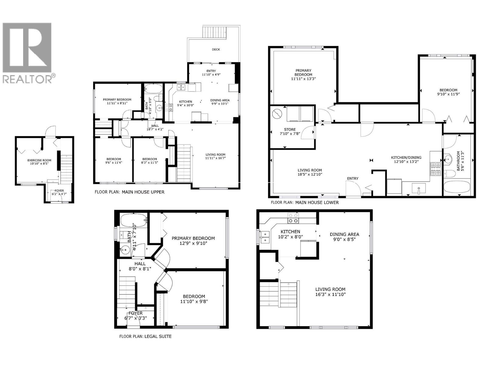
5 bed home PLUS 2 bed LEGAL SUITE! Incredible value & holding potential. Legal suite was added on to the rear of the home (laneway access) allowing it to be offset from the main part of the house. This makes it so you don't get any of the typical up/down noise transfer between occupants. Main house upper level has 3 beds, 1 bath, well maintained with bright kitchen/living area and access to private laundry. Fantastic layout & new deck surface off the kitchen. Lower level of main home has 2 beds, 1 bath, & 2nd private laundry. The LEGAL SUITE offers 2 beds,1 bath, fresh paint, new fridge, plenty of bright living space & its own laundry. Great option for a large family while still earning income from the legal suite OR buy & hold as an investment w/rental income. City has indicated alignment w/provincial short term rules which may open up this property for being an Air BNB if owner occupies a portion of the home. Plenty of parking available as well as detached shed for storage off the laneway access. Recent landscaping, gutters, exterior updates, paint & new roof in 2024. Turn-key opportunity for someone to step in & add to their investment portfolio, or reside as a homeowner/landlord & generate rental income from the suite. MF1 zoning. Ideal proximity to shopping, dining, breweries, transportation, Okanagan Lake, Knox Mountain, the new UBCO downtown location & so much more. As far as rentals in Kelowna go, this home shows A+ & currently generates excellent rental income. (id:58842)

Property Information

Property Type
Residential
SqUARE FOOTAGE
2759
 sqft
Structure Type
House
LAND SIZE
0.16 acres
Roof Type
Asphalt shingle
Lot
Level lot
SEWER Type
Municipal sewage system
Parking Spots
0
stories
2.0
Floor Type

More Information

Security
View
Parking
Detached Garage, Other, Rear, RV, Street, Additional Parking
Exterior
Community
Common inTEREST
Freehold
Listing Key
29307771
MLS ID
10374368
listing Office
Century 21 Assurance Realty Ltd
listing Office key
61706
7
Beds
3
Baths
$
1149500

Virtual Tour

Map

Map

can help you buy this property.

Thank you! Your submission has been received!
Oops! Something went wrong while submitting the form.

Rudy Schoenfeld

can help you buy this property.

Thank you! Your submission has been received!
Oops! Something went wrong while submitting the form.