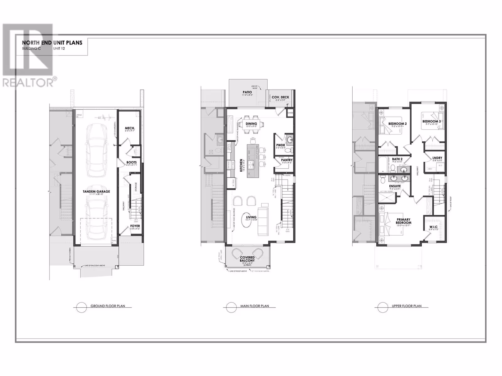
7053 Manning Place Unit# 12

FIRST TIME BUYER'S TAKE NOTE.....NO GST for you on any of our units!!! Brand New Townhomes in Manning Place, Foothills Subdivision. Introducing a rare & limited opportunity to own a beautifully crafted, townhome in the highly sought-after Foothills community of Vernon, BC. These exceptional 3-level homes at Manning Place offer an unbeatable combination of design, value, & lifestyle in one of the Okanagan’s most desirable neighbourhoods. Key Features include 3 Bdrms 3 Bthrms – Spacious & thoughtfully laid out for modern living. Open-Concept Floor Plan Bright & airy main living space perfect for entertaining or relaxing. Double Tandem Garage Ample space for vehicles, storage, or home gym. Fenced & Landscaped Backyard – Private outdoor oasis ideal for families & pet owners. 2 Sundecks – 1 at the front to soak in incredible BX Creek Valley & mountain views, & 1 at the back perfect for sunny summer BBQs. Whether you're a first-time buyer, an investor, or looking to downsize without compromise, these homes deliver exceptional quality at an unheard-of price point in the Foothills. Why Manning Place? Nestled in a peaceful, family-friendly subdivision with quick access to Silver Star Mountain, abundant trail systems, natures at your doorstep, schools, & downtown Vernon. Live the Okanagan lifestyle with skiing, hiking, biking, & nature at your doorstep – all while enjoying modern comfort & convenience. GST is applicable for non fist time Buyer's but no PTT (Property Transfer Tax) (id:58842)

Property Information

Property Type
Residential
SqUARE FOOTAGE
1845
 sqft
Structure Type
Row / Townhouse
LAND SIZE
Roof Type
Asphalt shingle
Lot
Central island, Balcony
SEWER Type
Municipal sewage system
Parking Spots
2
stories
3.0
Floor Type
Tile, Carpeted, Vinyl

More Information

Security
View
Mountain view, View (panoramic)
Parking
Attached Garage
Exterior
Stucco, Other
Community
Rentals Allowed
Common inTEREST
Condo/Strata
Listing Key
28319362
MLS ID
10348031
listing Office
listing Office key
47783
3
Beds
3
Baths
$
719999

Virtual Tour

Map

Map

can help you buy this property.

Thank you! Your submission has been received!
Oops! Something went wrong while submitting the form.

Anthony Bastiaanssen

can help you buy this property.

Thank you! Your submission has been received!
Oops! Something went wrong while submitting the form.