675 Webster Road

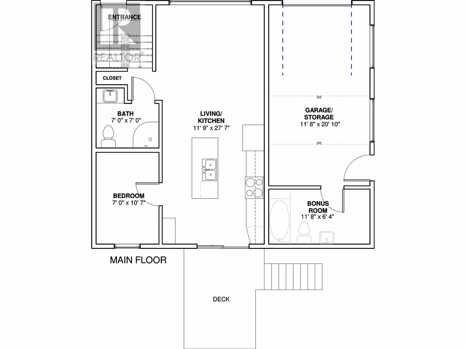
Welcome to this maintained and thoughtfully designed 3-bedroom + den half duplex, nestled in a peaceful and established neighborhood known for its abundant green spaces and family-friendly atmosphere. Whether you're a first-time buyer looking or searching for comfortable and low-maintenance home, this property offers the perfect blend of functionality, charm, and location. Step inside to a bright and inviting main floor, featuring a spacious living area with large windows that flood the space with natural light. The open-concept layout flows effortlessly into the updated kitchen and separate dining area plus convenient access to the backyard - perfect for quiet evenings outdoors. One bedroom is found on this upper floor, providing autonomy from the additional 2 bedrooms and den in the lower level. A washroom is located on each floor providing functional flow and coupled with ample closet space and storage, this home truly has so much to offer. Set on a quiet residential street, you’ll enjoy the peace and privacy of suburban living while still being just minutes away from amenities such as schools, shopping, restaurants, and public transit. Several parks and playgrounds are just a short walk away, providing plenty of opportunities for outdoor recreation and family fun. With no condo fees, your own fully fenced backyard, a private driveway with attached garage that you are able to design for your own use, this home delivers outstanding value & affordability. QUICK POSSESSION. (id:58842)

Property Information

Property Type
Residential
SqUARE FOOTAGE
1140
 sqft
Structure Type
Duplex
LAND SIZE
0.12 acres
Roof Type
Other
Lot
Corner Site, One Balcony
SEWER Type
Municipal sewage system
Parking Spots
3
stories
2.0
Floor Type

More Information

Security
View
Parking
Attached Garage
Exterior
Stucco, Vinyl siding
Community
Pets Allowed
Common inTEREST
Condo/Strata
Listing Key
28931326
MLS ID
10364494
listing Office
listing Office key
286537
3
Beds
2
Baths
$
544900

Virtual Tour

Map

Map

can help you buy this property.

Thank you! Your submission has been received!
Oops! Something went wrong while submitting the form.

Cathy Kennedy

can help you buy this property.

Thank you! Your submission has been received!
Oops! Something went wrong while submitting the form.