588 McCurdy Road

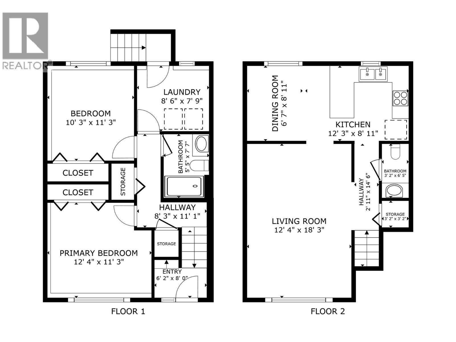
Welcome to 588 McCurdy Road, a bright and spacious end-unit townhome situated on a large corner lot in the heart of North Rutland. Step inside to find a warm and inviting main level featuring a functional open layout, plenty of natural light, and a comfortable living area that flows easily into the dining space and kitchen. The kitchen offers great counter space, a breakfast bar & an open view of the fenced backyard, perfect for keeping an eye on kids or pets while you cook. Downstairs, the walkout basement opens directly into your private, fully fenced yard, a rare find at this price point! Whether it’s backyard BBQs, a garden space, or a safe spot for your pets, this yard can handle it all. Plus, with no dog size restrictions, your big furry family members are more than welcome. The renovated full bathroom, updated finishes, and flexibility of two levels of living space are ideal for families, roommates, or guests. This small, well-managed complex offers low strata fees, two parking stalls, and plenty of green space to enjoy. The location is unbeatable, just a 5-minute walk to Pearson Elementary, close to middle and secondary schools, the bus route, shopping, restaurants, and recreation. Whether you’re looking for your first home, a smart investment, or a comfortable downsizing option. Move-in ready with quick possession available, this home delivers unbeatable value, space, and lifestyle. (id:58842)

Property Information

Property Type
Residential
SqUARE FOOTAGE
1120
 sqft
Structure Type
Row / Townhouse
LAND SIZE
0.4 acres
Roof Type
Asphalt shingle
Lot
Level lot, Corner Site
SEWER Type
Municipal sewage system
Parking Spots
2
stories
2.0
Floor Type

More Information

Security
View
Mountain view
Parking
Stall
Exterior
Stucco
Community
Family Oriented, Pets Allowed, Pets Allowed With Restrictions, Rentals Allowed
Common inTEREST
Condo/Strata
Listing Key
29076614
MLS ID
10368743
listing Office
listing Office key
61706
2
Beds
2
Baths
$
495000

Virtual Tour

Map

Map

can help you buy this property.

Thank you! Your submission has been received!
Oops! Something went wrong while submitting the form.

Dyan Broderick

can help you buy this property.

Thank you! Your submission has been received!
Oops! Something went wrong while submitting the form.