5620 Neil Road

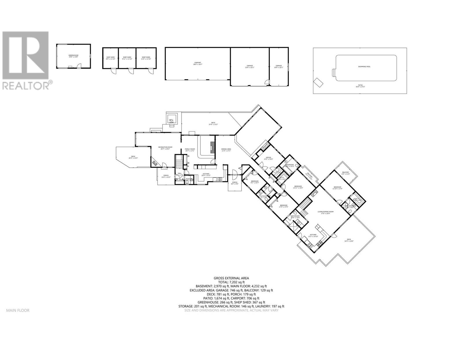
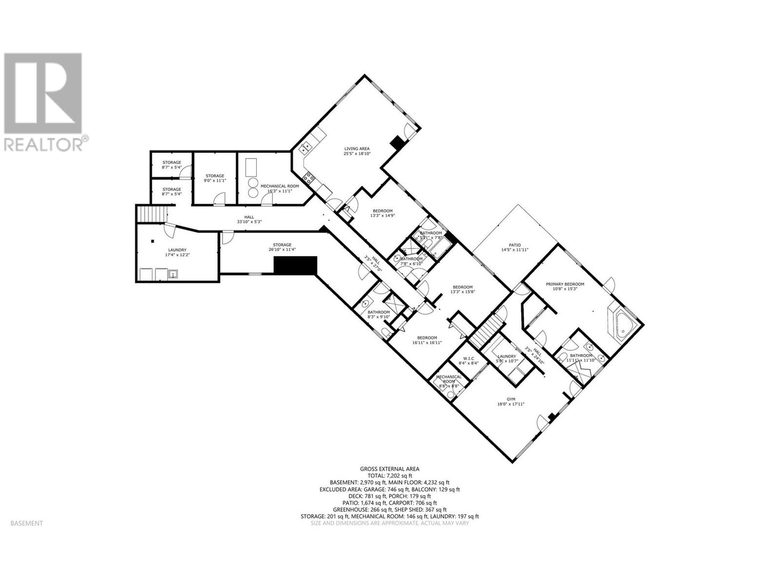
Rare and private BX acreage on a dead end road offered for sale with Okanagan valley views from all angles and features an attached secondary dwelling plus in-law suite just minutes to Vernon. With the 2 dwellings + in-law suite, your multi-generational and income generating options are fantastic. From long term rentals to short term (bylaw dependent) or even event hosting this property can accommodate many income generating ideas. The property has over 4 acres of usable fenced land and an in-ground pool with stunning valley views as you enjoy the Okanagan weather. Plenty of parking for your RV, toys and more, with a detached triple garage and triple carport. Main house is approximately 5,500' and offers 6 bedrooms + den, and 5 bathrooms. Vaulted ceilings, large kitchen, plenty of windows for natural light, multiple fireplaces and fantastic spacious living areas for hosting. Walk out to the large deck to enjoy the beautiful views. Secondary attached home (added later) is approximately 2,000' with 2 bedrooms (option for 3rd) and 3 bathrooms and a great covered deck and double carport for totally separate living. The in-law suite in the main house is approximately 750' with 1 bedroom and 1 bathroom with separate entrance. Property has been very well maintained with too many upgrades to list but include metal roof, recently replaced windows and doors, decking, garage roof, flooring, and much more. (Not listed in the ALR.) (id:58842)

Property Information

Property Type
Residential
SqUARE FOOTAGE
8256
 sqft
Structure Type
House
LAND SIZE
4.45 acres
Roof Type
Asphalt shingle, Metal
Lot
SEWER Type
Septic tank
Parking Spots
3
stories
2.0
Floor Type

More Information

Security
View
Parking
Detached Garage, Covered, RV, See Remarks, Additional Parking
Exterior
Community
Common inTEREST
Freehold
Listing Key
28046411
MLS ID
10339770
listing Office
3 Percent Realty Inc.
listing Office key
47816
8
Beds
9
Baths
$
1699000

Virtual Tour

Map

Map

can help you buy this property.

Thank you! Your submission has been received!
Oops! Something went wrong while submitting the form.

Karen Mustard

can help you buy this property.

Thank you! Your submission has been received!
Oops! Something went wrong while submitting the form.