5409 Willow Drive

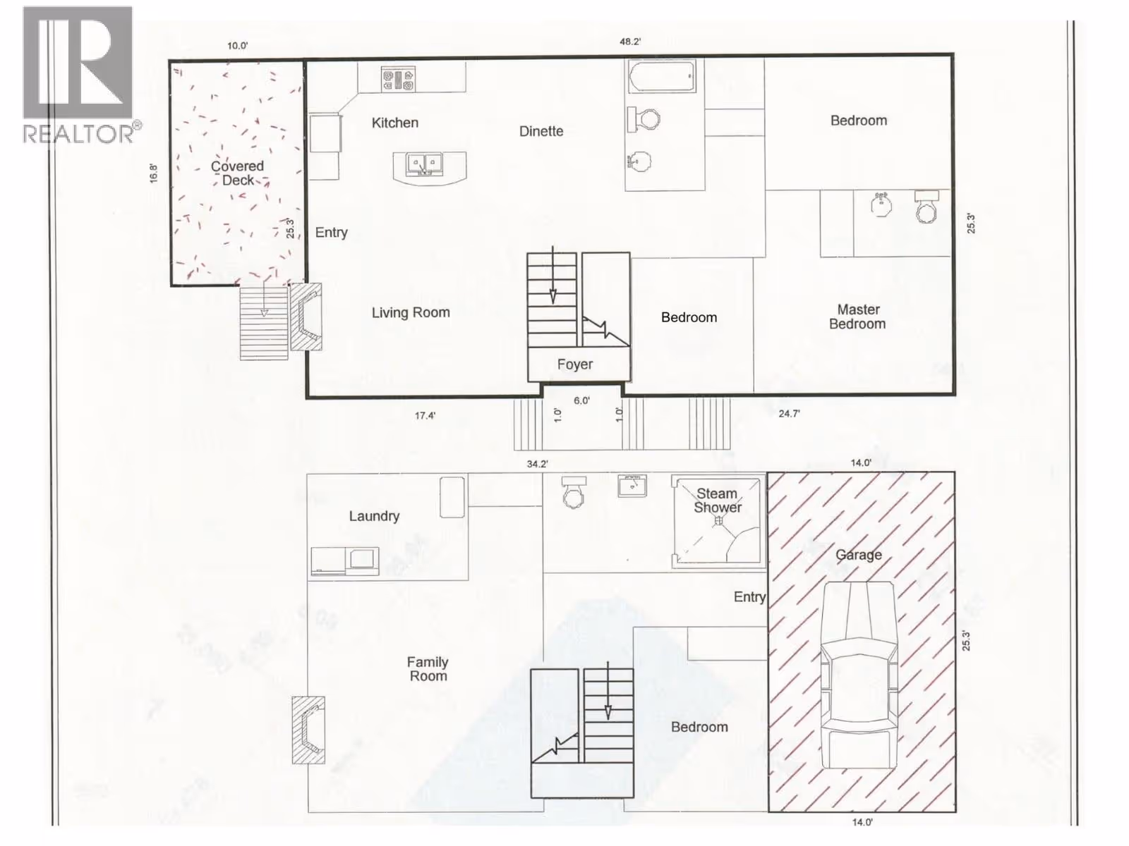
Check out this beautiful single-family home offering quality, comfort, and a fantastic location on Okanagan Landing near Okanagan Lake. Rebuilt from the foundation up in 2010 with exceptional workmanship and materials, this home features an open-concept main floor with hardwood flooring, crown moulding, and a stunning floor-to-ceiling stone surround on the gas fireplace! The spacious kitchen has granite countertops, a walk-in pantry, and a smooth flow out onto the east-facing covered deck—perfect for a sunny morning coffee or shaded evening BBQs! Downstairs is a guest bedroom (or private office) and a nice-sized but cozy family room with a wood stove, plus a luxurious steam shower for your own at-home spa experience! The large, family-friendly lot has RV parking and is a short commute to both Ellison Elementary and Fulton High School. not too far down the road are the Marshall Fields sports fields and recreation facilities, a dog park, various beaches, and hiking trails. Additional features include on-demand hot water, central heating and air conditioning, and plenty of space for the whole family to enjoy. This place is move-in-ready with no renovations needing to be done! A Vernon home that blends quality, comfort, and convenience, this is one you won’t want to miss. (id:58842)

Property Information

Property Type
Residential
SqUARE FOOTAGE
2074
 sqft
Structure Type
House
LAND SIZE
0.14 acres
Roof Type
Asphalt shingle
Lot
Corner Site, Central island, Balcony
SEWER Type
Municipal sewage system
Parking Spots
3
stories
2.0
Floor Type
Tile, Hardwood

More Information

Security
View
Mountain view
Parking
Attached Garage
Exterior
Stone, Other
Community
Family Oriented
Common inTEREST
Freehold
Listing Key
28709618
MLS ID
10358758
listing Office
Coldwell Banker Executives Realty
listing Office key
47754
4
Beds
3
Baths
$
799999

Virtual Tour

Map

Map

can help you buy this property.

Thank you! Your submission has been received!
Oops! Something went wrong while submitting the form.

Christian Kirschke

can help you buy this property.

Thank you! Your submission has been received!
Oops! Something went wrong while submitting the form.