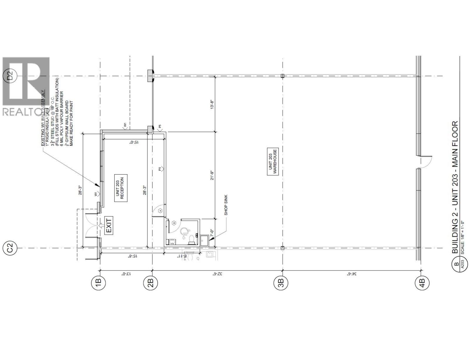
5000 Silver Star Road Unit# 203

Unit 203 at Silver Star Gateway Business Park offers approximately 3,329 square feet of open service commercial warehouse space, with the potential to add a mezzanine or second floor. The unit features one exclusive grade-level loading door (14' x 12'), 24-foot clear ceiling height, motion-sensored LED lighting, and suspended gas-forced heating. This unit also includes a built-in office/showroom and one washroom, providing a functional layout for a variety of business needs. The property benefits from excellent exposure to Silver Star Road and offers ample onsite parking. Available for immediate occupancy. (id:58842)

Property Information

Property Type
Commercial
SqUARE FOOTAGE
3329
 sqft
Structure Type
Other
LAND SIZE
Roof Type
Lot
Irregular lot size
SEWER Type
Municipal sewage system
Parking Spots
0
stories
Floor Type

More Information

Security
Sprinkler System-Fire
View
Parking
Exterior
Concrete
Community
High Traffic Area
Common inTEREST
Listing Key
29070355
MLS ID
10367585
listing Office
listing Office key
260644
0
Beds
0
Baths
$
0

Virtual Tour

Map

Map

can help you buy this property.

Thank you! Your submission has been received!
Oops! Something went wrong while submitting the form.

Larry Guilbault

can help you buy this property.

Thank you! Your submission has been received!
Oops! Something went wrong while submitting the form.