4561 Rittich Road

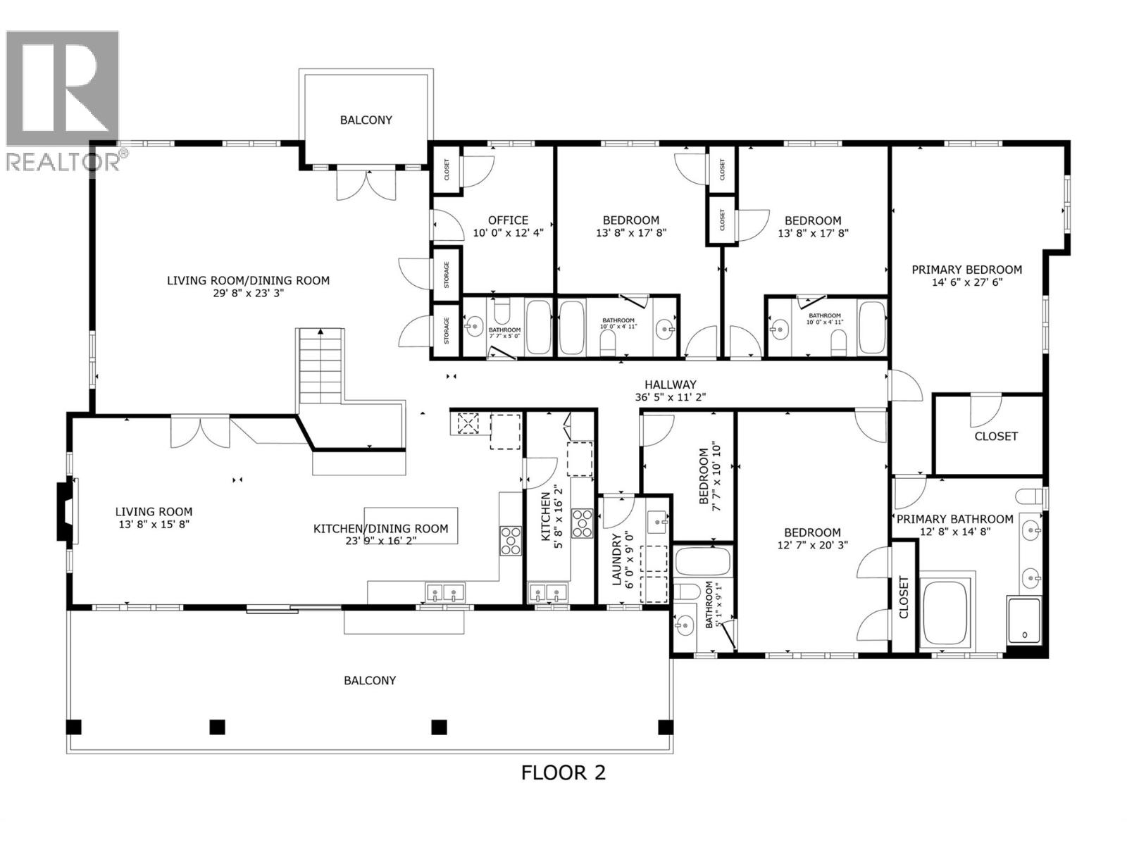
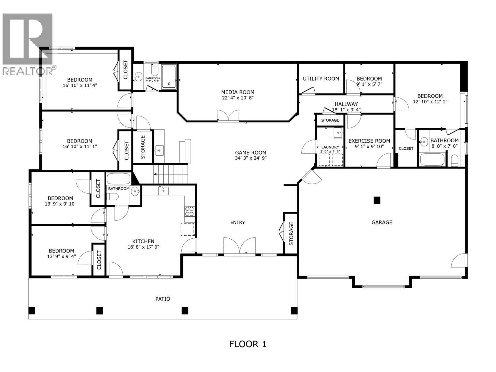
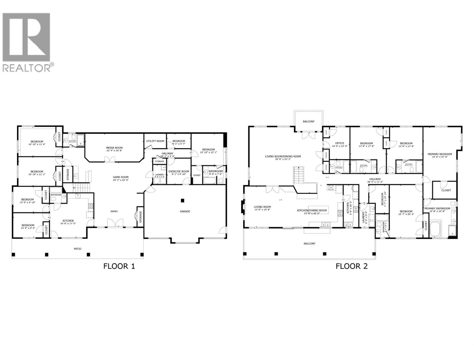
Welcome to 4561 Rittich Road! This exceptional 5.066-acre estate offers the perfect blend of agricultural charm and luxurious living in the heart of the Okanagan. Surrounded by sweeping views and a lush, mature orchard, this property is ideal for large families, multi-generational living, or those seeking space and serenity. The expansive 9-bedroom, 8-bathroom home features a beautiful, spacious main kitchen designed for entertaining, along with a fully equipped prep kitchen for added functionality. A generous living room offers plenty of space for gatherings, relaxation, or hosting guests in comfort. The dedicated theatre room is perfect for cozy family movie nights, while a self-contained legal 2-bedroom suite provides excellent rental or guest potential. Outside, you'll find approximately 3 acres of fully producing Staccato cherries, offering both beauty and agricultural income potential. Enjoy the outdoors with extensive green space, privacy, and the productivity of your own established orchard. A 3-car garage and ample parking complete the package. Whether you're looking to enjoy peaceful country living close to city conveniences or invest in a versatile estate property, 4561 Rittich Road delivers unmatched potential. (id:58842)

Property Information

Property Type
Residential
SqUARE FOOTAGE
5770
 sqft
Structure Type
House
LAND SIZE
5.07 acres
Roof Type
Asphalt shingle
Lot
Central island, Balcony, Jacuzzi bath-tub
SEWER Type
Septic tank
Parking Spots
13
stories
2.0
Floor Type
Laminate, Carpeted, Ceramic Tile

More Information

Security
View
Parking
Attached Garage, Additional Parking
Exterior
Stucco
Community
Common inTEREST
Freehold
Listing Key
29560825
MLS ID
10381156
listing Office
Century 21 Assurance Realty Ltd
listing Office key
61706
9
Beds
8
Baths
$
2599000

Virtual Tour

Map

Map

can help you buy this property.

Thank you! Your submission has been received!
Oops! Something went wrong while submitting the form.

Adam Kilshaw

can help you buy this property.

Thank you! Your submission has been received!
Oops! Something went wrong while submitting the form.