435 Dougall Road N

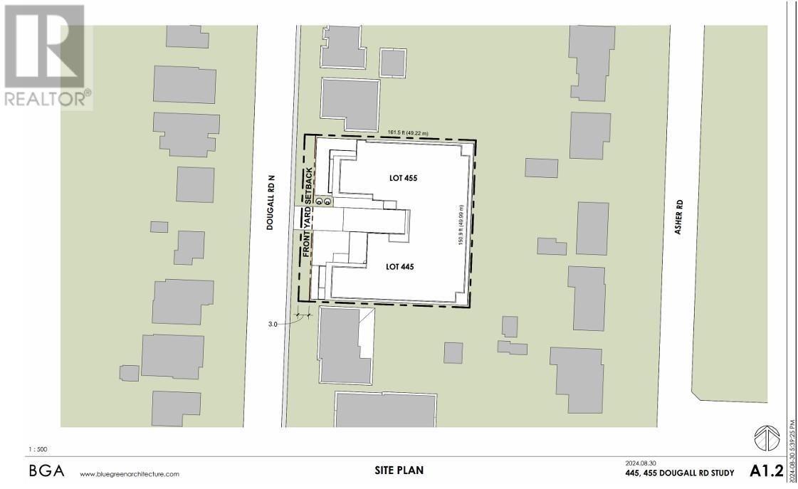
RARE DEVELOPMENT OPPORTUNITY in the rapidly growing Rutland Urban Centre! This 3-lot land assembly at 435, 445 & 455 Dougall Road North offers a combined total of 0.78 acres with outstanding potential for a multi-family development. With a combined list price of $3,973,000, the site supports potential for up to 6 storeys and a 1.8+ FAR (to be confirmed with the City of Kelowna). Centrally located within walking distance to schools, parks, shopping, public transit, and daily amenities, this high-exposure site is perfectly positioned in one of Kelowna’s most active development corridors. Rutland is a key support area for UBCO, making this a highly attractive location for rental housing or long-term investment. Ideal for developers or investors looking to capitalize on Kelowna’s strong population growth and increasing housing demand. Don’t miss this chance to secure a prime assembly in a strategic urban location. (id:58842)

Property Information

Property Type
Residential
SqUARE FOOTAGE
2352
 sqft
Structure Type
House
LAND SIZE
0.26 acres
Roof Type
Asphalt shingle
Lot
Level lot
SEWER Type
Municipal sewage system
Parking Spots
2
stories
2.0
Floor Type
Carpeted, Linoleum

More Information

Security
Smoke Detector Only
View
Parking
Carport
Exterior
Stucco
Community
Common inTEREST
Freehold
Listing Key
28444834
MLS ID
10351107
listing Office
listing Office key
47837
4
Beds
2
Baths
$
1375000

Virtual Tour

Map

Map

can help you buy this property.

Thank you! Your submission has been received!
Oops! Something went wrong while submitting the form.

Connie Yeh

can help you buy this property.

Thank you! Your submission has been received!
Oops! Something went wrong while submitting the form.