422 Rutland Road S

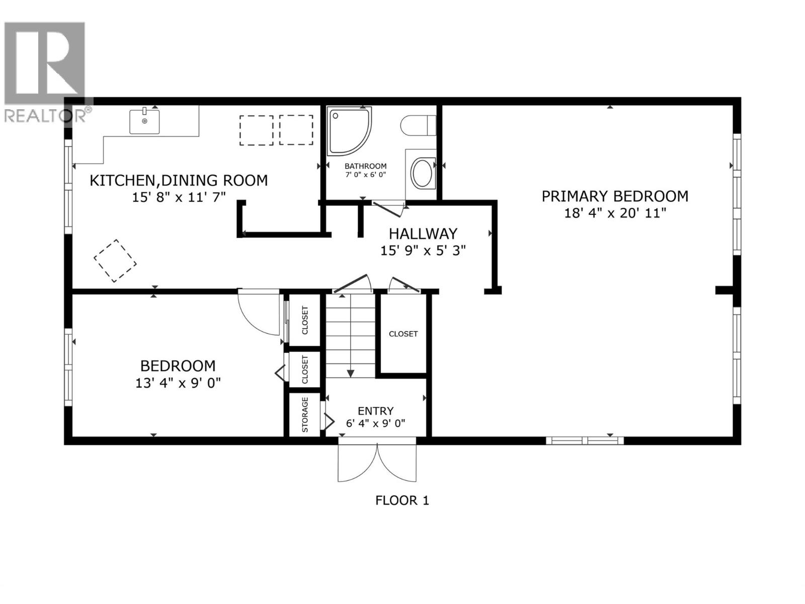
Excellent opportunity for first-time buyers and investors alike! This move-in ready 3 bedroom, 2 full bathroom half duplex offers flexibility, updates, & income potential in a convenient central location close to transit, schools, and shopping. The upper level has been newly renovated with fresh paint, new flooring, & upgraded Starline windows creating a bright, modern living space. Major upgrades have already been completed including a newer roof, furnace, gas hot water tank, appliances, & updated shower allowing for low maintenance ownership & peace of mind. The lower level features a self-contained 1 bedroom suite with separate laundry, ideal as a mortgage helper or for extended family living. It was a two bedroom & with the replacement of one wall it could easily be converted back. Outside, enjoy a large fenced backyard, two storage sheds, & abundant parking for multiple vehicles or recreational toys. Whether you’re entering the market or expanding your investment portfolio, we believe this price offers great value when compared to similar units sold & considering the revenue this home can bring as a rental. The main level fetches $2100 a month, the lower level could currently bring in around $1400 as is, or possibly up to $2100.00 if improved. We are looking at approximately $3,500.00–$4,200.00 per month of rental revenue. At a borrowing cost of approximately $500 a month per $100,000.00 borrowed, this home should be cash flow positive at the listed price. (id:58842)

Property Information

Property Type
Residential
SqUARE FOOTAGE
1800
 sqft
Structure Type
Duplex
LAND SIZE
0.13 acres
Roof Type
Lot
SEWER Type
Municipal sewage system
Parking Spots
5
stories
2.0
Floor Type

More Information

Security
View
Parking
Carport, RV, Street, Oversize, Additional Parking
Exterior
Community
Pets Allowed
Common inTEREST
Freehold
Listing Key
29380269
MLS ID
10375489
listing Office
listing Office key
61706
3
Beds
2
Baths
$
587000

Virtual Tour

Map

Map

can help you buy this property.

Thank you! Your submission has been received!
Oops! Something went wrong while submitting the form.

Dawson Yates

can help you buy this property.

Thank you! Your submission has been received!
Oops! Something went wrong while submitting the form.