4210 17 Avenue

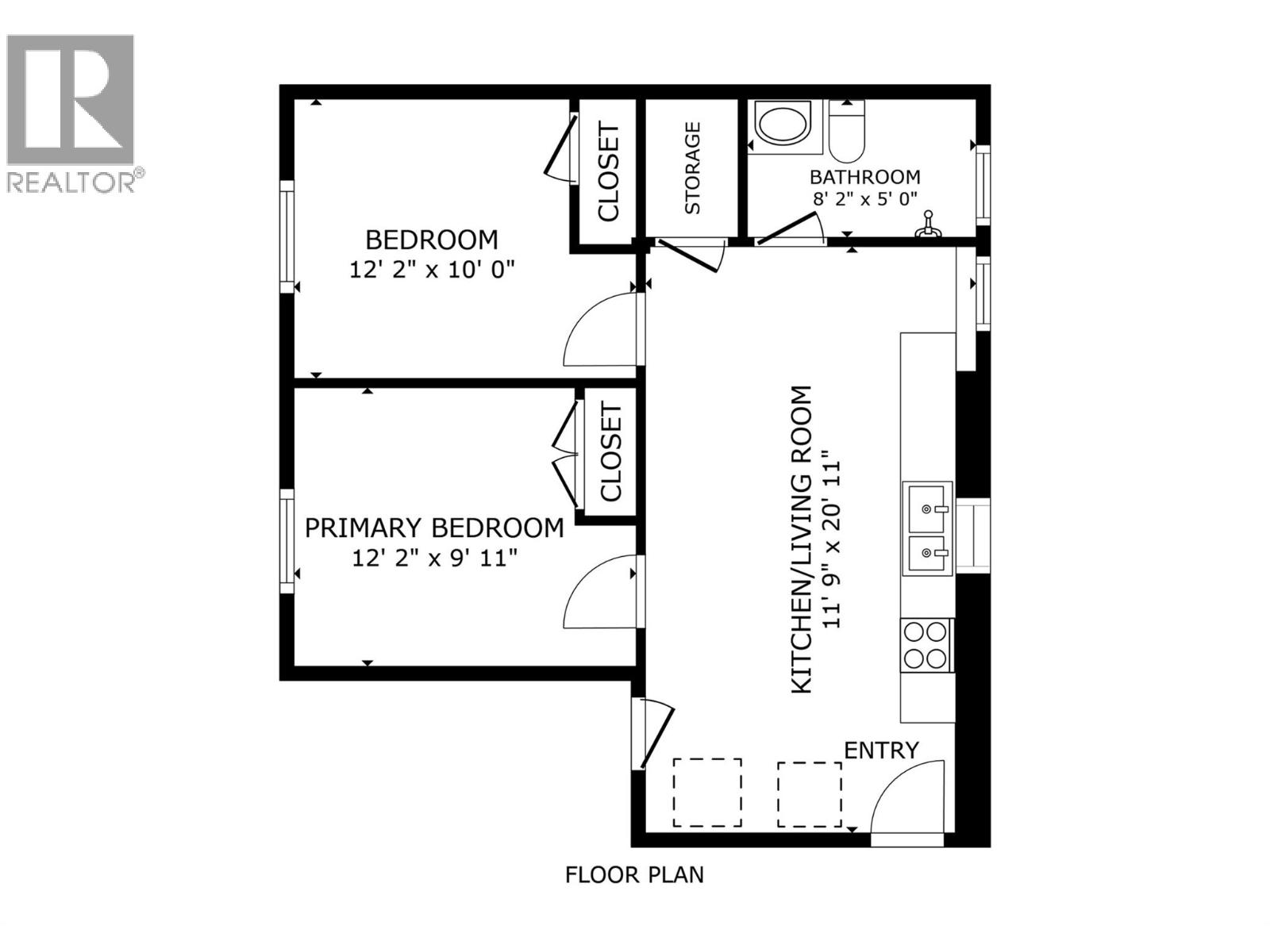
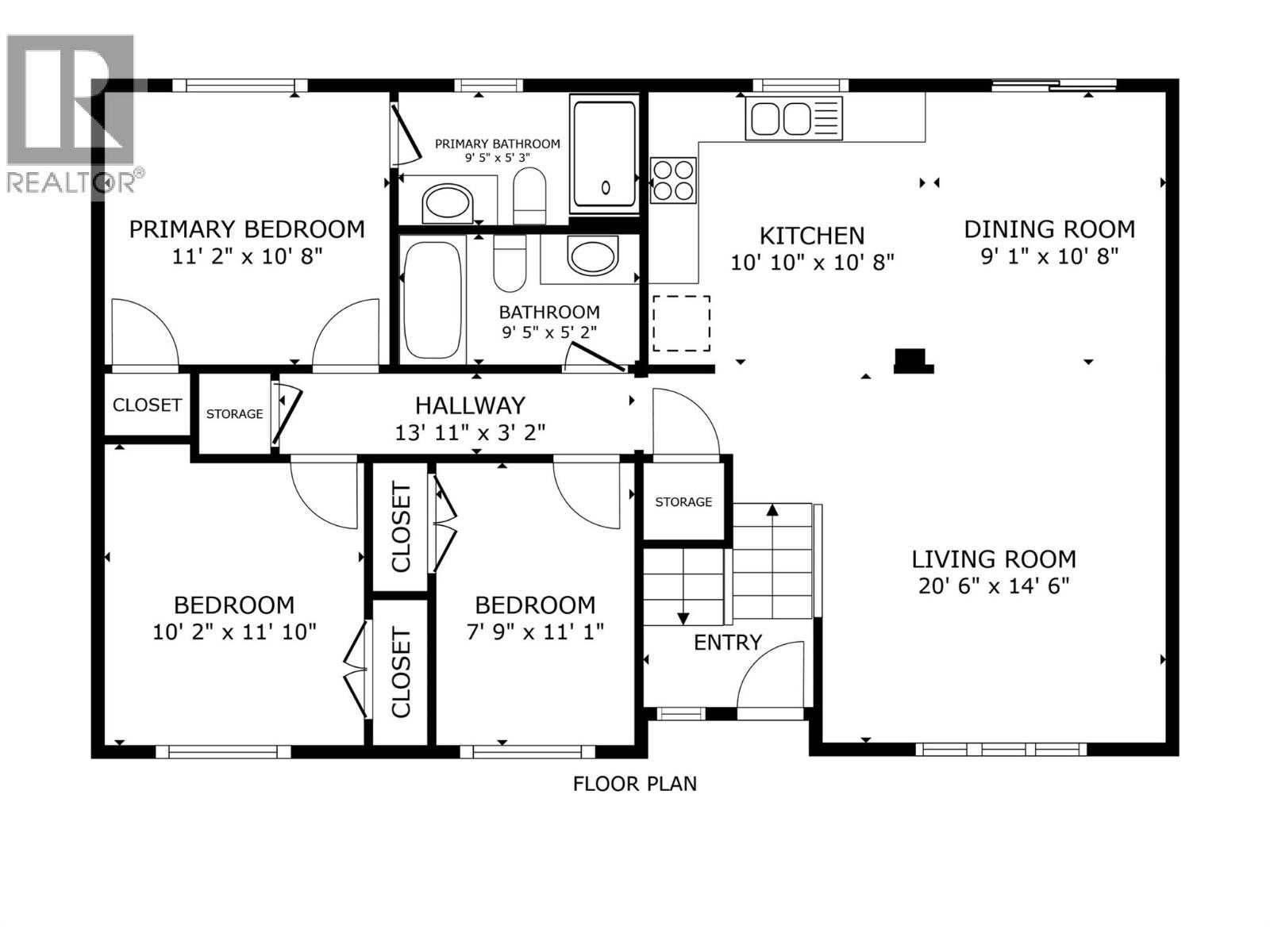
***COURT ORDERED SALE - Fully occupied and income generating home - Updated and versatile home in a sought-after Vernon family neighbourhood! Upstairs offers a bright 3 bedroom, 2 bathroom layout with modern updates throughout. Downstairs, you’ll find two self-contained and updated income producing suites – a 2 bedroom/1 bath and a 1 bedroom/1 bath – perfect for extended family or generating rental income. Whether you’re a first-time home buyer looking to offset your mortgage or an investor searching for strong rental potential, this property checks all the boxes. Conveniently located close to schools, parks, and amenities, this is a move-in ready opportunity you don’t want to miss! ****COURT ORDERED SALE - Reach out for more information on the Court Ordered Sale and the current rental rates. (id:58842)

Property Information

Property Type
Residential
SqUARE FOOTAGE
2207
 sqft
Structure Type
House
LAND SIZE
0.14 acres
Roof Type
Asphalt shingle
Lot
Level lot
SEWER Type
Municipal sewage system
Parking Spots
6
stories
2.0
Floor Type
Laminate, Carpeted, Vinyl

More Information

Security
View
Parking
Other, RV
Exterior
Aluminum
Community
Family Oriented
Common inTEREST
Freehold
Listing Key
28901970
MLS ID
10363859
listing Office
listing Office key
61706
6
Beds
4
Baths
$
775000

Virtual Tour

Map

Map

can help you buy this property.

Thank you! Your submission has been received!
Oops! Something went wrong while submitting the form.

Stewart Dunbar

can help you buy this property.

Thank you! Your submission has been received!
Oops! Something went wrong while submitting the form.