4035 Gellatly Road S Unit# 153

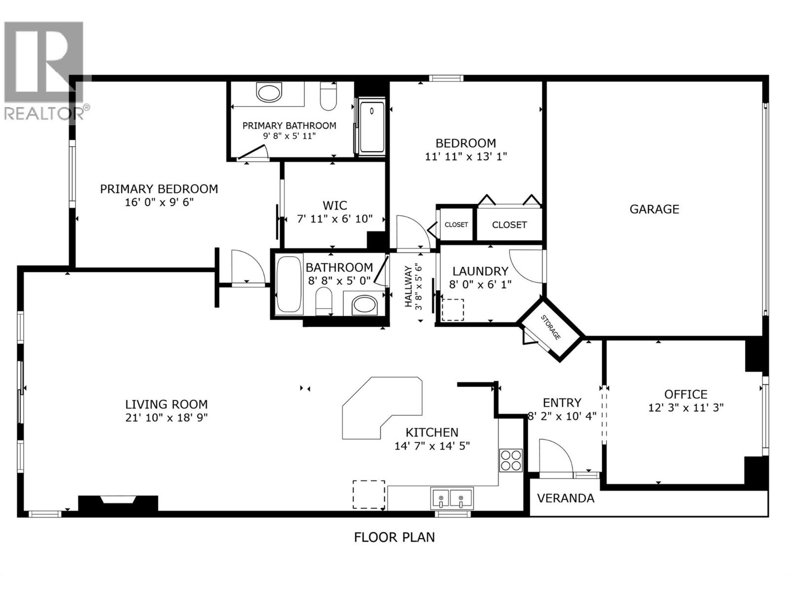
OPEN HOUSE ~ Saturday January 17th from 1-3 PM. In a lovely quiet location in Canyon Ridge, you will find this 2 bedroom plus den, 2 bath rancher style single-family home that exemplifies easy living! The front den is that perfect 'extra' space for your movie nights or quiet reading spot. Or for your office, if you prefer! The kitchen to dining to living room is vaulted and open concept, allowing lots of light in. The main area is in hardwood, the the former carpet in the den and bedrooms has all been replaced with durable vinyl plank flooring. (NO carpet in this home - great for allergy sufferers!) Most of the blinds have been replaced with custom remote motorized blinds - that work like a charm :) The primary bedroom is spacious, has windows to the rear yard, features a spacious ensuite with a walk-in shower and a large walk-in closet. The second bedroom is a nice size, and next to the main bath. Both baths have had the toilets replaced with comfort-height toilets. You'll also find the halls & doorways comfortably wide. The current owner had the entire home repainted, and it has been lightly lived in. The dishwasher was recently replaced, and the home has a central vacuum system. The hot water tank was replaced about 5-6 years ago. The laundry room has great space for storage, the double garage has more storage space, plus there's a large 4ft crawl space. Lovely private yard. Canyon Ridge also features an inviting clubhouse - it's a great community to call home! (id:58842)

Property Information

Property Type
Residential
SqUARE FOOTAGE
1609
 sqft
Structure Type
House
LAND SIZE
0.1 acres
Roof Type
Asphalt shingle
Lot
Level lot, Central island
SEWER Type
Municipal sewage system
Parking Spots
2
stories
1.0
Floor Type
Hardwood, Laminate, Ceramic Tile, Linoleum

More Information

Security
Smoke Detector Only
View
Parking
Attached Garage
Exterior
Other
Community
Adult Oriented, Seniors Oriented
Common inTEREST
Freehold
Listing Key
29242916
MLS ID
10371487
listing Office
listing Office key
61706
2
Beds
2
Baths
$
715000

Virtual Tour

Map

Map

can help you buy this property.

Thank you! Your submission has been received!
Oops! Something went wrong while submitting the form.

Cathy Kennedy

can help you buy this property.

Thank you! Your submission has been received!
Oops! Something went wrong while submitting the form.