4000 Trails Place Unit# 163

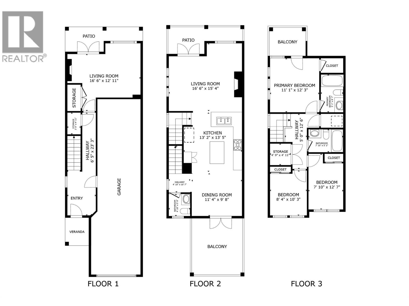
Welcome to The Trails! Backing onto Pincushion Mountain and steps from Hardy Falls and endless scenic trails, this location couples nature with convenience. An executive 9-hole golf course is approved next door, while Beach Avenue’s shops, restaurants, parks, marinas, wineries, and microbreweries are just minutes down the hill. This exceptional end unit presents like a show home. The craftsman exterior with Hardie board siding, rich wood and slate accents, and a stamped concrete entry sets the tone for the quality throughout. Inside, soaring ceilings and expansive windows flood the home with natural light, creating an open, airy atmosphere. The main living level is designed for entertaining, featuring a stunning white kitchen with upgraded cabinetry, quartz countertops, custom backsplash, premium appliances, and refined hardware. The living room is anchored by a cozy natural gas fireplace with a solid wood mantle and elegant shiplap detail. Two inviting covered decks on this level offer private views from both sides of the home. Upstairs offers 3 generous bedrooms and 2 full bathrooms, including a serene primary retreat with vaulted ceilings and transom windows. On the entry level, a large rec room with a 2nd fireplace opens directly to the patio — ideal for guests or seamless indoor-outdoor living. Phantom screens throughout, an oversized tandem garage with abundant storage for all your lifestyle gear, and the peace of mind of a FireSmart community. (id:58842)

Property Information

Property Type
Residential
SqUARE FOOTAGE
1565
 sqft
Structure Type
Row / Townhouse
LAND SIZE
Roof Type
Lot
SEWER Type
Municipal sewage system
Parking Spots
2
stories
3.0
Floor Type

More Information

Security
View
Parking
Attached Garage
Exterior
Community
Common inTEREST
Condo/Strata
Listing Key
29407582
MLS ID
10376965
listing Office
Sotheby's International Realty Canada
listing Office key
237276
3
Beds
3
Baths
$
794900

Virtual Tour

Map

Map

can help you buy this property.

Thank you! Your submission has been received!
Oops! Something went wrong while submitting the form.

Jaime Briggs

can help you buy this property.

Thank you! Your submission has been received!
Oops! Something went wrong while submitting the form.