3915 Trepanier Heights Avenue

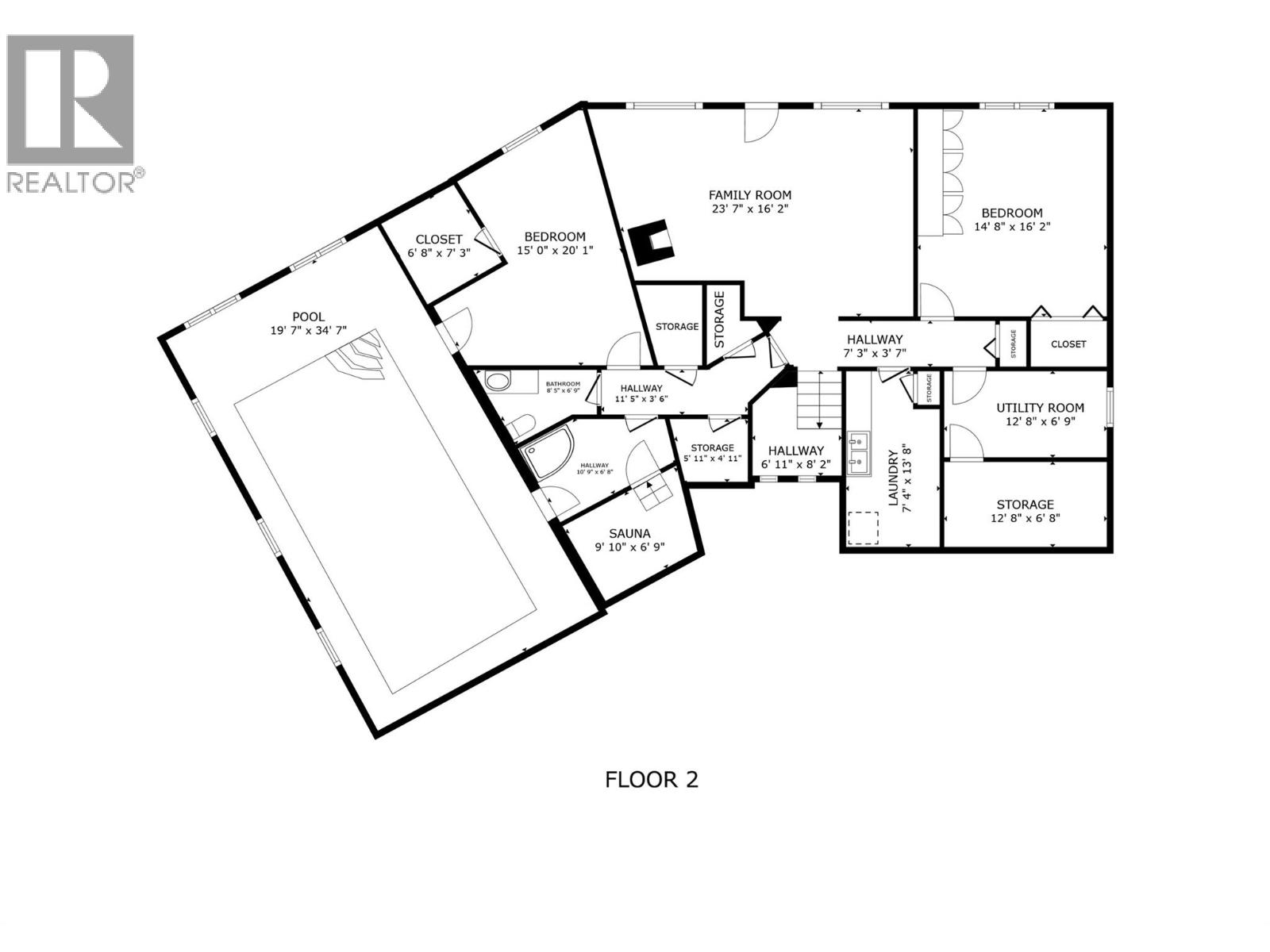
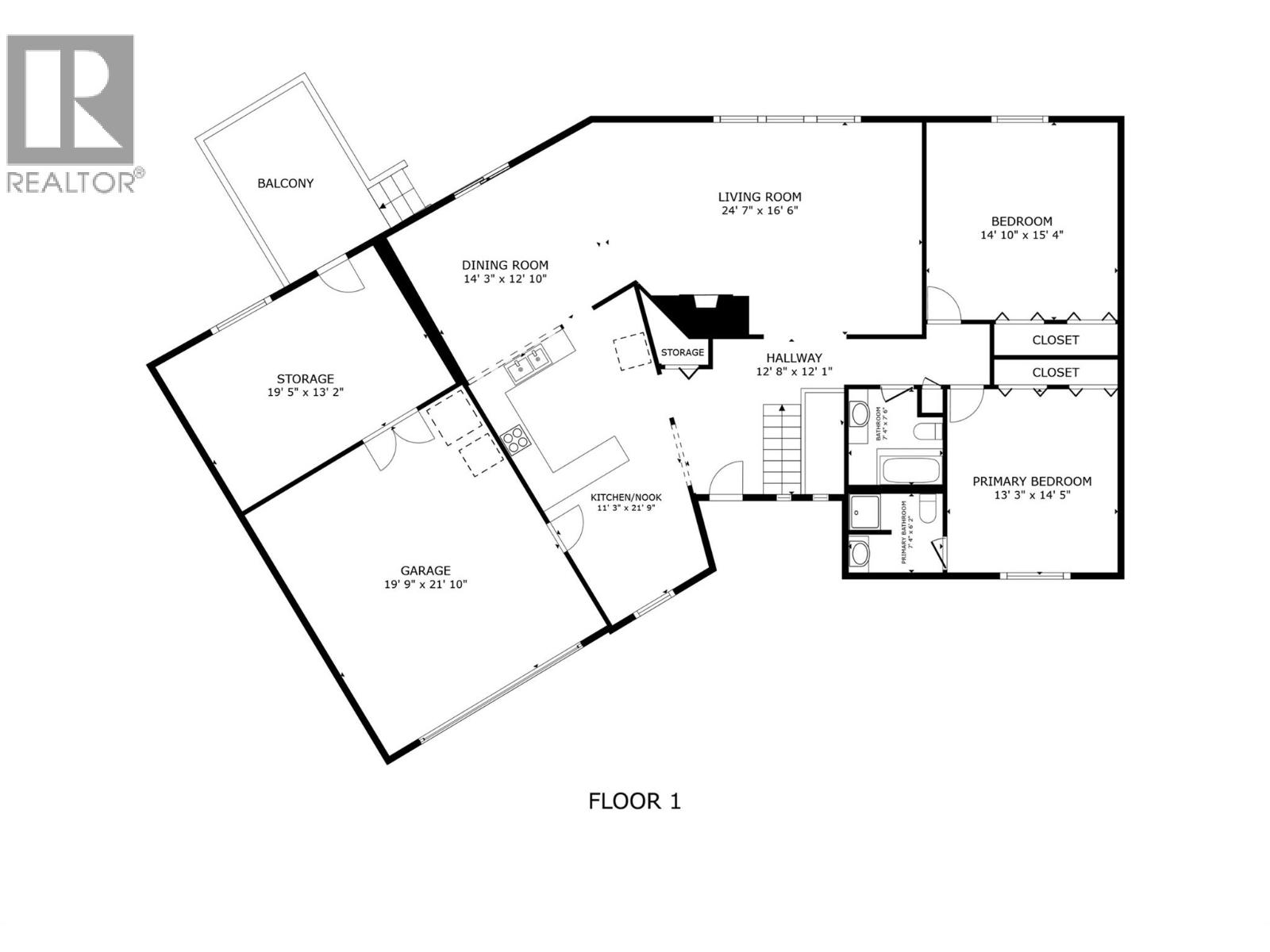
Here is your chance to enjoy panoramic lake and mountain views, a large private-feeling lot, and a welcoming Peachland neighbourhood. This 4 bedroom, 3 bathroom home offers approximately 3,700 sq. ft. on 0.35 acres, with a flat backyard, fruit trees, a park behind, and wildlife often seen right outside. Inside, the home has great presence, with ceilings vaulted up to 15 feet in the main living areas, beautiful wood finishes, and exceptional Euroline steel windows and sliding doors throughout. You can move in and enjoy it now, then update at your own pace to make the most of its unique potential. There is a double garage with a large storage area behind it, which can also be used for living space. There is also plenty of storage area downstairs, plus a large sauna for your relaxation. Steel shutters help keep the home cooler in summer and offer added security when travelling. The indoor pool may be useable, but it has been drained for many years and is being sold as is, where is. The pool area is not included in the square footage. From this location, you are only 3-5 minutes from downtown Peachland’s beaches, boat launches, restaurants, and groceries, and about 10 minutes from West Kelowna shopping. Downtown Kelowna is 20-25 minutes away. Don't wait! Make arrangements to view this home today! Pre-listing home inspection available through your agent. No presentation of offers until April 21, 2026. (id:58842)

Property Information

Property Type
Residential
SqUARE FOOTAGE
3723
 sqft
Structure Type
House
LAND SIZE
0.35 acres
Roof Type
Asphalt shingle
Lot
Level lot
SEWER Type
Septic tank
Parking Spots
6
stories
2.0
Floor Type

More Information

Security
View
Lake view, Mountain view
Parking
Attached Garage
Exterior
Stone, Cedar Siding
Community
Common inTEREST
Freehold
Listing Key
29598648
MLS ID
10383092
listing Office
listing Office key
61706
4
Beds
3
Baths
$
998000

Virtual Tour

Map

Map

can help you buy this property.

Thank you! Your submission has been received!
Oops! Something went wrong while submitting the form.

Ellen Churchill

can help you buy this property.

Thank you! Your submission has been received!
Oops! Something went wrong while submitting the form.