3803 32 Avenue

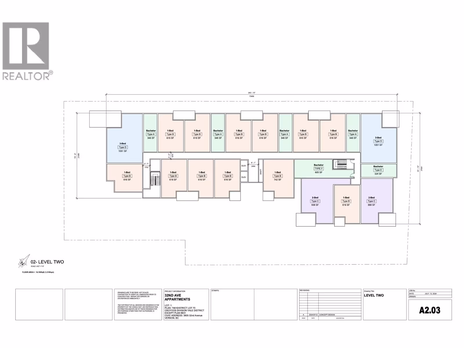
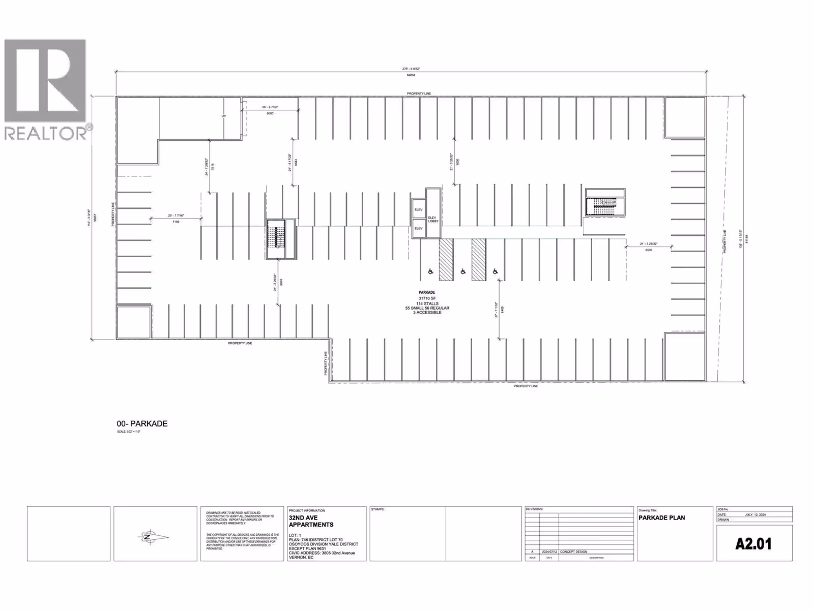
Rare large-scale multi-family development opportunity in the heart of Alexis Park, Vernon. This prime, flat site supports a 125-unit purpose-built rental project and offers one of the lowest cost-per-door opportunities in the Okanagan at under $20,000 per unit. Zoned and ideally suited for 6-storey wood-frame construction, this is one of the most efficient and financeable building forms in today’s market. The property includes two existing income-producing buildings (5-plex and 6-plex) generating approximately $100,000 annually, helping offset holding costs while advancing planning, approvals, or financing. Centrally located on 32nd Avenue, the site is steps from public transit, shopping, and daily amenities, supporting strong long-term rental demand. The large, level lot allows for efficient site planning, underground parking, and streamlined construction. The property is well-positioned for CMHC’s MLI Select program, offering the potential for high-ratio financing, amortizations up to 50 years, and below-market interest rates, significantly improving project feasibility. A forward-sale option is also available, allowing buyers to acquire a fully built, leased, and management up to completion, reducing construction and lease-up risk. A rare opportunity to secure a Tier-1 multi-family site with strong interim income and flexible execution options. (id:58842)

Property Information

Property Type
Unknown
SqUARE FOOTAGE
0
 sqft
Structure Type
Multi-Family
LAND SIZE
0.84 acres
Roof Type
Lot
Level lot
SEWER Type
Municipal sewage system
Parking Spots
0
stories
Floor Type

More Information

Security
View
Parking
Other
Exterior
Community
Common inTEREST
Freehold
Listing Key
29259582
MLS ID
10373002
listing Office
listing Office key
163499
0
Beds
0
Baths
$
2200000

Virtual Tour

Map

Map

can help you buy this property.

Thank you! Your submission has been received!
Oops! Something went wrong while submitting the form.

Nehemiah Daehn

can help you buy this property.

Thank you! Your submission has been received!
Oops! Something went wrong while submitting the form.