375 Feathertop Way Lot# 34

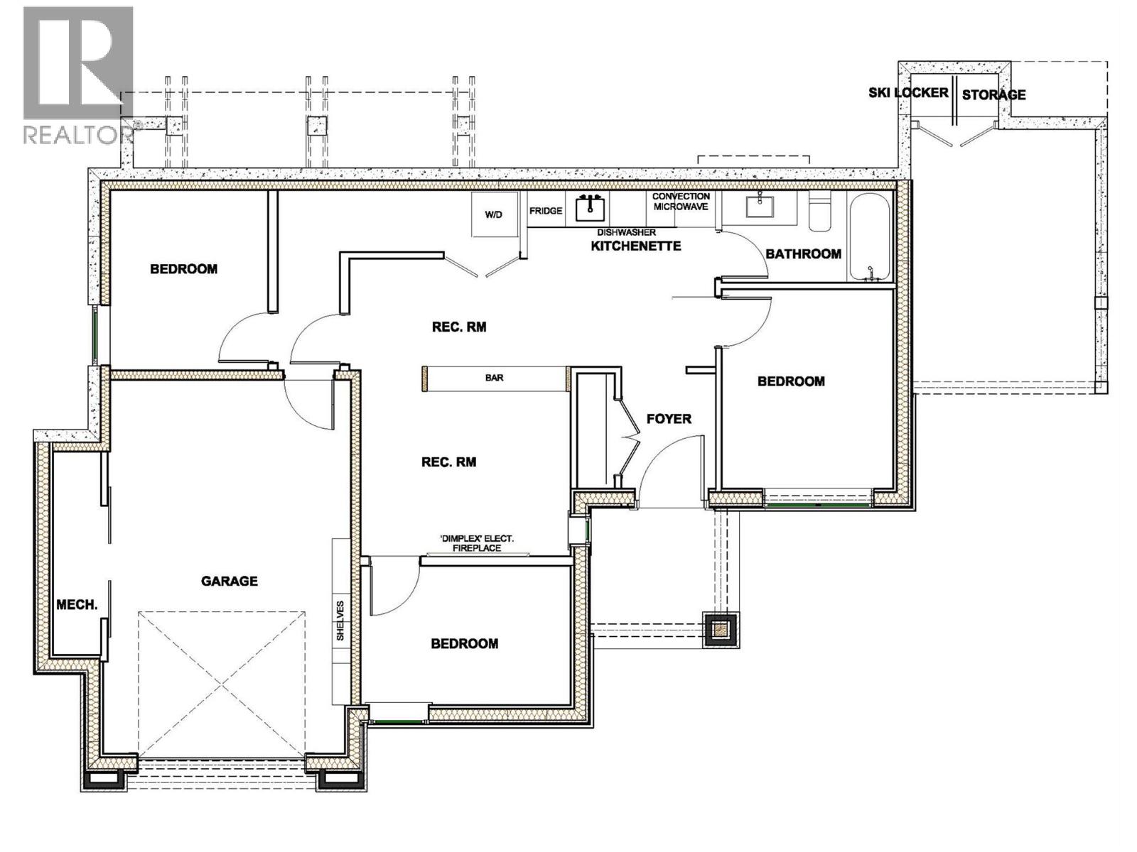
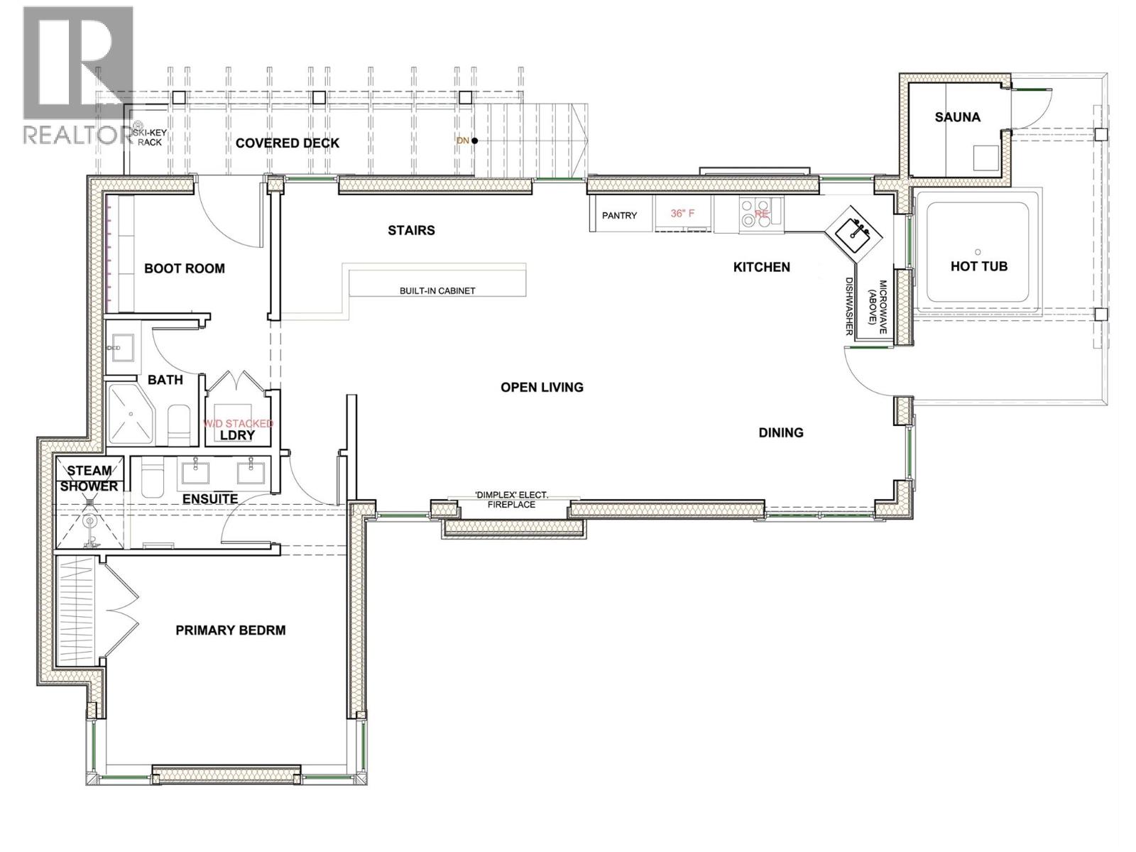
Welcome to 375 Feathertop Way located in the desirable Feathertop Estates. Enjoy true ski-in/ski-out convenience directly from your private ski locker, complete with a ski key rack, and quick access to The Bullet and Black Forest chairlifts. This home showcases 8” thick, heavily insulated exterior walls, triple-glazed European tilt-and-turn windows, and three-point latch European exterior doors, creating an airtight, energy-efficient envelope ideal for mountain conditions. Premium appliances throughout, including Bosch refrigerators and dishwashers on both upper and lower levels, a Bosch induction range in the upper kitchen, and a Bosch convection microwave in the lower kitchenette. The lower-level lock-off suite offers its own laundry and kitchenette, providing excellent flexibility for guests or potential rental income. Energy efficiency continues with LED lighting throughout, a Zehnder high-efficiency heat exchanger, and Dimplex electric baseboard and forced-air heating, each room equipped with individual remote-controlled thermostats. After a day on the slopes, relax by either electric fireplace or unwind in the spa-inspired amenities, including instant hot water at all sinks, an ensuite PRO-240 auto-flush steam generator, Jacuzzi J-345 hot tub with remote control, and a private sauna, also remotely controlled. This exceptional home is ideal for full-time living or a luxurious Big White retreat. (id:58842)

Property Information

Property Type
Residential
SqUARE FOOTAGE
1862
 sqft
Structure Type
House
LAND SIZE
0.08 acres
Roof Type
Lot
SEWER Type
Municipal sewage system
Parking Spots
2
stories
2.0
Floor Type

More Information

Security
View
Parking
Attached Garage, Carport
Exterior
Community
Pets Allowed
Common inTEREST
Freehold
Listing Key
29203952
MLS ID
10371376
listing Office
Engel & Volkers Okanagan
listing Office key
273624
4
Beds
3
Baths
$
1750000

Virtual Tour

Map

Map

can help you buy this property.

Thank you! Your submission has been received!
Oops! Something went wrong while submitting the form.

Adam Kilshaw

can help you buy this property.

Thank you! Your submission has been received!
Oops! Something went wrong while submitting the form.