3741 Astoria Drive

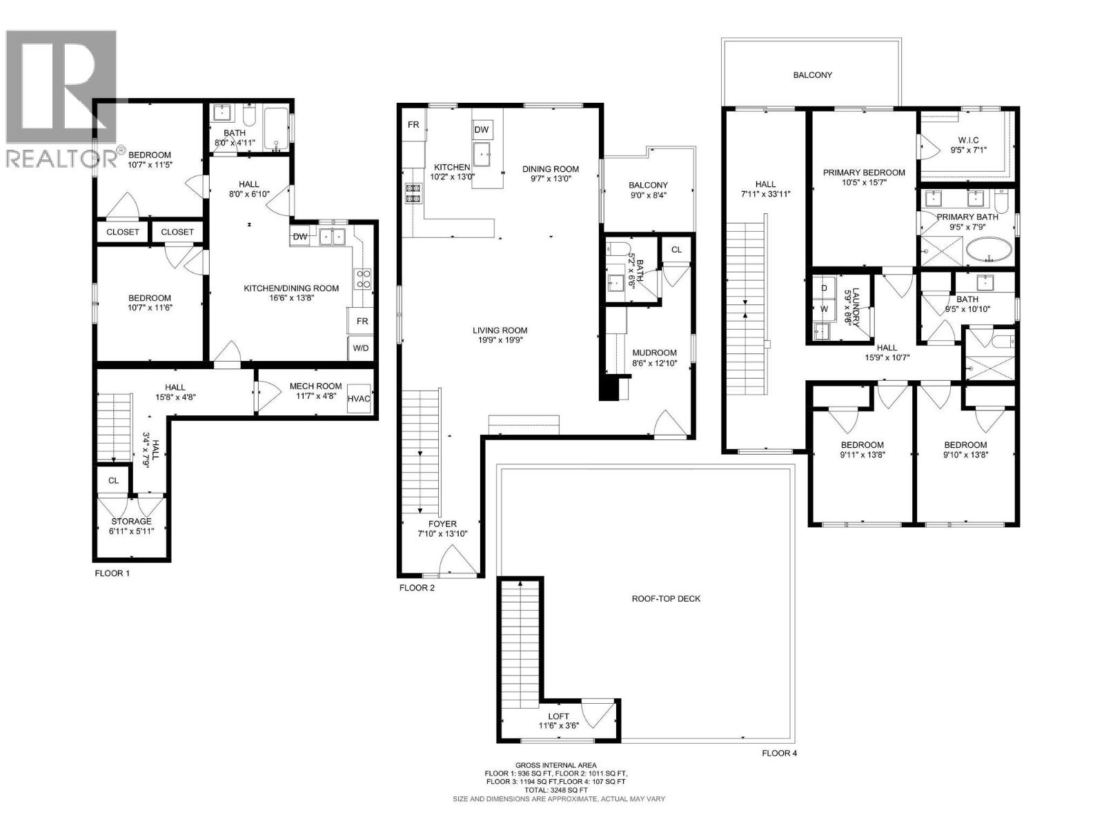
Welcome to The Trails, a stunning new build in one of West Kelowna’s most desirable communities. This 3,248 sq ft, five bedroom, four bathroom contemporary home stands out with its two bedroom legal suite and rooftop patio, offering both lifestyle and long term value. The main floor features an open concept layout with wide plank hardwood floors, quartz countertops, and a feature accent wall that adds warmth and modern character. The kitchen includes stainless steel appliances along with bold black hardware and fixtures. A large mudroom connects to the double garage, providing everyday convenience, while a powder room completes the level. Upstairs, the primary suite delivers a luxurious retreat with deck access, a custom feature wall, walk in closet, and spa inspired ensuite with dual sinks, glass shower, and freestanding tub. Two additional bedrooms, a full bath, and a laundry room with sink complete the upper floor. The bright legal two bedroom suite below offers its own laundry, full kitchen, and private entrance, ideal for extended family or rental income. Enjoy three outdoor decks, including a rooftop patio with gorgeous mountain and valley views, perfect for entertaining or relaxing. The synthetic turf backyard provides low maintenance living that is also great for kids and pets. Additional highlights include Step Code 3 energy efficiency, ample parking and storage, hot water on demand, alarm system, EV ready double garage, and a full blinds package. GST applicable. (id:58842)

Property Information

Property Type
Residential
SqUARE FOOTAGE
3248
 sqft
Structure Type
House
LAND SIZE
0.08 acres
Roof Type
Lot
SEWER Type
Municipal sewage system
Parking Spots
5
stories
3.0
Floor Type

More Information

Security
View
Parking
Attached Garage
Exterior
Community
Common inTEREST
Freehold
Listing Key
29230149
MLS ID
10372176
listing Office
listing Office key
47833
5
Beds
4
Baths
$
1198000

Virtual Tour

Map

Map

can help you buy this property.

Thank you! Your submission has been received!
Oops! Something went wrong while submitting the form.

Nehemiah Daehn

can help you buy this property.

Thank you! Your submission has been received!
Oops! Something went wrong while submitting the form.